1 | BEDROOM
1 | BATHROOM
1 | PUBLIC ROOM
A modern one bedroom apartment, with private terrace and parking, located in the highly desirable North Kelvinside district.
Description
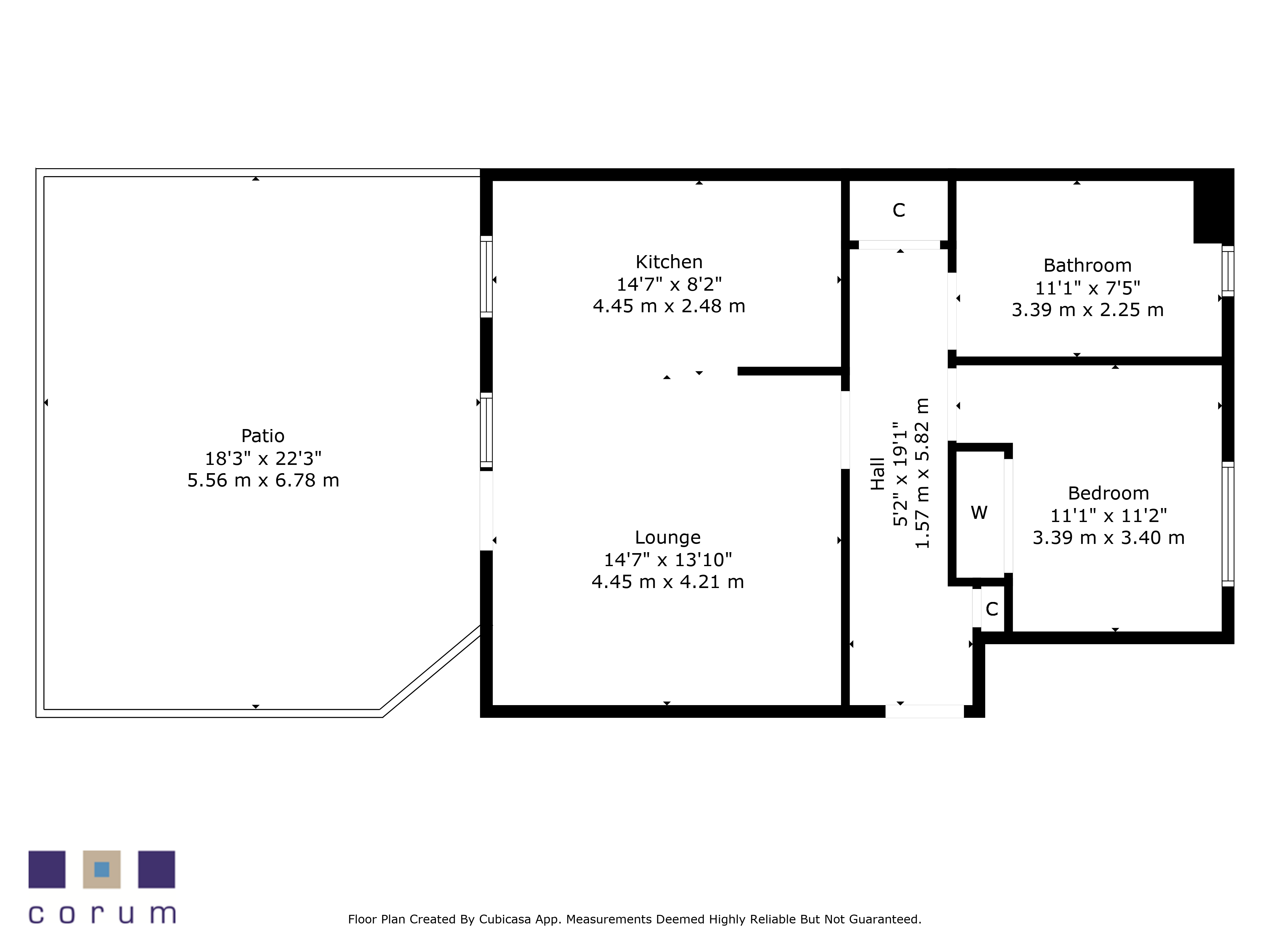
0/1 38 Oban Drive is a superb, one bedroom ground floor apartment in this attractive modern development, with allocated parking and expansive private front terrace, in the popular and convenient location of North Kelvinside.
The building is entered via video entry into a stylish communal hall with stair and lift access to all levels. The internal accommodation comprises: welcoming reception hall with storage off, and a bright and spacious lounge to the front, with open plan fitted kitchen and ample space for dining. There is direct access to the well maintained and expansive private front terrace off the lounge. To the rear of the property, is a good-sized double bedroom with built in wardrobes, and a spacious three-piece suite bathroom, completing the accommodation on offer.
The property also benefits from gas central heating and double glazing.
EER Band: C
If you have any questions or would like
to arrange a viewing, don't hesistate to
contact us today using the links below
E: westendenq@corumproperty.co.uk
North Kelvinside is close to Byres Road and Great Western Road which provides an array of excellent amenities including bars, restaurants, delicatessens and retailers including Paesano Pizza, Cottonrake Bakery, Roots Fruits & Flowers, La Lanterna and Farrow & Ball. The River Kelvin Walkway, Botanic Gardens and Kelvingrove Park are also nearby.
Public transport is also available with a choice of Kelvinbridge underground, railway and bus routes to Glasgow City Centre and beyond.
There is private schooling available at Kelvinside Academy on Kirklee Road and on Great Western Road at Glasgow Academy and The High School of Glasgow. There are also a number of excellent local primary and secondary schools. Glasgow University is situated on University Avenue just off Byres Road, and provides first class further education.
Directions
From Corum’s office on Hyndland Road, head north and turn right at the traffic lights onto Great Western Road. Continue on Great Western Road, and turn left after the Botanic Gardens onto Queen Margaret Drive. Take the first exit at the roundabout to stay on Queen Margaret Drive. Pass over the River Kelvin and turn right onto Oban Drive, where number 38 will be found on the left hand side.
Sat Nav:
0/1 38 Oban Drive, North Kelvinside, G20 6LR
WE5355
For the full home report visit
corumproperty.co.uk* All measurements and distances are approximate. Floorplans are for illustration purposes and may not be to scale. Buildings and/or floors may not be geographically accurate.


Sat Nav:
0/1 38 Oban Drive, North Kelvinside, G20 6LR
WE5355
For the full home report visit
corumproperty.co.uk* All measurements and distances are approximate. Floorplans are for illustration purposes and may not be to scale. Buildings and/or floors may not be geographically accurate.