2 | BEDROOMS
1 | BATHROOM
1 | PUBLIC ROOM
A superb, two-bedroom modern apartment, in a peaceful cul-de-sac in the desirable Anniesland district, boasting an allocated parking space.
1/2 22 Hutton is a bright and spacious two bedroom apartment, located on the preferred first floor, and is situated in the ever-popular Westerlands Park development, ideally located to take advantage of a wealth of local amenities and transport links.
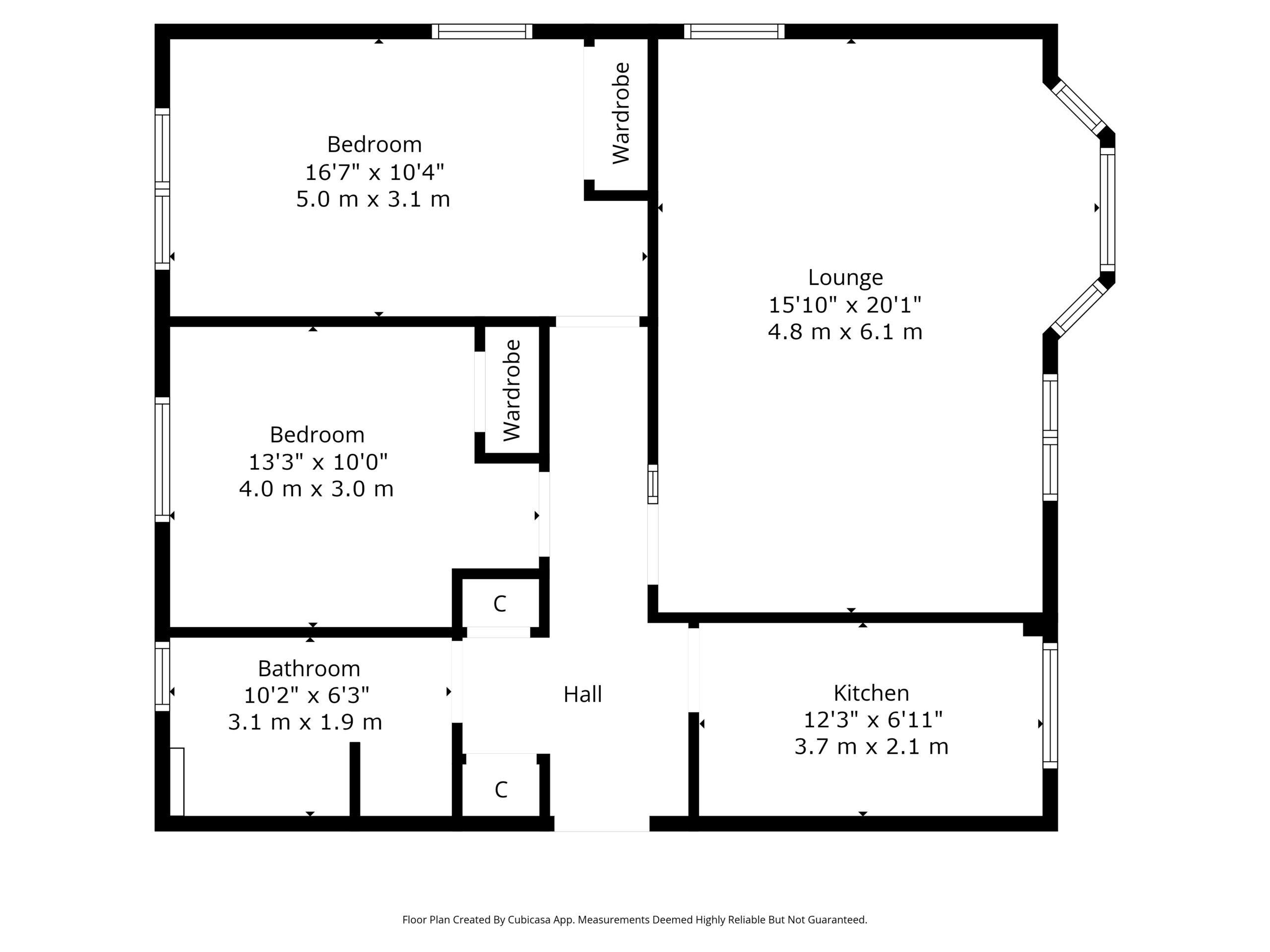
Entrance to the building is via a secure door entry system that leads to a well-maintained residents' communal hall. The internal accommodation comprises; welcoming reception hallway with two storage cupboards off, an extremely spacious bay windowed lounge with dual aspects, and a good-sized galley style kitchen with base and wall mounted units. There are two spacious double bedrooms, both benefitting from built in wardrobes, and the principal further enhanced with dual aspect views. Finally, a well-appointed family bathroom with three-piece suite completes the internal accommodation on offer.
The property benefits from double glazing, gas central heating, secure entry system, well-kept communal landscaped gardens and an allocated parking space.
EER Band: B
If you have any questions or would like
to arrange a viewing, don't hesistate to
contact us today using the links below
E: westendenq@corumproperty.co.uk
Anniesland is a highly popular district of the West End and has a wide range of local amenities, including a Morrisons, Marks & Spencer and an Aldi. There are also a number of independent shops at Anniesland Cross on Great Western Road.
The highly regarded David Lloyd Leisure Centre is located close by which, via membership, offers a host of recreational facilities and even has an outdoor swimming pool.
There is a local railway station, superb bus links to Glasgow City Centre and beyond and, of course, excellent road links via Anniesland Cross. The South Side of the city can be accessed via the nearby Clyde Tunnel. Anniesland also offers some excellent schooling. The High School of Glasgow Senior School and playing fields are located just off Anniesland Road, as are Glasgow Academy’s playing fields on Helensburgh Drive.
Sat Nav:
1/2 22 Hutton, Anniesland, Glasgow, G12 0FF
WE5449
For the full home report visit
corumproperty.co.uk* All measurements and distances are approximate. Floorplans are for illustration purposes and may not be to scale. Buildings and/or floors may not be geographically accurate.


Sat Nav:
1/2 22 Hutton, Anniesland, Glasgow, G12 0FF
WE5449
For the full home report visit
corumproperty.co.uk* All measurements and distances are approximate. Floorplans are for illustration purposes and may not be to scale. Buildings and/or floors may not be geographically accurate.