4 | BEDROOMS
2 | BATHROOMS
1 | PUBLIC ROOM
Available for the first time in decades, this stunning main door flat is entirely unique providing many attractive traits and private gardens in one of Glasgow's most admired addresses.
Positioned in a celebrated conservation area and surrounded by a close-knit community this exceptional home is found in a stone building where Millbrae Crescent meets Millbrae Road. The crescent is from the drawing board of Alexander “Greek” Thomson whilst the property itself delivers five large, versatile apartments and impressive period features alongside a four-piece bathroom, a bespoke fitted kitchen, and landscaped gardens.
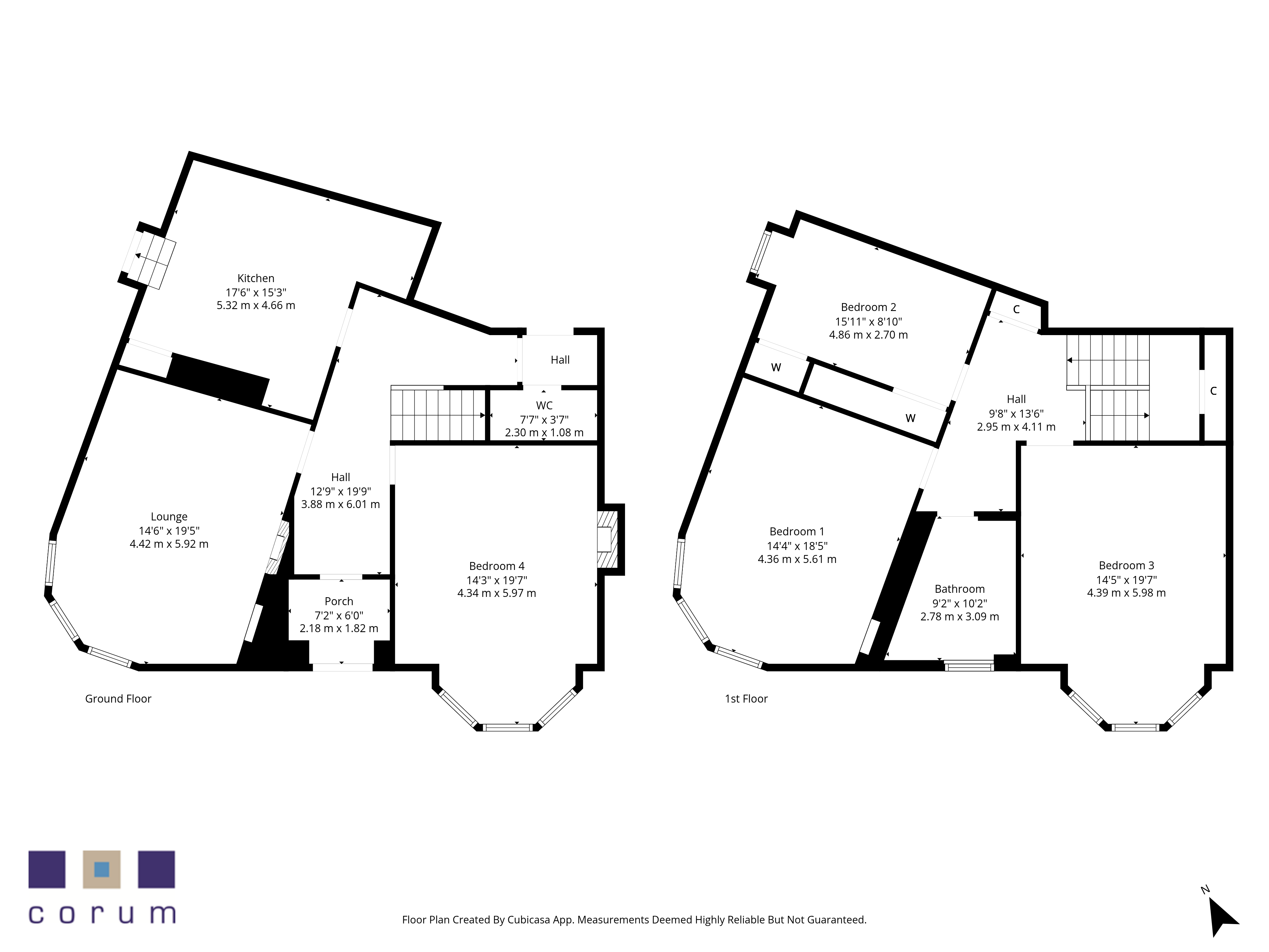
The accommodation in brief; vestibule via storm doors, reception hallway, corner bay windowed lounge, a bay windowed bedroom currently used as a home office and a fitted dining kitchen featuring integrated items, a centre island with overhang for stool seating, a ceiling pulley and a side door providing access to the garden. A smart wc is also found off the ground floor hallway.
A grand internal staircase with detailed balustrade leads to first floor level revealing three generous double bedrooms, two with bay window formations, and a wonderful four-piece bathroom suite. There is a fitted cupboard at half landing and another off the first-floor landing.
It should be noted that some furniture in the property is available by separate negotiation. A fitted projector and screen in the kitchen will be included in the sale as well as a screen in the principal bedroom at first floor level.
The specification includes Nest controlled gas central heating, double glazed windows, and an abundance of traditional features combined with tasteful decor/flooring. Gated access to the front of the property is controlled by a video entry system whilst an internal door under the staircase gives access into the common close for the building and out to a shared rear garden. To the front of the property is a private garden wrapping around the flat complete with cleverly maintained perimeter hedging designed to aid privacy.
EER Band - D
1 Millbrae Crescent is within walking distance of an abundance of amenities whilst Newlands Park and Queens Park are both less than one mile from the front door. The local railway station at Langside is on the Cathcart Circle line, a 5 stop journey into Glasgow central station. The M77 and M74 both connect the Southside of Glasgow to Scotland’s motorway network.
Sat Nav:
1 Millbrae Crescent, Langside, Glasgow City, G42 9UW
SS5159
For the full home report visit
corumproperty.co.uk* All measurements and distances are approximate. Floorplans are for illustration purposes and may not be to scale. Buildings and/or floors may not be geographically accurate.


Sat Nav:
1 Millbrae Crescent, Langside, Glasgow City, G42 9UW
SS5159
For the full home report visit
corumproperty.co.uk* All measurements and distances are approximate. Floorplans are for illustration purposes and may not be to scale. Buildings and/or floors may not be geographically accurate.