3 | BEDROOMS
3 | BATHROOMS
1 | PUBLIC ROOM
A superb three-bedroom, semi-detached house, located in the desirable Bishopton district, Dargavel Village, boasting a rare private corner plot.
Property Description
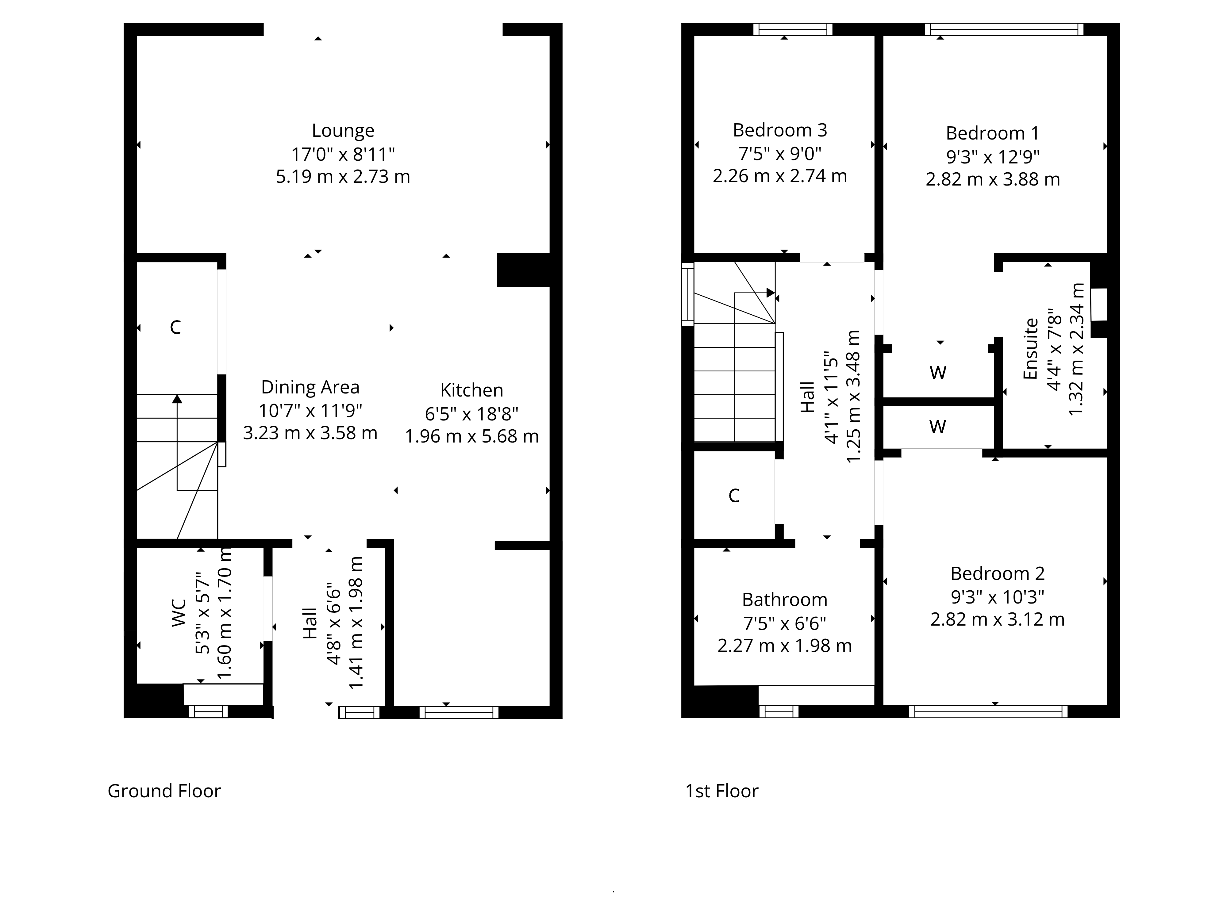
Occupying a prime position within the highly sought-after Dargavel development, this impressive family home enjoys a generous corner plot that offers both privacy and space.
The property combines contemporary design with practical living, featuring a bright, open-plan kitchen and living area with high-spec Hotpoint integrated appliances, ample space for dining, utility room, and striking triple bi-fold doors that lead to the fully enclosed rear garden with a raised decking area. With its desirable north-west facing aspect, the garden is perfect for relaxing and enjoying the evening sun. A sizeable W.C completes the lower level.
Upstairs, there are two spacious double bedrooms, both with built-in sliding wardrobes. The front-facing bedroom enjoys open south-facing views across Tain Avenue, while the principal bedroom to the rear benefits from a modern en-suite shower room with a walk-in shower and an energy-efficient, electronically controlled heating system. The upper landing provides access to a modern three-piece suite family bathroom, large storage area and the loft.
Externally, the home is enhanced by beautifully landscaped gardens, featuring neat front pebble grounds, and a monobloc tandem driveway. The private rear garden is fully enclosed with timber fencing and rarity in its non-overlooked position.
The property further benefits from double glazed windows, gas central heating with efficient solar panels, internal Hive heating system and close proximity to Central Park, Schools, transport links and the abundance of local amenities that Bishopton has to offer.
EER Band B
Council Tax Band D
Please note: under the Regulations of the Estate Agents Act 1979, the vendor of the property is a connected person within the meaning of the act.
Bishopton is a popular village in West Renfrewshire with direct access to the M8 motorway allowing commuting to Glasgow in approximately 28 minutes. The location is only four miles from the Erskine Bridge allowing access to the northwest of Glasgow and the stunning Loch Lomond and Trossachs National Park. The rail station has park and ride facilities and regular services to both Inverclyde and Glasgow city centre. Dargavel Village features a modern shopping outlet and Dargavel primary school. The original village amenities include Bishopton primary school, community centre, library, and leisure centre. There are local rugby, tennis, football and golf clubs, local shops, a village pub, and several food outlets. Secondary schooling can be found in nearby Erskine.
Sat Nav:
12 Tain Avenue, Bishopton, Renfrewshire, PA7 5GF
BW2740
For the full home report visit
corumproperty.co.uk* All measurements and distances are approximate. Floorplans are for illustration purposes and may not be to scale. Buildings and/or floors may not be geographically accurate.
Sat Nav:
12 Tain Avenue, Bishopton, Renfrewshire, PA7 5GF
BW2740
For the full home report visit
corumproperty.co.uk* All measurements and distances are approximate. Floorplans are for illustration purposes and may not be to scale. Buildings and/or floors may not be geographically accurate.














