| BEDROOM
| BATHROOM
| PUBLIC ROOM
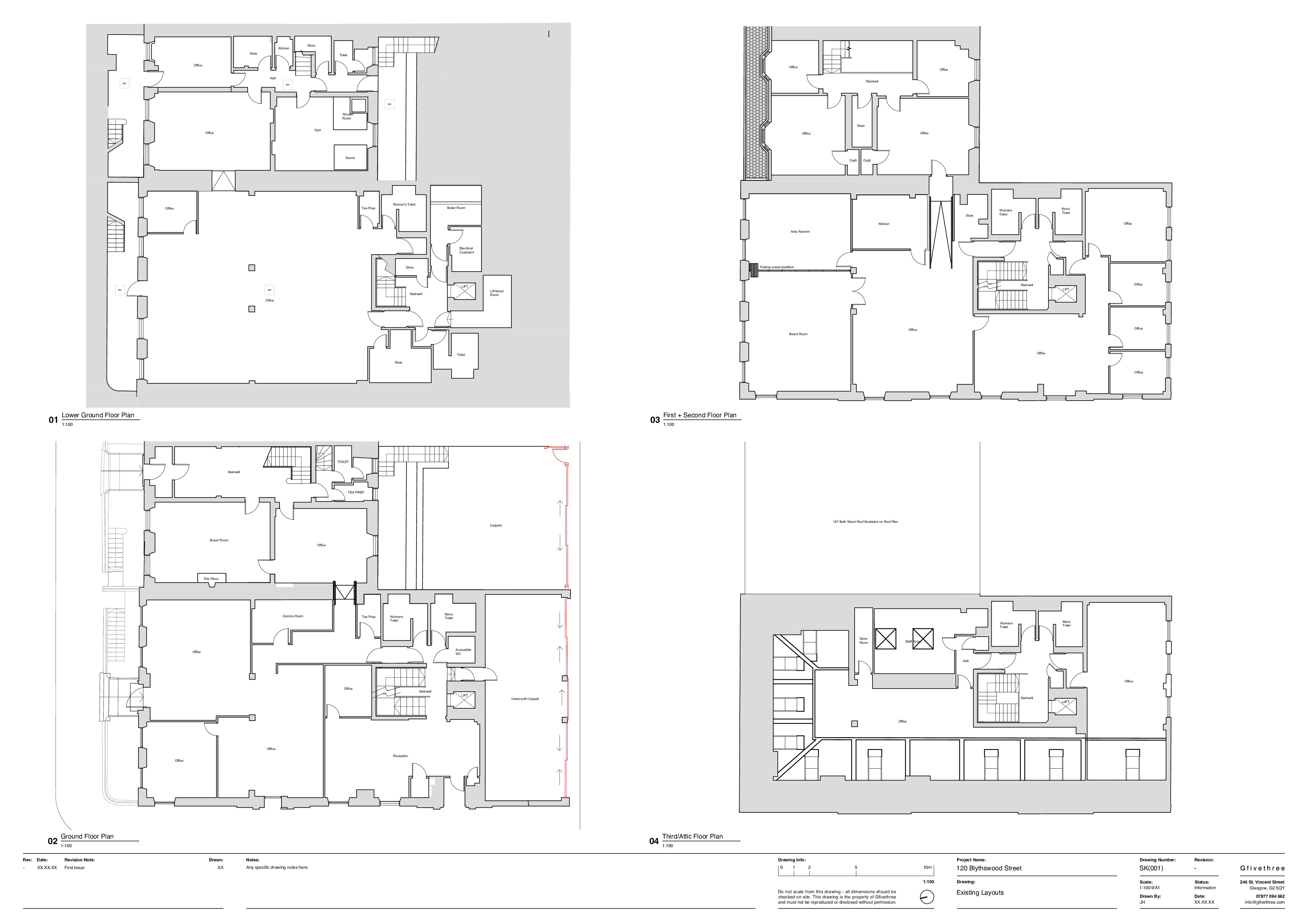
Mackintosh House is an impressive traditional blonde sandstone property of approximately 16,000 sq ft, featuring private parking and outstanding development potential, ideally located in the heart of Glasgow’s City Centre
Description
Occupying a prominent corner position at the junction of Bath Street and Blythswood Street in the heart of Glasgow’s bustling city centre, this striking traditional blonde sandstone building - known as Mackintosh House - extends to approximately 16,000 sq ft. over multiple floors.
Set amidst a vibrant mix of offices, hospitality venues, and cultural institutions, the property offers exceptional potential for a wide range of commercial uses — from office headquarters and co‑working spaces to leisure, hospitality, or residential conversion (subject to consents).
Located just off Blythswood Square, one of Glasgow’s most architecturally distinguished and commercially established quarters, Mackintosh House represents a rare opportunity to acquire a substantial and characterful property in a prestigious city centre setting.
Internally, the building has been fully stripped out, presenting a rare opportunity for occupiers or developers to create a bespoke environment tailored to their vision. With generous proportions, superb natural light, and a commanding street presence, it’s a blank slate with endless potential. Externally, there is secure car parking for at least four cars located at the rear of the premises.
Just moments from Glasgow’s major transport hubs, including Charing Cross railway station, Buchanan Bus Station, and both Buchanan Street and Cowcaddens Subway stations, the property is exceptionally well connected for commuters and clients alike. Its central position also places it within easy reach of the M8 motorway network and a short walk from Queen Street and Central Stations.
Sat Nav:
120 Blythswood Street, Glasgow, G2 4EA
WE5399
For the full home report visit
corumproperty.co.uk* All measurements and distances are approximate. Floorplans are for illustration purposes and may not be to scale. Buildings and/or floors may not be geographically accurate.
Sat Nav:
120 Blythswood Street, Glasgow, G2 4EA
WE5399
For the full home report visit
corumproperty.co.uk* All measurements and distances are approximate. Floorplans are for illustration purposes and may not be to scale. Buildings and/or floors may not be geographically accurate.





