2 | BEDROOMS
2 | BATHROOMS
1 | PUBLIC ROOM
This terrific second floor flat is found on a popular tree lined address in the heart of bustling Shawlands.
Occupying a prominent position in a central Shawlands address, this two-bedroom home is very well presented to market. This flat represents a terrific opportunity for buyers keen to live in a thriving part of Glasgow’s Southside close to numerous amenities.
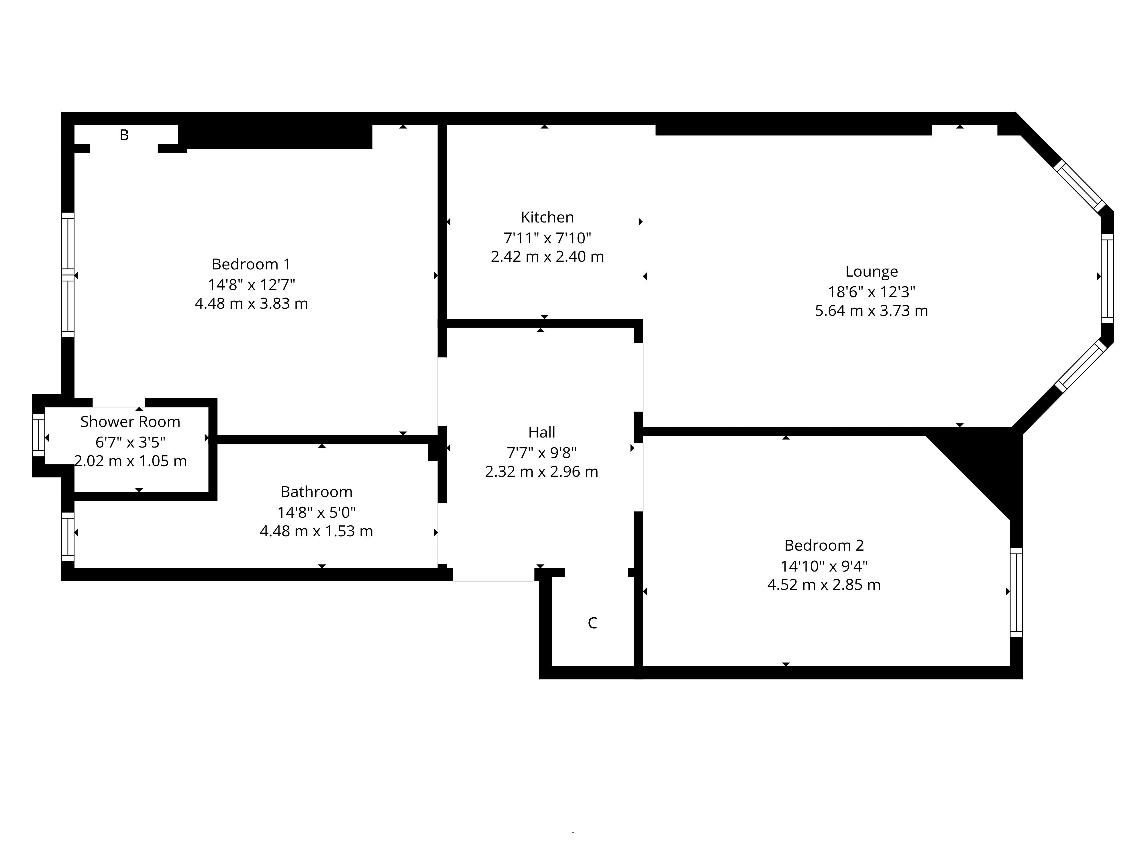
The accommodation in brief; resident’s stairwell to second floor level, broad reception hallway with storage adjacent and a bay windowed lounge to front with open plan access to a recessed fitted kitchen. The kitchen includes an integrated gas hob, a fan assisted oven, a washing machine, and a fridge/freezer. There are then two double bedrooms one of which has an en-suite shower room whilst the other is presently used as a home office. A three-piece bathroom suite with shower above the tub completes the internal accommodation.
The property has an audio door entry system, gas central heating, double glazed windows, and a fitted storage cupboard off the hallway. A rear garden is accessed from the shared stairwell at ground floor, available to our client and seven other flats. The building maintenance is managed by J.B & G Forsyth based in Glasgow.
EER Band - C
12 Edgemont Street is on the doorstep of thriving shops, bars, coffee houses, bakeries, and restaurants. A Morrisons, a Sainsburys, a Tesco and an M&S store are all within half a mile of the property. The fringe of Queen’s Park hosts a Farmers’ Market on the 1st and 3rd Saturday of each month whilst recreational space, tennis courts and football pitches are available within the park. Shawlands Civic Square is also nearby, designed to offer a destination for markets, dance, craft events, speakers and debate.
Sat Nav:
2/1, 12 Edgemont Street, Shawlands, Glasgow, G41 3EN
SS5181
For the full home report visit
corumproperty.co.uk* All measurements and distances are approximate. Floorplans are for illustration purposes and may not be to scale. Buildings and/or floors may not be geographically accurate.
Sat Nav:
2/1, 12 Edgemont Street, Shawlands, Glasgow, G41 3EN
SS5181
For the full home report visit
corumproperty.co.uk* All measurements and distances are approximate. Floorplans are for illustration purposes and may not be to scale. Buildings and/or floors may not be geographically accurate.










