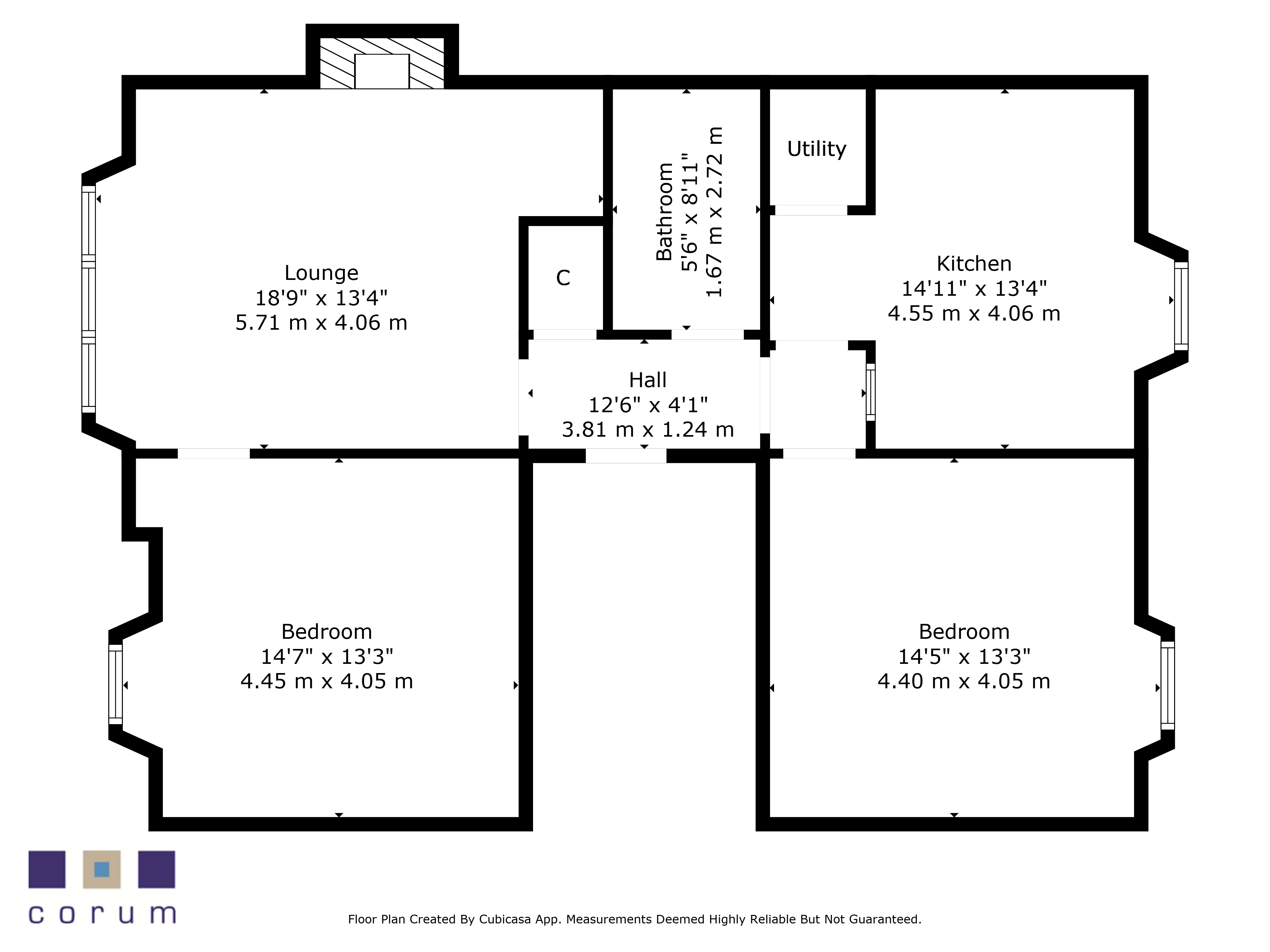
2 | BEDROOMS
1 | BATHROOM
1 | PUBLIC ROOM
A wonderful, second floor conversion in one of Hyndland’s most prestigious addresses.
Description
Situated in the heart of the West End, this fabulous second floor apartment enjoys an enviable position on the highly sought-after Westbourne Gardens—one of Hyndland’s most prestigious and desirable addresses. With access to the beautifully maintained private residents’ gardens, among the finest in Glasgow, this home offers a rare blend of period charm and a prime location.
The property is accessed via a stunning communal entrance, showcasing original features and a traditional staircase that leads to all floors. Internally, the accommodation comprises a welcoming reception hall, a bright and spacious lounge with leafy outlooks, and a generously sized double bedroom to the front. To the rear, there is another large double bedroom, along with a modern, well-appointed dining kitchen, with useful utility space. Completing the layout is a stylish family bathroom and storage cupboard off the hall.
Additional benefits include on-street permit parking and a superb location, perfectly placed to enjoy everything the vibrant West End has to offer—from independent shops and cafés, to excellent transport links and green spaces.
Ideal for professionals, couples, or those seeking a prime West End residence, this exceptional home combines space, character, and an unbeatable setting.
EER Band: D
If you have any questions or would like
to arrange a viewing, don't hesistate to
contact us today using the links below
E: westendenq@corumproperty.co.uk
Hyndland is highly regarded as the social hub of the West End. The area has been truly transformed in the last ten years with a number of excellent bars and restaurants, and also a variety of independent shops and boutiques.
There is great public transport in the area with a range of bus routes on Hyndland Road and Hyndland Railway Station providing links to Glasgow City Centre, Edinburgh and beyond. Hyndland is within close proximity to Byres Road, which offers a further selection of shops and amenities including Hillhead Subway Station. Glasgow University is situated on University Avenue, just off Byres Road, providing world class further education.
Sport and recreational facilities can be found at Hillhead Sports Club and The Western Lawn Squash & Tennis Club on Hyndland Road.
The area provides some of the best traditional tenements, conversions and townhouses in Glasgow, let alone the West End. There are a number of excellent comprehensive schools in the area as well as private schooling at The Glasgow Academy, The High School of Glasgow and Kelvinside Academy.
Directions
From Corum’s office on Hyndland Road, head north and turn first right onto Westbourne Road. Turn left onto Westbourne Gardens, then right, and right again, to stay on Westbourne Gardens, and number 40 will be found on the left hand side.
Sat Nav:
2/1 40 Westbourne Gardens, Hyndland, G12 9PF
WE5410
For the full home report visit
corumproperty.co.uk* All measurements and distances are approximate. Floorplans are for illustration purposes and may not be to scale. Buildings and/or floors may not be geographically accurate.
Sat Nav:
2/1 40 Westbourne Gardens, Hyndland, G12 9PF
WE5410
For the full home report visit
corumproperty.co.uk* All measurements and distances are approximate. Floorplans are for illustration purposes and may not be to scale. Buildings and/or floors may not be geographically accurate.





