5 | BEDROOMS
3 | BATHROOMS
3 | PUBLIC ROOMS
This truly wonderful, detached villa is located within this exclusive private cul-de-sac and set in the grounds of Kip Marina. Whilst enjoying the location there is a local train station and excellent road links to Ayrshire and Inverclyde. The marina has many berths along with the popular Chartroom restaurant & bar whilst providing access to the Firth of Clyde to destinations further afield.
Property Description
2 Hebrides Grove is a fabulous contemporary home which is set in the grounds of Kip Marina and is a great base for sailors or those looking to enjoy a glass of wine and a bite to eat at the Chartroom. This modern detached villa is located in an exclusive cul-de-sac with other excellent properties.
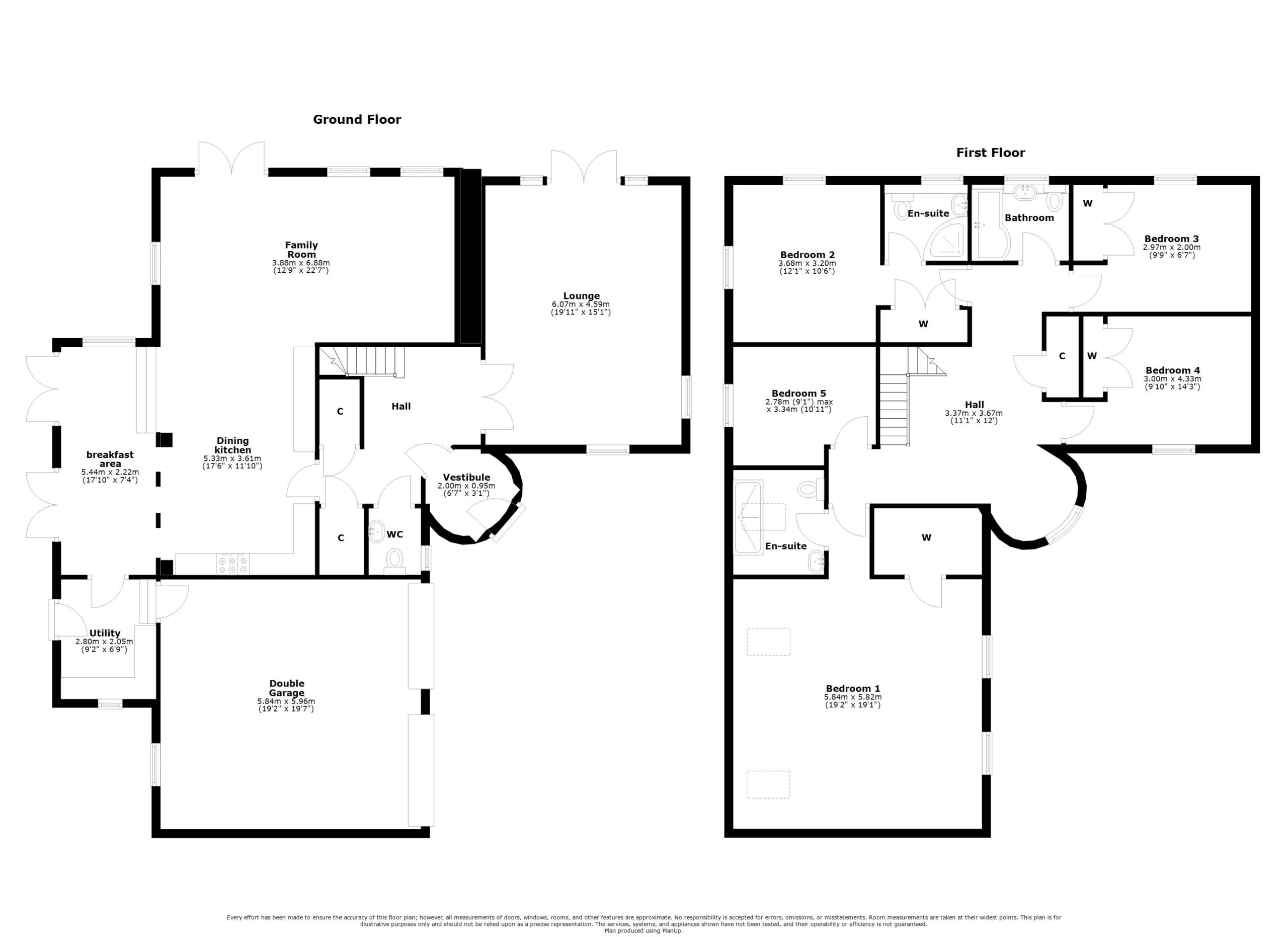
The excellent accommodation on offer extends to a beautiful entrance vestibule which leads through to the bright and welcoming reception hallway, downstairs wc, formal lounge with French door access to the garden grounds, a quite lovely contemporary open plan living space which incorporates the dining kitchen which is the ideal space to cook or enjoy a coffee, family room which is a great space and through to the relaxing breakfast area which has access out to the garden grounds and to complement the dining kitchen there is a modern utility. On the upper level of the home there is well proportioned family accommodation extending to bedroom one with its feature en-suite & walk in wardrobe, guest bedroom/bedroom two with a private en-suite, three further double bedrooms and modern family bathroom. The property has gas central heating and double glazing. There are good sized and easily maintained private garden grounds with a feature decked area. To the front of the home there is driveway which leads to double garage. Early viewing is highly recommended to appreciate the accommodation and location on offer.
The village of Inverkip lies approximately 4 miles southwest of Greenock and has direct train links to Glasgow and excellent roads linking Largs in the south and Greenock and Glasgow to the north. Inverkip village, connected by a walkway from the marina offers a local Sainsbury’s, a pharmacy and takeaway food options. It also benefits from a local bowling club and community Astro Turf facilities. For those who have an interest in sailing, Inverkip Marina is considered to be one of the finest in Scotland with berths for 600 craft. The village is also set to benefit from the creation of a proposed world-class distillery and visitor center on land leading into the village.
Sat Nav:
2 Hebrides Grove, Inverkip, Inverclyde, PA16 0BQ
LA2181
For the full home report visit
corumproperty.co.uk* All measurements and distances are approximate. Floorplans are for illustration purposes and may not be to scale. Buildings and/or floors may not be geographically accurate.
Sat Nav:
2 Hebrides Grove, Inverkip, Inverclyde, PA16 0BQ
LA2181
For the full home report visit
corumproperty.co.uk* All measurements and distances are approximate. Floorplans are for illustration purposes and may not be to scale. Buildings and/or floors may not be geographically accurate.





























