2 | BEDROOMS
1 | BATHROOM
2 | PUBLIC ROOMS
** CLOSING DATE TUESDAY 10TH MARCH AT 12 NOON ** An immaculate detached property set on a generous corner plot offering great potential to develop/extend with ample driveway parking, 33’ tandem garage and all perfectly positioned close to the seafront.
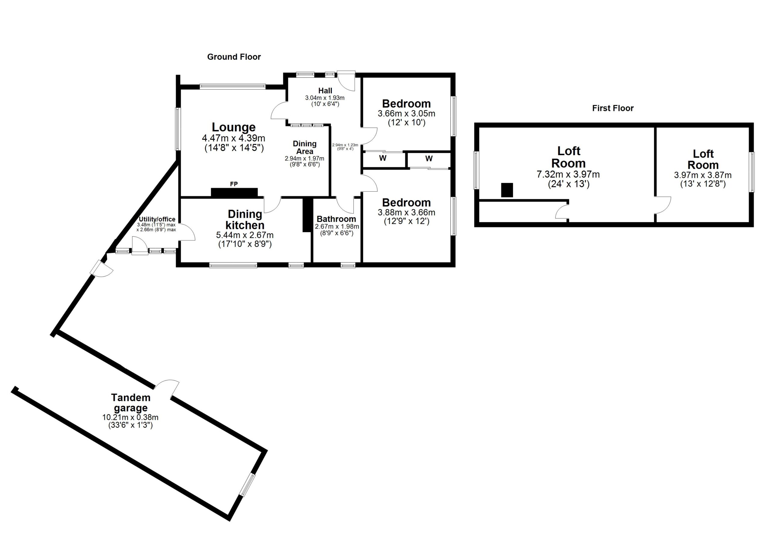
** CLOSING DATE TUESDAY 10TH MARCH AT 12 NOON ** Number 24 is an individually designed detached property particularly suited to those clients looking for all on the level accommodation. Presented in very good order throughout benefits include a modern fitted kitchen with integrated appliances, feature electric fire in the lounge, tiled four piece bathroom, gas central heating with a ‘Worcester’ boiler, fitted wardrobes in both bedrooms, quality floor coverings including oak, neutral decoration and double glazing.
Potential purchasers should note the property occupies a generous plot with excellent potential to create further accommodation by extending the existing property and/or developing the loft space. The loft space is currently accessed via a pull down ladder and has already been partially converted.
In summary the accommodation extends to a reception hallway, well proportioned lounge/dining room, open plan dining kitchen, two double bedrooms, four piece bathroom and useful study/utility room.
Externally the front and side gardens are predominantly laid to lawn with surrounding borders laid to low maintenance red whin chips. The fully enclosed, child safe rear garden is laid to lawn with patio area and shrubbery borders. At the side there is a 33’ tandem garage and ample driveway parking accessed from Carrick Road. The garage has a roller door and courtesy door to the side.
EER BAND D
If you have any questions or would like
to arrange a viewing, don't hesistate to
contact us today using the links below
E: troon@corumproperty.co.uk
Firth Road is a highly sought after residential location within close proximity to various amenities including an excellent primary school, Barassie Golf Club and Barassie railway station linking south to Ayr and north to Glasgow. The property is also within walking distance of the seafront. Troon town centre is around two miles distant and provides a more comprehensive range of amenities including boutique shops, bars and restaurants.
Sat Nav:
24 Firth Road, Troon, KA10 6TF
TR2118
For the full home report visit
corumproperty.co.uk* All measurements and distances are approximate. Floorplans are for illustration purposes and may not be to scale. Buildings and/or floors may not be geographically accurate.
Sat Nav:
24 Firth Road, Troon, KA10 6TF
TR2118
For the full home report visit
corumproperty.co.uk* All measurements and distances are approximate. Floorplans are for illustration purposes and may not be to scale. Buildings and/or floors may not be geographically accurate.





























