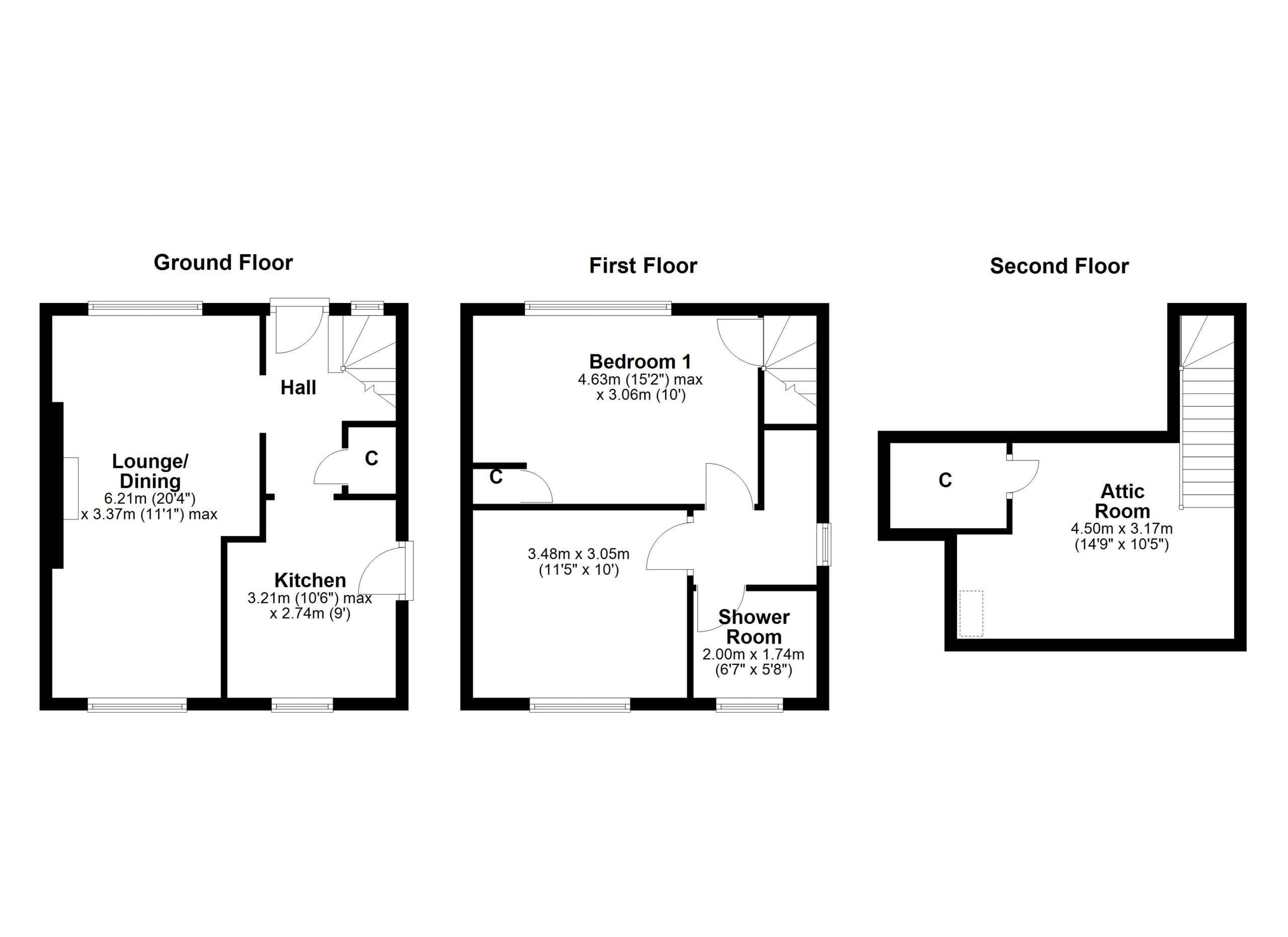
Online Brochure for 26 Hutchison Street, Maybole, KA19 7EA

This property is not currently available. It may be sold or temporarily removed from the market.
Corum Property
Privacy Overview

This website uses cookies so that we can provide you with the best user experience possible. Cookie information is stored in your browser and performs functions such as recognising you when you return to our website and helping our team to understand which sections of the website you find most interesting and useful.

This website also uses Google Analytics to collect anonymous information such as the number of visitors to the site, and the most popular pages.

By continuing to use this website, you agree to their use.