5 | BEDROOMS
4 | BATHROOMS
2 | PUBLIC ROOMS
Modern, immaculately presented, five bedroom, detached villa, set back from Milngavie Road in an elevated and tucked away position, enjoying beautifully maintained gardens to both front and rear and benefitting from a large double garage.
Set back from Milngavie Road, in an elevated and tucked-away position, this modern detached villa delivers exceptional family accommodation across two levels. Enjoying immense privacy and beautifully maintained gardens to both front and rear, the property also benefits from a large double garage, positioned directly opposite. Presented in immaculate condition, the interior is decorated throughout in neutral tones, complemented by quality fixtures and fittings, creating a home that is both stylish and highly practical.
The property lies within the sought-after Mosshead district of Bearsden and therefore falls within the catchment for Mosshead Primary and Bearsden Academy – two of the area’s most acclaimed schools.
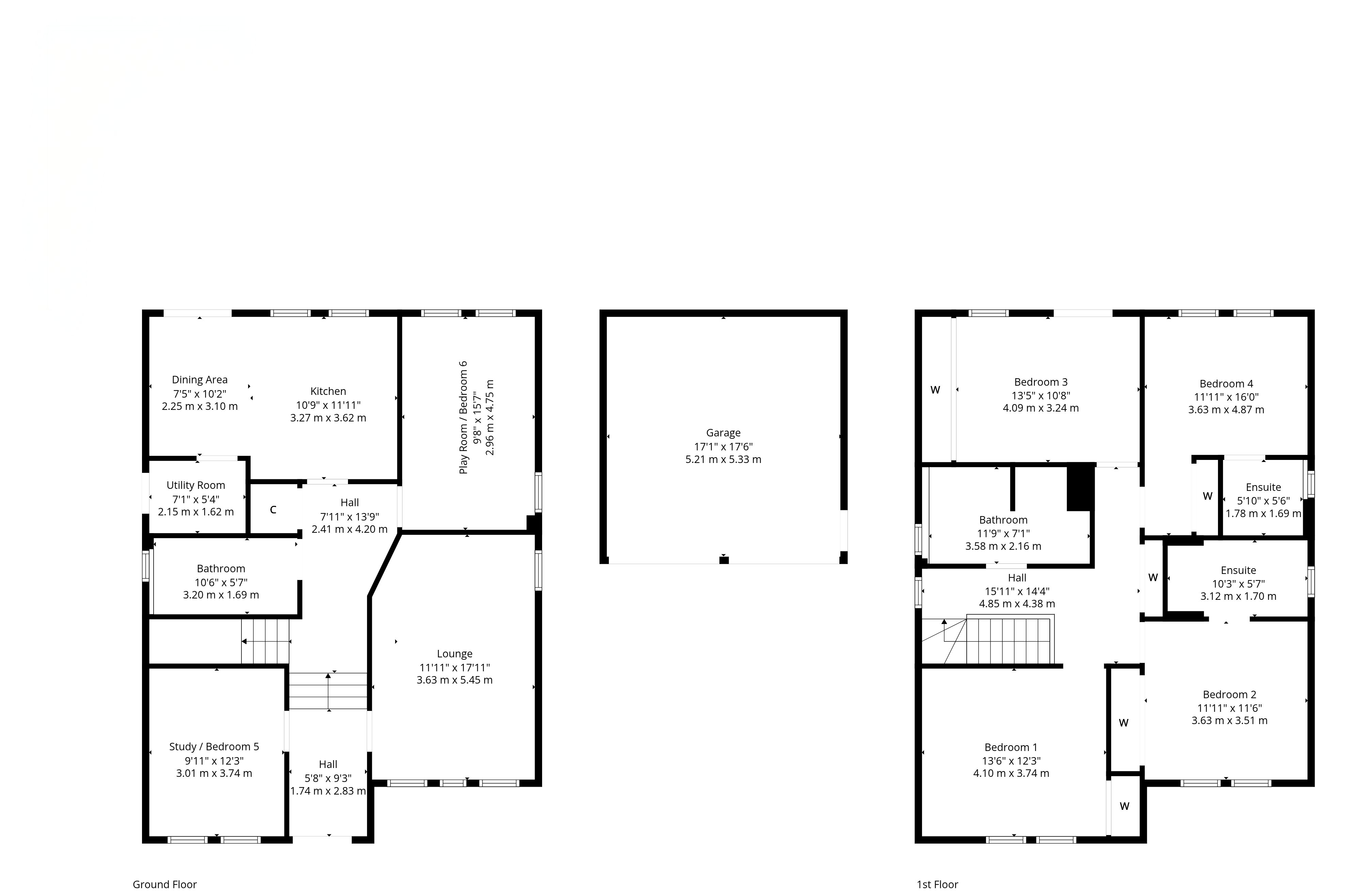
Accessed most often from the rear, the accommodation extends to an impressive and flexible layout as shown on the attached floorplan. The ground floor opens with a welcoming split level hallway, leading into a generously proportioned lounge, a bright space with a dual aspect and large front-facing window. At the rear, the kitchen and adjoining dining area combine practicality with modern family living, complemented by a utility room. A further play room/bedroom offers superb flexibility, while an additional study/fifth bedroom and a contemporary bathroom complete the lower level.
Upstairs, the accommodation continues to impress with four sizeable bedrooms, all boasting fitted storage, with two also benefitting from en-suite shower rooms. There is also a stylishly appointed family bathroom. Each room is well proportioned, with ample natural light and an adaptable layout to suit a variety of family requirements.
The specification includes gas central heating and double glazing.
The surrounding gardens are well presented and offer a high degree of privacy. The rear garden is fully enclosed, private, and ideal for children or pets, while the front garden offers a level, secluded space laid mainly to lawn. There is pedestrian access from the front garden down to Milngavie Road.
Altogether, this is a particularly spacious and versatile home, perfectly balancing privacy with convenience, in one of Bearsden’s most admired settings.
EER Band - pending
If you have any questions or would like
to arrange a viewing, don't hesistate to
contact us today using the links below
E: bearsdenenq@corumproperty.co.uk
The suburb of Bearsden is one of Glasgow’s most desired districts in which to reside. There are numerous highly acclaimed educational facilities at both Primary and Secondary levels and leisure facilities are plentiful with a choice of private and state gyms and clubs in abundance. Locally, there is an excellent selection of shops and services at Bearsden Cross along with restaurants, cafes and bars. There are excellent bus links nearby and train stations can be found at Hillfoot, Westerton and Bearsden providing regular services into Glasgow’s West End and City Centre, including a service to Edinburgh.
Glasgow Airport can be reached within twenty-five minutes off peak and, to the north of Bearsden is the world renowned Loch Lomond and The Trossachs National Park.
Sat Nav:
277D Milngavie Road,, Bearsden, Glasgow, East Dunbartonshire, G61 3DQ
BD3985
For the full home report visit
corumproperty.co.uk* All measurements and distances are approximate. Floorplans are for illustration purposes and may not be to scale. Buildings and/or floors may not be geographically accurate.
Sat Nav:
277D Milngavie Road,, Bearsden, Glasgow, East Dunbartonshire, G61 3DQ
BD3985
For the full home report visit
corumproperty.co.uk* All measurements and distances are approximate. Floorplans are for illustration purposes and may not be to scale. Buildings and/or floors may not be geographically accurate.





















