2 | BEDROOMS
3 | BATHROOMS
1 | PUBLIC ROOM
Stylish coastal living within the prestigious Strathdoon House courtyard development in Seafield. This superb two bedroom villa offers a stunning open-plan designer kitchen, lounge and dining space alongside two double en-suite bedrooms. Private residents’ parking and beautifully landscaped communal gardens complete the home.
Located within the highly desirable Seafield district of Ayr, just a short stroll from the picturesque seafront and within easy reach of Ayr town centre, this beautifully presented two bedroom semi-detached villa forms part of the prestigious and award-winning Strathdoon House courtyard development by the renowned Gray Homes Ltd.
Originally part of the historic Strathdoon House, the development has been thoughtfully transformed to create a unique collection of contemporary homes arranged around attractive landscaped courtyard gardens, perfectly blending traditional character with modern design in an exceptional coastal setting.
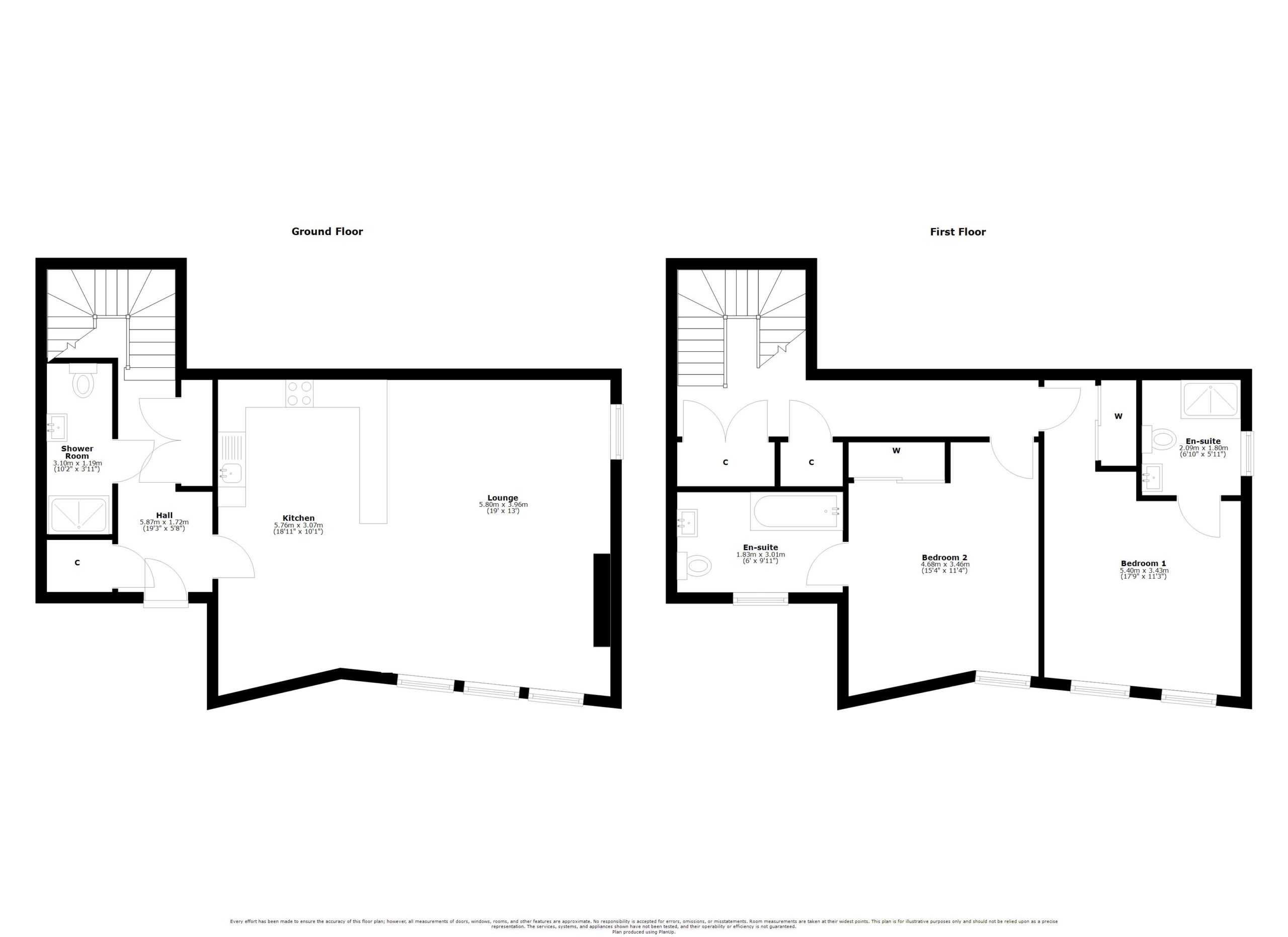
Number 50F is a superb modern villa finished to a high specification and enhanced by a number of stylish upgrades throughout. The accommodation is bright, spacious and thoughtfully designed, ideal for modern living.
The ground floor begins with a welcoming reception hall providing useful storage and access to a stylish shower room. The true centrepiece of the home is the impressive open plan lounge, dining and designer kitchen, creating a fantastic sociable living space. The kitchen features upgraded countertops, quality cabinetry and modern appliances, while contemporary flooring flows throughout the space. The lounge area is further enhanced by a striking modern focal-point fireplace, creating a warm and stylish setting.
On the upper level, the property offers two generously proportioned double bedrooms, both benefiting from the luxury of en-suite facilities. The landing also incorporates a particularly useful utility cupboard, plumbed for a washing machine, providing excellent practicality.
Further benefits include gas central heating and double glazing throughout.
Externally, the development enjoys beautifully maintained communal landscaped gardens, while the property also benefits from private residents’ parking.
Properties within this exclusive and architecturally distinctive development rarely come to market, particularly those presented to such a high standard, making this an outstanding opportunity to secure a stylish home in one of Ayr’s most sought-after coastal locations.
EER - B
If you have any questions or would like
to arrange a viewing, don't hesistate to
contact us today using the links below
E: ayr@corumproperty.co.uk
Seafield is widely regarded as one of Ayr’s most desirable residential districts, prized for its enviable coastal setting just moments from Ayr’s picturesque seafront and promenade.
Within easy reach are a number of popular local cafés, restaurants and hotels including the stylish Fairfield House Hotel and the well regarded Savoy Park Hotel, both offering dining and leisure facilities close by. Residents also enjoy the convenience of Seafield Stores, a much loved local shop providing everyday essentials within the neighbourhood.
Ayr town centre lies only a short distance away and provides an excellent range of supermarkets, high street retailers, independent boutiques, cafés, bars and restaurants, including major stores such as Sainsbury’s, Tesco, Morrisons and M&S.
The property is also ideally placed for access to the beautiful Belleisle Estate, a stunning historic parkland setting featuring woodland walks, formal gardens, cafes and the highly regarded Belleisle Golf Course.
For commuters, Ayr railway station offers regular services to Glasgow, while the nearby A77/M77 road network provides swift access north towards Glasgow and south into the wider Ayrshire region.
Seafield remains one of Ayr’s most sought-after locations in which to live.
Sat Nav:
50F Racecourse Road, Ayr, KA7 2UZ
AY5567
For the full home report visit
corumproperty.co.uk* All measurements and distances are approximate. Floorplans are for illustration purposes and may not be to scale. Buildings and/or floors may not be geographically accurate.
Sat Nav:
50F Racecourse Road, Ayr, KA7 2UZ
AY5567
For the full home report visit
corumproperty.co.uk* All measurements and distances are approximate. Floorplans are for illustration purposes and may not be to scale. Buildings and/or floors may not be geographically accurate.





















