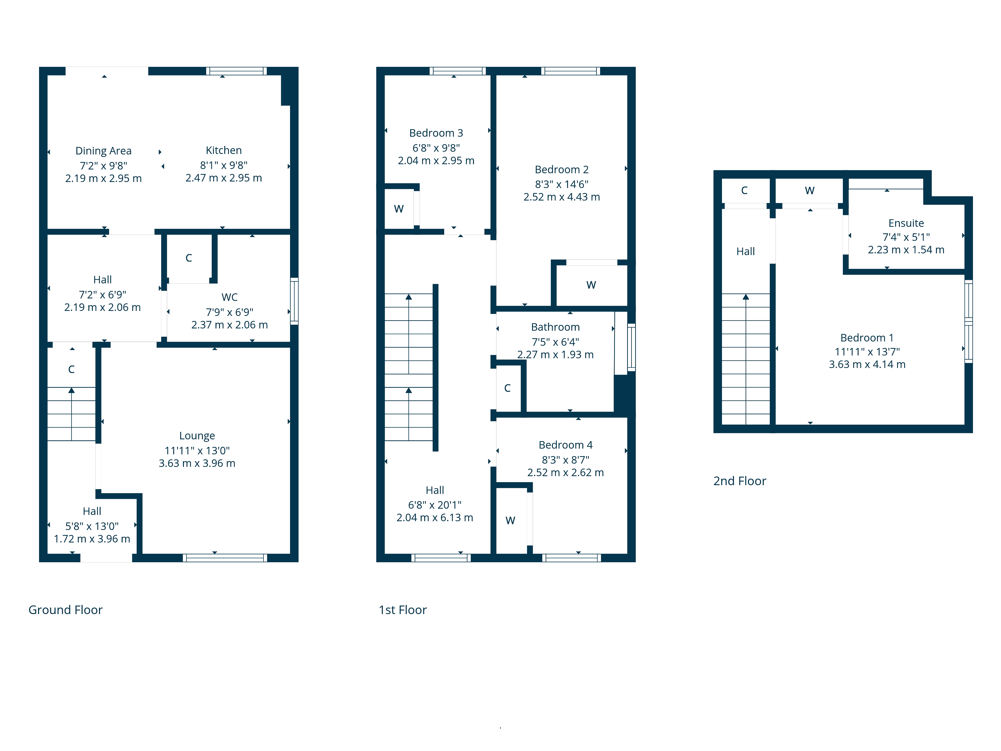
4 | BEDROOMS
3 | BATHROOMS
1 | PUBLIC ROOM
This exceptional modern home is found in a popular development on the doorstep of Pollok Park and countless amenities.
Positioned in an admired collection of homes this is a tremendous example of a 21st century, end terraced property. The redevelopment of Pollokshaws continues to impress and Auldfield Gate is a trendy place to live given its proximity to numerous attractions throughout the Southside.
The accommodation in brief; entrance hallway, main lounge, ground floor wc and a fitted dining sized kitchen providing direct, level access out to an enclosed private garden.
A fixed staircase leads to first floor level revealing three bedrooms one of which is presently used as a dressing room. A three piece bathroom suite is also accessed from first floor landing. A further fixed staircase leads to second floor level and into the principal bedroom with its own luxury en-suite shower room.
The subjects for sale include gas central heating, double glazed windows, fitted internal storage cupboards and tasteful décor/flooring throughout.
Driveway parking is provided to the front of the property with a convenient EV charge point. To the rear is a private landscaped garden, fully enclosed and child/pet safe directly adjacent to the kitchen and so providing a perfect space for alfresco entertainment.
EER Band - C
9 Auldfield Gate is in close proximity to thriving shops, bars, coffee houses and restaurants in Shawlands and Pollokshaws. Pollok Park is less than 500 yards from the front door offering exceptional recreational space. A Lidl, an Aldi and a Morrisons store are all within half a mile whilst bus routes and train stations are also available close by. Junction two of the M77 connects the property to Scotland’s motorway network.
Sat Nav:
9 Auldfield Gate, Pollokshaws, Glasgow City, G43 1FL
SS5178
For the full home report visit
corumproperty.co.uk* All measurements and distances are approximate. Floorplans are for illustration purposes and may not be to scale. Buildings and/or floors may not be geographically accurate.
Sat Nav:
9 Auldfield Gate, Pollokshaws, Glasgow City, G43 1FL
SS5178
For the full home report visit
corumproperty.co.uk* All measurements and distances are approximate. Floorplans are for illustration purposes and may not be to scale. Buildings and/or floors may not be geographically accurate.












