4 | BEDROOMS
2 | BATHROOMS
2 | PUBLIC ROOMS
*** Closing Date *** Wednesday 26th November at 12pm
Property Description
*** Closing Date *** Wednesday 26th November at 12pm
A Stunning Semi-Detached home in Kilbarchan, where traditional character meets a spectacular, modern renovation.
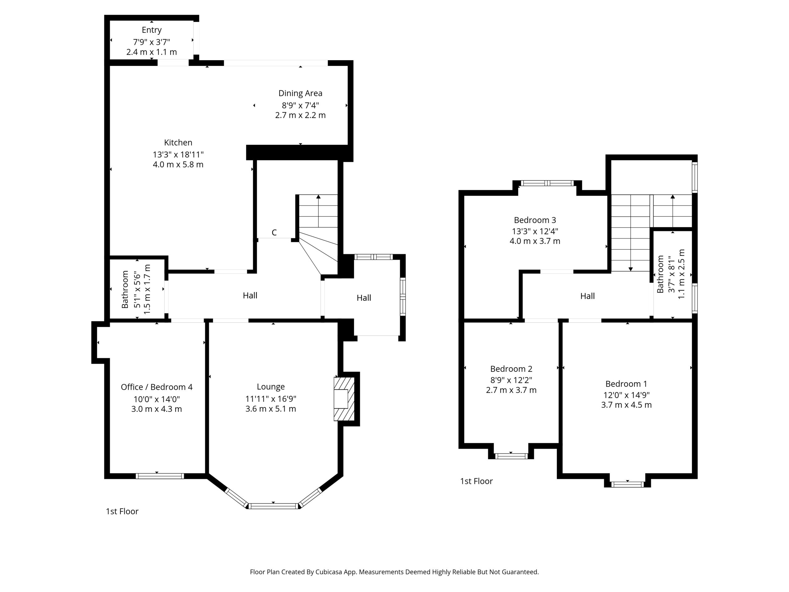
Nestled in the sought-after village of Kilbarchan, this stunning four-bedroom, traditional blonde sandstone semi-detached villa has been transformed by a comprehensive programme of renovation and extension. Beautifully presented in excellent condition throughout, this property seamlessly blends its original period charm with a contemporary, high-specification. No detail has been overlooked, offering a truly move-in ready home.
Entry is through stylish storm doors into a charming entrance vestibule, featuring a classic mosaic floor. The main reception hall, with its elegant staircase, provides access to all ground floor rooms. To the front, the bay-windowed lounge is a bright and inviting space, overlooking the field to the front. It retains a wealth of character with a feature fireplace, traditional wood flooring, and ornate cornice detailing. The magnificent open-plan kitchen and dining area is the heart of the home, brilliantly extended to the rear to create a lovely, social space. Fitted with a sleek, contrasting kitchen featuring a large central island, integrated appliances, and gold accents, the room is flooded with light from bifolding doors that open seamlessly to the garden. A handy boot room provides practical access, while a versatile fourth bedroom, located at the front, features a charming fireplace and press cabinet. Completing this level is a beautiful three-piece bathroom, finished with lovely wall panelling and a classic roll-top bathtub.
The upper level continues the theme of space and quality, hosting three generous bedrooms and a modern family shower room featuring a large walk-in shower and floating vanity unit. Bedrooms one and two are both well-proportioned rooms that enjoy the pleasant, open outlook over the front garden and field beyond. Bedroom three is overlooking the extensive rear garden, ensuring plenty of natural light and privacy.
This home has been the subject of a complete and thoughtful refurbishment, ensuring plenty carefree living. Key features include a full rewire, new plumbing, a new boiler, and complete replastering and redecoration throughout. Many of the property's original features have been preserved and enhanced, including the sanded and varnished wood floors and traditional cornicing. The roof has also been replaced in recent years, providing peace of mind.
Externally, the property boasts substantial and beautifully maintained grounds. To the front, a sizeable blonde stone chip driveway provides ample off-road parking, sided by a laid lawn garden bordered by mature shrubs. Secure, gated access via a traditional stone wall leads to the impressive rear garden. This substantial, private space features a patio area ideal for alfresco dining, opening onto masses of laid lawn, mature trees, and established hedging. A unique and intriguing stone structure in the garden, once a gardener’s cottage from the 1800s presents a fantastic opportunity for further development, potentially as a home office, studio, or outhouse, subject to the necessary consents.
EER band: D
Council Tax Band: F
If you have any questions or would like
to arrange a viewing, don't hesistate to
contact us today using the links below
E: bridgeofweir@corumproperty.co.uk
Situated within the picturesque Renfrewshire countryside, yet offering excellent commuter links, the conservation village of Kilbarchan provides an idyllic setting. For broader amenities, the nearby towns of Johnstone and Paisley offer extensive shopping and leisure facilities. Commuters are exceptionally well-served, with the M8 motorway network easily accessible for journeys to Glasgow, Edinburgh, and beyond, while regular bus services and nearby railway stations at Johnstone and Howwood provide excellent public transport options. Branscroft sits just a short walk from Kilbarchan Primary School, highly popular with young families.
Travel Directions
3 Branscroft, Kilbarchan, PA10 2LU
Sat Nav:
3 Branscroft, Kilbarchan, Renfrewshire, PA10 2LU
BW2744
For the full home report visit
corumproperty.co.uk* All measurements and distances are approximate. Floorplans are for illustration purposes and may not be to scale. Buildings and/or floors may not be geographically accurate.
Sat Nav:
3 Branscroft, Kilbarchan, Renfrewshire, PA10 2LU
BW2744
For the full home report visit
corumproperty.co.uk* All measurements and distances are approximate. Floorplans are for illustration purposes and may not be to scale. Buildings and/or floors may not be geographically accurate.















