4 | BEDROOMS
3 | BATHROOMS
3 | PUBLIC ROOMS
Extended modern detached family house situated within a popular Newton Mearns location.
Modern detached villa set within this popular Persimmon development offering a turnkey solution to the local marketplace. Thoughtfully extended and creatively redesigned which offers a vast amount of flowing space and has been designed very much with family life in mind.
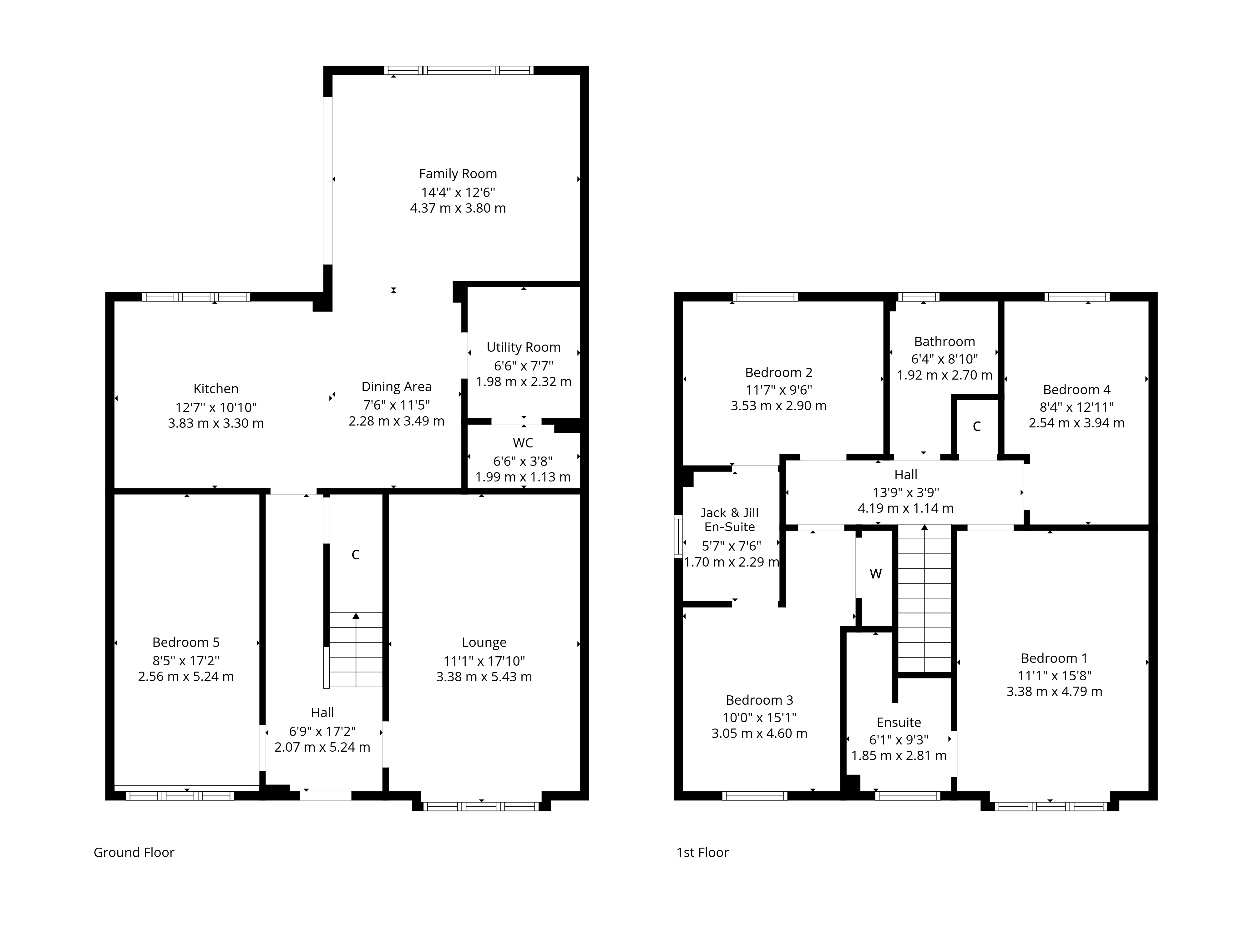
The ground floor accommodation in brief extends to traditional reception hallway, front facing lounge and garage conversion bedroom five which is currently utilised as sitting room/home office. Open plan family living space to the rear with recently fitted luxury kitchen offering a range of wall and base mounted units and integrated appliances, open plan dining and family room with bi-fold doors to rear gardens. Upstairs a bright and spacious landing area gives access to generous principal bedroom with fitted wardrobes and lovely en-suite shower room, two further spacious double bedrooms share Jack and Jill shower room, good fourth bedroom and modern main family bathroom. The specification includes a system of gas central heating, double glazing and overall, the subjects are well presented and decorated throughout.
Monoblock driveway to the front offering parking for multiple vehicles with pathway giving access to fully enclosed landscaped rear gardens with patio area and artificial lawn area offering excellent space for families and entertaining in the summer months.
The floor plan shall provide you with a detailed layout of this well laid out home, however we recommend viewing to appreciate the space, versatility, and convenient setting that's on offer.
EER Band B.
Newton Mearns is one of the most sought after suburbs within the south side of Glasgow. The property is superbly placed for a wide range of amenities and nationally recognised schooling. Within a short distance you can find excellent shopping at The Avenue, Mearns Cross, and an abundance of sports and recreational facilities including excellent golf courses, parks, and tennis clubs. The local train stations include Whitecraigs Station and Patterton Station, which is a short walk away.
Sat Nav:
30 Clement Drive, Newton Mearns, Glasgow, G77 6WH
NM4707
For the full home report visit
corumproperty.co.uk* All measurements and distances are approximate. Floorplans are for illustration purposes and may not be to scale. Buildings and/or floors may not be geographically accurate.
Sat Nav:
30 Clement Drive, Newton Mearns, Glasgow, G77 6WH
NM4707
For the full home report visit
corumproperty.co.uk* All measurements and distances are approximate. Floorplans are for illustration purposes and may not be to scale. Buildings and/or floors may not be geographically accurate.













