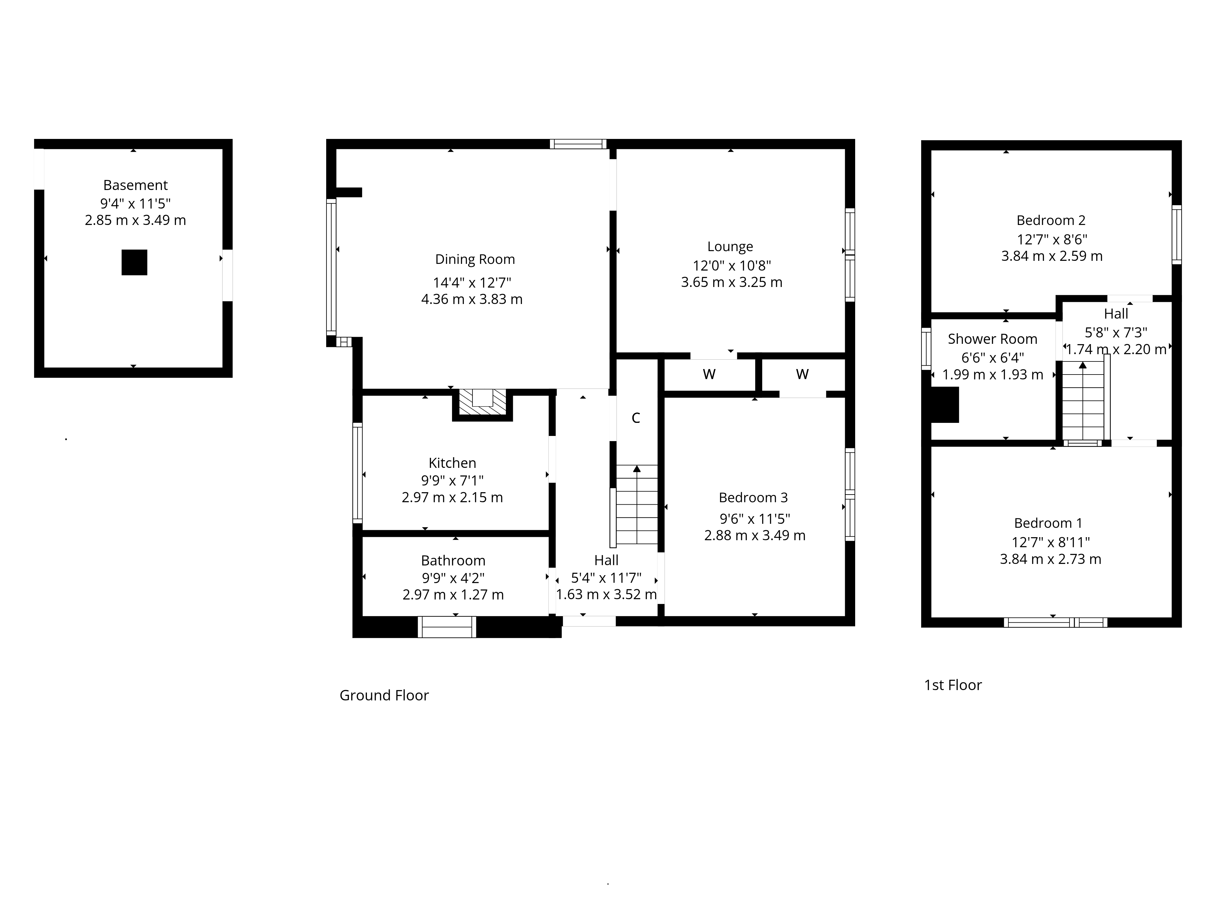
3 | BEDROOMS
2 | BATHROOMS
2 | PUBLIC ROOMS
Set within a quiet cul-de-sac and generous corner gardens, this charming semi-detached bungalow offers a wonderful blend of traditional character, modern comfort and everyday convenience.
Tucked away in a peaceful cul-de-sac, this traditional semi-detached bungalow offers a wonderful balance of privacy, space and convenience. Set within generous corner garden grounds, it is a home with charm and flexibility, ideal for a wide range of buyers.
Inside, the accommodation flows from a welcoming reception hallway to a bright formal lounge overlooking the front garden. A stylish dining room provides the perfect spot for entertaining, while the modern kitchen, fitted with an excellent range of wall and base units, makes everyday living easy. The principal bedroom is generously sized with useful storage adjacent, and the ground floor is completed by a contemporary family bathroom.
Upstairs, two further bedrooms offer great flexibility for family, guests or home working. In addition, there is a modern shower room. The home is beautifully presented throughout, with gas central heating and double glazing for comfort and efficiency.
Outside, the gardens are a real feature; mature, private and full of potential, offering scope for future extension or development (subject to planning).
ER band C
A haven for young growing families, offering some of the best schooling within the Glasgow district. Pre- primary and secondary schooling is all found nearby, notably Carolside Primary School, St Joseph’s Primary School, Williamwood High School and St Ninian’s High School. The district offers an abundance of sports and recreational facilities, excellent shopping and retail outlets. The suburb of Clarkston offers many independent establishments with cafes, delis and restaurants nearby. There are excellent transport links to the city centre via road and rail, from both Clarkston and Williamwood train stations.
Directions
From our office on Helena Place, Clarkston Toll, travel up Mearns Road, past the park, turning left onto Greenwood road then taking the first right onto Sundale, left onto Daleview Drive, and then left onto Daleview Grove where the property is situated on the left hand side from this approach.
Sat Nav:
2 Daleview Grove, Clarkston, Glasgow, East Renfrewshire, G76 7XS
CC0924
For the full home report visit
corumproperty.co.uk* All measurements and distances are approximate. Floorplans are for illustration purposes and may not be to scale. Buildings and/or floors may not be geographically accurate.
Sat Nav:
2 Daleview Grove, Clarkston, Glasgow, East Renfrewshire, G76 7XS
CC0924
For the full home report visit
corumproperty.co.uk* All measurements and distances are approximate. Floorplans are for illustration purposes and may not be to scale. Buildings and/or floors may not be geographically accurate.





















