4 | BEDROOMS
3 | BATHROOMS
3 | PUBLIC ROOMS
** SOLD AT CLOSING DATE ** A superb, detached family house occupying a prized location in this private cul-de-sac.
Number 55 Deaconsgrange Road is an exceptional, executive family home that delivers outstanding flexible internal floor space, set within landscaped enclosed private gardens and the property enjoys a private location within a cul-de-sac with wonderful open views to the front.
Being presented to the market in excellent condition throughout with notable improvements including upgraded gas central heating system with Worcester boiler, double glazed windows and doors, CCTV and security alarm system.
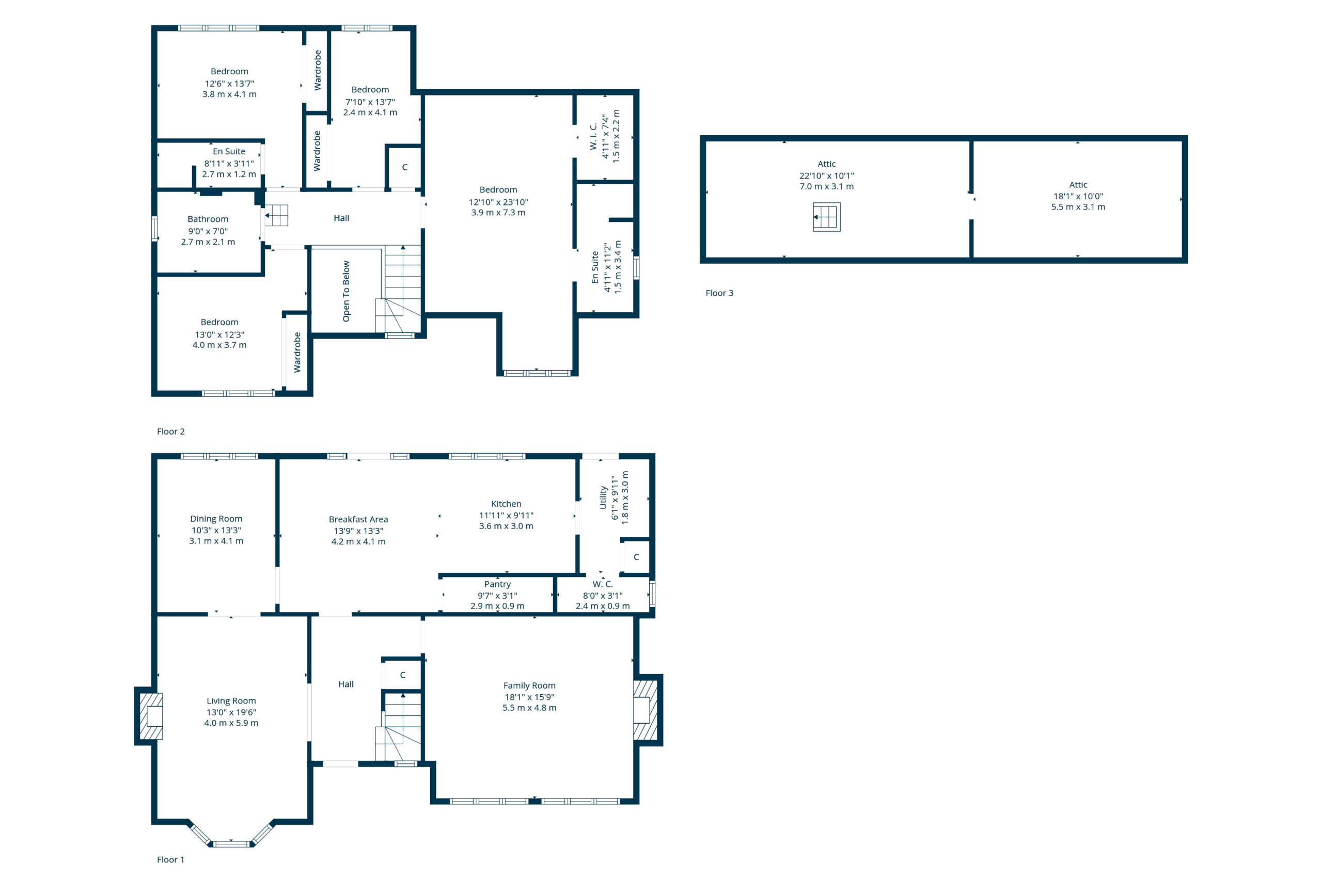
Canopied entrance leads into an impressive galleried reception hallway with feature flooring. French doors lead through to a bay windowed lounge with focal point fireplace with living flame fire. Further French doors access through to a spacious dining room, nicely linking to a larger style dining/family kitchen with full range of integrated appliances and French doors to gardens. The garage is converted to create additional family room. Fully fitted utility room off the kitchen with downstairs WC completes the ground floor accommodation. Galleried landing with storage gives access to a large impressive principal bedroom with walk in dressing room and full en-suite bathroom. Three further double bedrooms all with built in wardrobes. Second bedroom benefits from an en-suite shower room and there is a main family bathroom with bath and separate shower enclosure.
Externally the property is set within fantastic private level and easily maintained landscaped garden grounds with patio, lawned and decked area. Said gardens are enclosed, not overlooked, and the property enjoys arguably the best plot in the estate with wonderful outside space. Monoblock driveway to front providing ample vehicular parking and large lawn area.
The floor plan shall provide you with a detailed layout of this premium family home, however, we recommend viewing to appreciate the size and convenient location on offer.
EER Band C.
If you have any questions or would like
to arrange a viewing, don't hesistate to
contact us today using the links below
E: n.mearns@corumproperty.co.uk
The development is perfectly placed for and a variety of amenities which includes Greenlaw Village, offering Waitrose and other excellent shopping facilities just a short drive away. Mearns Cross Shopping Centre, Patterton Train Station and links to the motorway are also easily accessible. An abundance of sports and leisure facilities are incredibly close by, with the David Lloyd Sports Club, Deaconsbank Golf Course and Rouken Glen Park all within easy walking distance. Whitecraigs Golf Club, Giffnock and Whitecraigs Tennis Clubs are also nearby.
Sat Nav:
55 Deaconsgrange Road, Deaconsbank, Glasgow, G46 7UL
NM4641
For the full home report visit
corumproperty.co.uk* All measurements and distances are approximate. Floorplans are for illustration purposes and may not be to scale. Buildings and/or floors may not be geographically accurate.
Sat Nav:
55 Deaconsgrange Road, Deaconsbank, Glasgow, G46 7UL
NM4641
For the full home report visit
corumproperty.co.uk* All measurements and distances are approximate. Floorplans are for illustration purposes and may not be to scale. Buildings and/or floors may not be geographically accurate.













