3 | BEDROOMS
2 | BATHROOMS
2 | PUBLIC ROOMS
**CLOSING DATE FRIDAY 23RD JANUARY @ 12 NOON** This fantastic family home enjoys a highly popular location whilst nestled in a quiet and locally admired pocket of Clarkston.
**CLOSING DATE FRIDAY 23RD JANUARY @ 12 NOON**
This fantastic family home enjoys a highly popular location whilst nestled in a quiet and locally admired pocket of Clarkston. Being within great proximity to high achieving local schooling and excellent amenities. Meticulously extended and upgraded to create a breath taking home that has been designed very much with family life in mind.
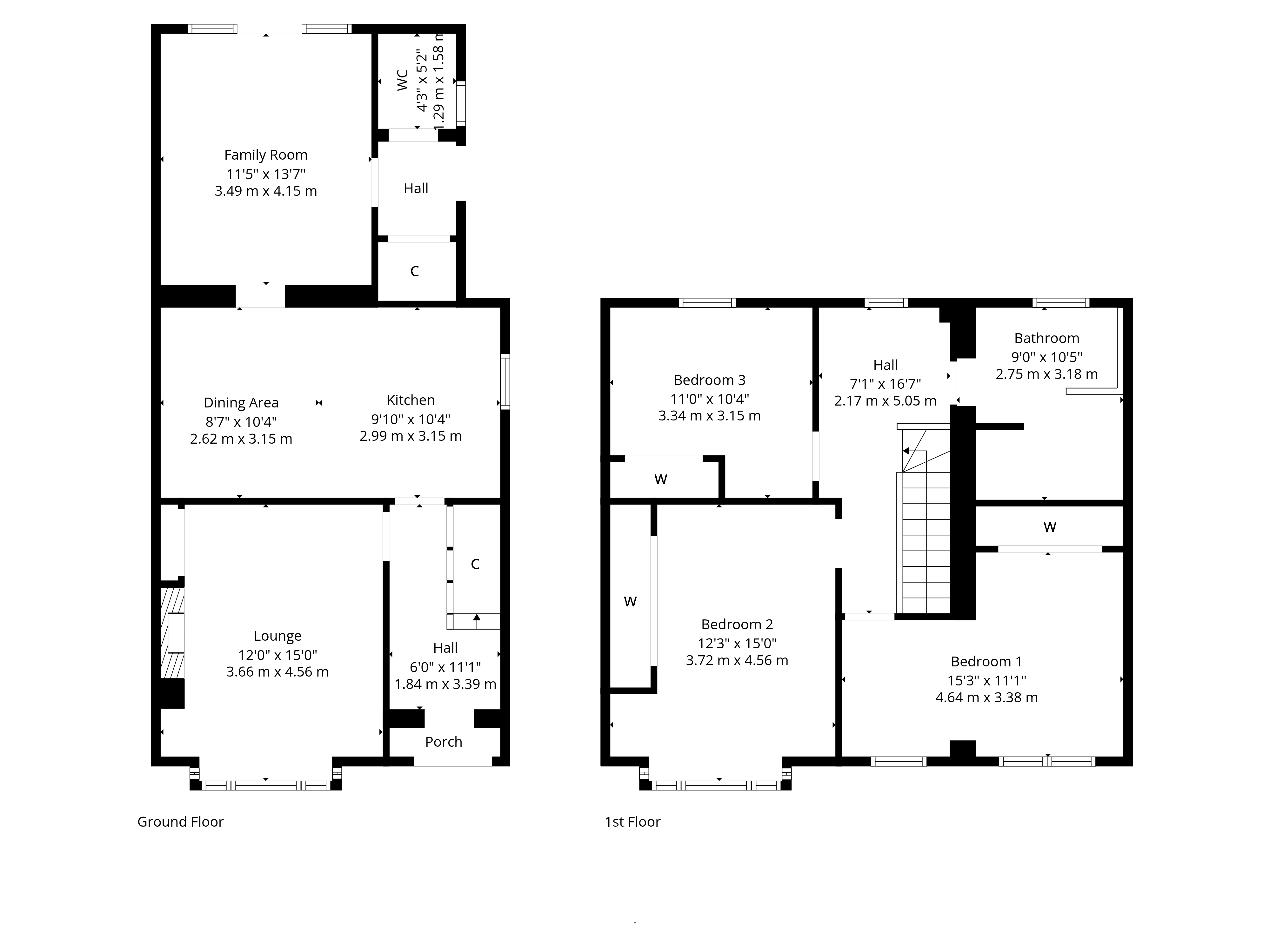
Successfully modernised, extended and reconfigured to create this versatile and understated home. Internally, it is neutrally decorated and finished with a mixture of quality carpeting, laminate and tiled flooring. The well-proportioned accommodation in brief extends to entrance hallway, formal lounge, open plan kitchen/dining, family room and storage with cloakroom/W.C. The upper level has large light filled landing which could be utilised as study area. Three well proportioned bedrooms with storage and luxury family bathroom.
Notable features include double glazed windows with patio doors to gardens, modern gas central heating system and the house is presented in modern tones internally with contemporary style sanitary ware.
Externally the front offers expansive driveway space with car port and the private rear gardens have been landscaped to offer patio areas and excellent space for outside enjoyment and young families.
The floorplan shall provide you with a detailed layout of this great family home, however, we recommend viewing to appreciate the size and convenient location on offer.
EER Band D
A haven for young growing families, the district offers an abundance of sports and recreational facilities, excellent shopping and retail outlets and of course some of the best schooling within the East Renfrewshire district. The shopping suburb of Clarkston offers independent retailers with cafes, delis, restaurants and there are excellent transport provisions provided for the city centre via road and rail, from Clarkston or Williamwood train stations.
Sat Nav:
2 Drumby Drive, Glasgow, East Renfrewshire, G76 7HL
CC0937
For the full home report visit
corumproperty.co.uk* All measurements and distances are approximate. Floorplans are for illustration purposes and may not be to scale. Buildings and/or floors may not be geographically accurate.
Sat Nav:
2 Drumby Drive, Glasgow, East Renfrewshire, G76 7HL
CC0937
For the full home report visit
corumproperty.co.uk* All measurements and distances are approximate. Floorplans are for illustration purposes and may not be to scale. Buildings and/or floors may not be geographically accurate.




















