2 | BEDROOMS
2 | BATHROOMS
1 | PUBLIC ROOM
A beautiful, Dickie Homes built, two bedroom apartment in one of Clarkston's most sought after locations.
Property Description
Fairfield Drive is a private and select development by Dickie Homes that enjoys a quiet situation and yet is only minutes from all of Clarkston's main amenities and facilities.
This is a quality and luxury apartment which has been upgraded and refurbished to an exacting standard. Further benefiting from manicured garden grounds, private garaging and residents’ parking, this breathtaking apartment would suit a broad range of potential buyers.
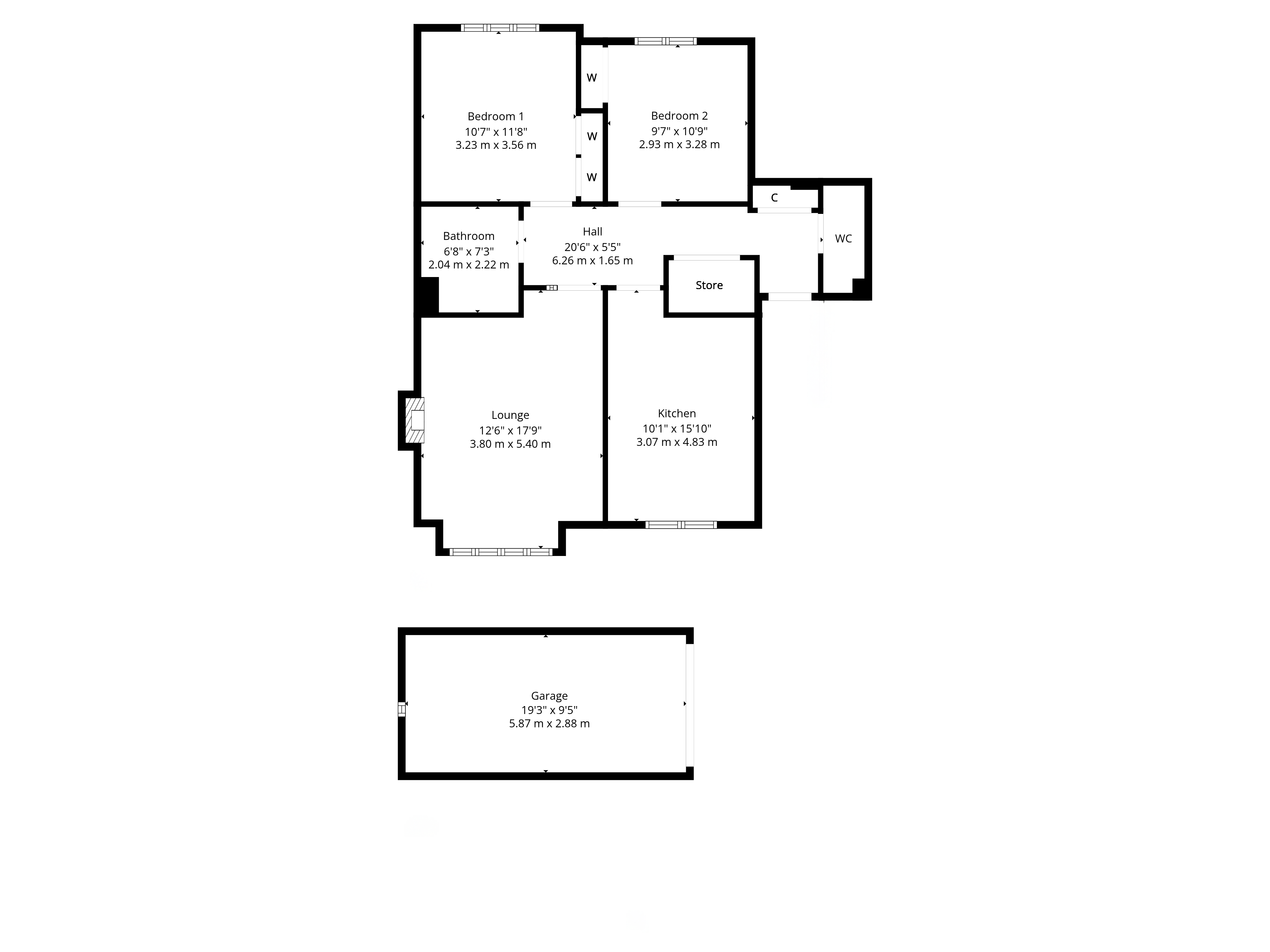
Entered via main door, the accommodation comprises of traditional reception hallway with good storage adjacent, fantastic south facing bright formal lounge, dining kitchen with a range of wall and base mounted units. Principal bedroom with fitted wardrobes and second well-proportioned double bedroom. The shower room and separate cloakroom/W.C have been recently refitted.
Externally the property is set within well maintained residents garden grounds with large private garage, fitted with lights. It is worthy of note that the development is immaculately factored by Hacking & Paterson.
The floor plan shall provide you with a detailed layout of this fantastic apartment, however, we recommend viewing to appreciate the layout, finishing and convenient location on offer.
ER Band E
A haven for young growing families, the district offers an abundance of sports and recreational facilities, excellent shopping and retail outlets and of course some of the best schooling within the East Renfrewshire district. The shopping suburb of Clarkston offers independent retailers with cafes, delis, restaurants and there are excellent transport provisions provided for the city centre via road and rail, from Clarkston or Williamwood train stations.
Directions
G76 7YH
Sat Nav:
5 Fairfield Drive, Clarkston, Glasgow, East Renfrewshire, G76 7YH
CC0925
For the full home report visit
corumproperty.co.uk* All measurements and distances are approximate. Floorplans are for illustration purposes and may not be to scale. Buildings and/or floors may not be geographically accurate.


Sat Nav:
5 Fairfield Drive, Clarkston, Glasgow, East Renfrewshire, G76 7YH
CC0925
For the full home report visit
corumproperty.co.uk* All measurements and distances are approximate. Floorplans are for illustration purposes and may not be to scale. Buildings and/or floors may not be geographically accurate.