2 | BEDROOMS
2 | BATHROOMS
1 | PUBLIC ROOM
A superb, two bedroom, B-listed garden apartment, with off-street parking.
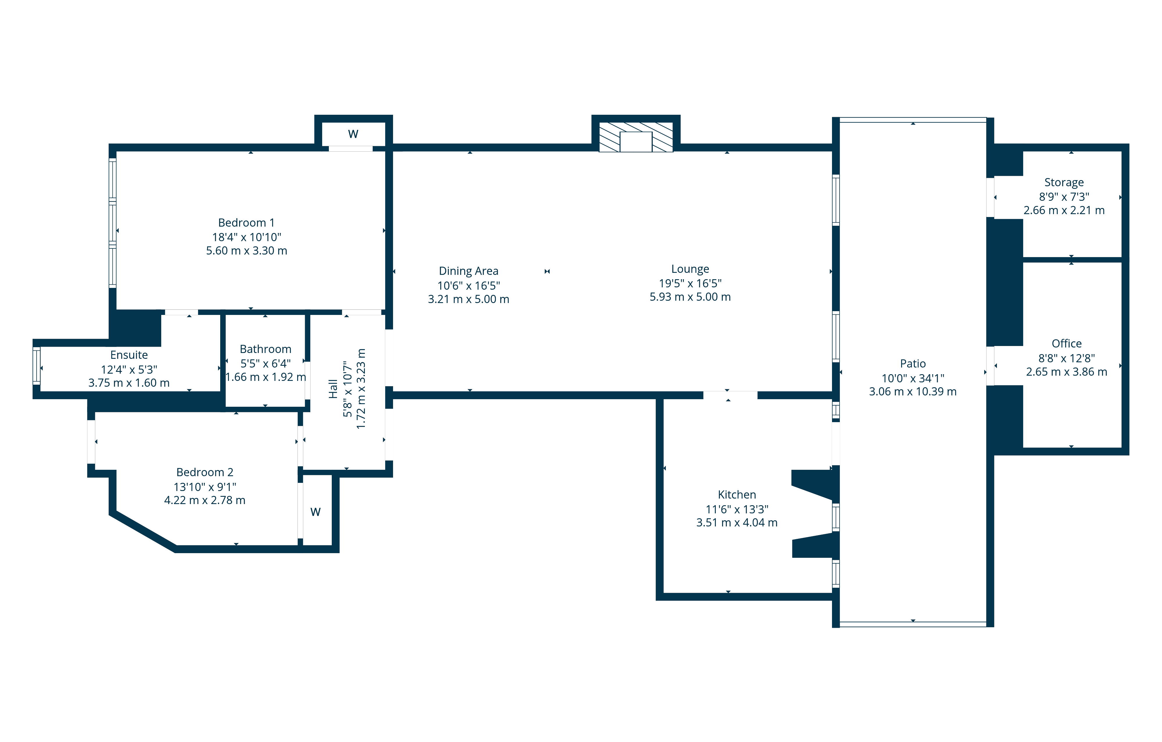
A superb and spacious two-bedroom garden apartment forming part of a Category B listed blonde sandstone townhouse, built circa 1857, and located within the highly sought-after Park District. This beautifully presented property enjoys an enviable position with access to residents’ pleasure gardens, and the rare benefit of off-street parking to the rear. The building itself has been lovingly maintained, featuring a recently redecorated and elegant communal hallway, with stair access leading down to Flat 1 at garden level. The accommodation comprises a welcoming reception hallway leading to a superb front-facing drawing room with a feature fireplace and refurbished original hardwood flooring. The well-appointed kitchen, accessed directly from the sitting room, offers ample storage and workspace. One of the most appealing aspects of this property is the exclusive use of two rooms beneath street level, both of which have been fully renovated to create an ideal home office and excellent additional storage. Both the lounge and kitchen retain their original operational window shutters, highlighting the property’s period character and charm.
To the rear of the apartment are two double bedrooms, with the principal bedroom benefiting from a recently upgraded en-suite shower room. The second bedroom is served by a stylish family bathroom with a contemporary three-piece suite. Externally, there is a communal courtyard to the rear, while residents also enjoy access to the beautifully maintained private pleasure gardens to the front of Clairmont Gardens.
Further benefits include gas central heating, gated access to the rear, and private off-street parking for the building on a first-come, first-served basis. On-street permit parking is also available via Glasgow City Council.
EER Band: D
If you have any questions or would like
to arrange a viewing, don't hesistate to
contact us today using the links below
E: westendenq@corumproperty.co.uk
Arguably the most sought after and desirable location in Glasgow, is the Park.
The Park District area is bordered by the City Centre, Kelvingrove, Kelvingrove Park and Woodlands. Park Circus was built between 1855 and 1863. Many of the area’s large townhouses which were converted to offices during the latter half of the 20th century are being returned to residential use. It was declared a Conservation Area in 1970.
One of the main attributes of the Park area is the accessibility of both the West End’s and City Centre’s wide range of amenities. Park offers a leafy tranquil surrounding yet is only minutes from access to the M8 at Charing Cross.
There is excellent local and private schooling in the area and an underground station at Kelvinbridge. It is also an ideal location for those looking to study at Glasgow University.
Sat Nav:
Flat 1 12 Clairmont Gardens, Park, G3 7LW
WE5461
For the full home report visit
corumproperty.co.uk* All measurements and distances are approximate. Floorplans are for illustration purposes and may not be to scale. Buildings and/or floors may not be geographically accurate.
Sat Nav:
Flat 1 12 Clairmont Gardens, Park, G3 7LW
WE5461
For the full home report visit
corumproperty.co.uk* All measurements and distances are approximate. Floorplans are for illustration purposes and may not be to scale. Buildings and/or floors may not be geographically accurate.















