4 | BEDROOMS
2 | BATHROOMS
2 | PUBLIC ROOMS
An impressive, detached house set within a highly popular residential development.
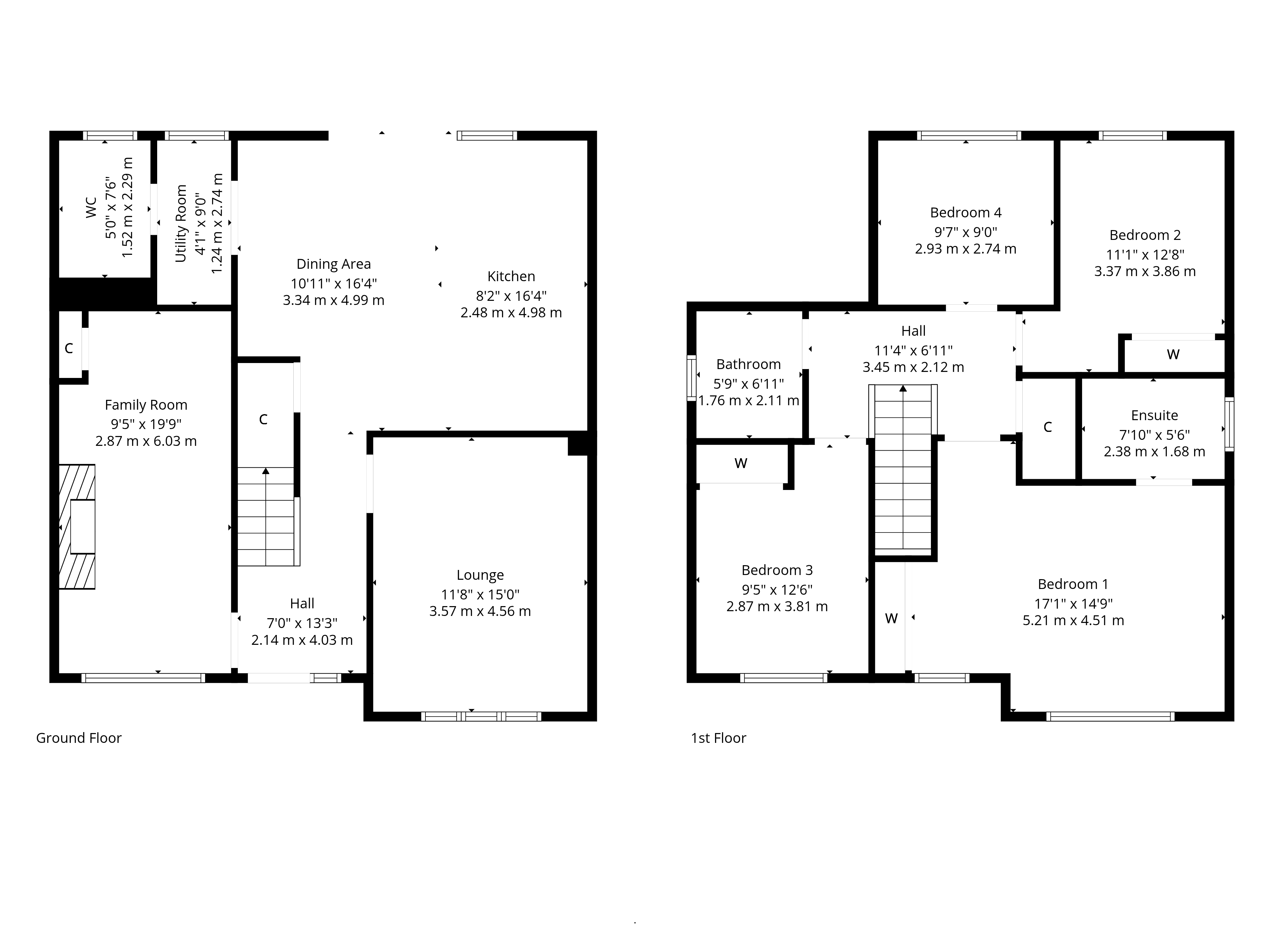
This impressive family home enjoys a fantastic position within this highly sought after and exclusive development of only 24 properties built by Avant Homes circa 2020. The property has been enhanced and upgraded by the present owners, is set within private landscaped rear gardens and presents a wonderful opportunity to the local marketplace. Exceptionally well finished this modern detached villa is conveniently located off Aurs Road on the southern periphery of Barrhead in East Renfrewshire. Extending to circa 1500 square feet this expansive home is designed over a two storey layout and provides spacious family accommodation.
The ground floor accommodation extends to spacious/traditional reception hallway, generous formal front facing lounge, fantastic open plan dining kitchen with a range of wall and base mounted units, and access via bifold doors to landscaped gardens at rear. Useful laundry/utility room and downstairs WC. The ground floor is completed by a garage conversion which now provides a luxurious family room with feature media wall with TV and feature fireplace. Upstairs a bright and spacious landing area gives access to generous principal bedroom with fitted wardrobes and contemporary en-suite shower room, two further good double bedrooms with fitted wardrobes, good fourth bedroom and contemporary main family bathroom. Additional storage provided by way of attic space. Luxurious specification includes a system of gas central heating, double glazing, stylish/co-ordinated tiling, bespoke internal doors with matching ironmongery, and the subjects have been beautifully presented and designed throughout.
Externally the property is set within private landscaped rear gardens with composite deck and astroturf area. Double border fencing. External lighting. Monoblock driveway to front providing ample vehicular parking.
EER Band B.
The property sits within the catchment to highly regarded East Renfrewshire schooling with St Lukes and Barrhead High School within short walking distances. Barrhead offers an abundance of local amenities including high street shopping, swimming pool, gyms and numerous supermarkets. Dams to Darnley country park and local reservoir walks are all close by offering relaxation and outdoor pursuits. Regular bus services to Paisley and Glasgow are accessible from a bus stop nearby. Access is provided to nearby Glasgow Airport which is a short drive away in addition to commuter links via road and rail to city centre and beyond. Newton Mearns is a mere five-minute drive over the Barrhead Dams Road (reopening 2026), providing access to the M77 motorway as well as Waitrose, Marks & Spencer and excellent further amenities. Balgray Train Station, opening 2026, will provide additional direct access to Glasgow Central Station.
Sat Nav:
24 Lyon Crescent, Barrhead, Glasgow, G78 2FG
NM4768
For the full home report visit
corumproperty.co.uk* All measurements and distances are approximate. Floorplans are for illustration purposes and may not be to scale. Buildings and/or floors may not be geographically accurate.
Sat Nav:
24 Lyon Crescent, Barrhead, Glasgow, G78 2FG
NM4768
For the full home report visit
corumproperty.co.uk* All measurements and distances are approximate. Floorplans are for illustration purposes and may not be to scale. Buildings and/or floors may not be geographically accurate.













