3 | BEDROOMS
2 | BATHROOMS
1 | PUBLIC ROOM
Red sandstone mid terrace villa, offering generous and well laid out accommodation over two main levels with a modern specification and landscaped gardens.
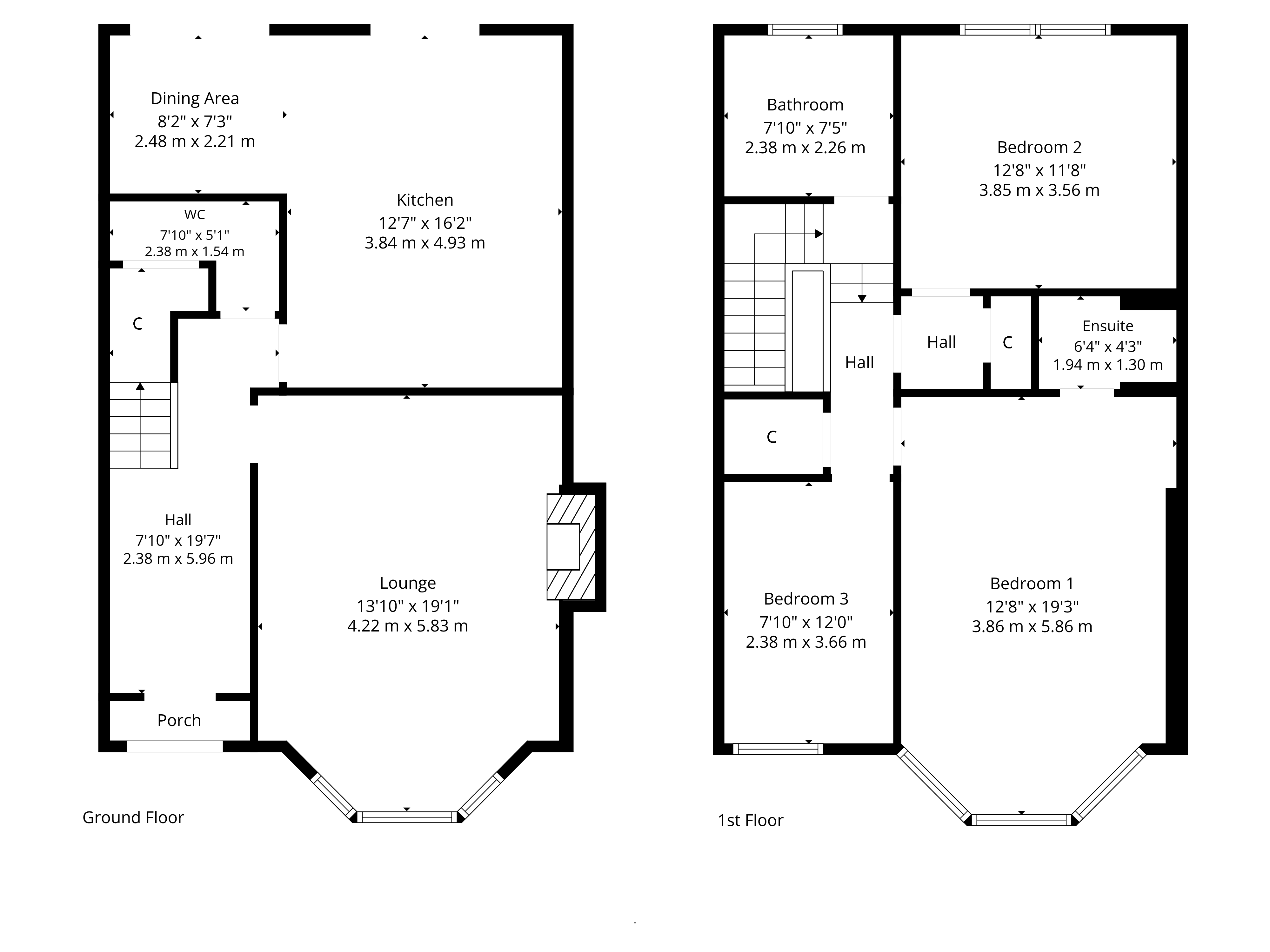
Having been thoughtfully reconfigured and modernised, the property is presented to the market in fantastic order and is likely to suit a range of buyers looking for a turn-key move. The accommodation extends to; vestibule via storm doors, reception hallway with W.C off, bay windowed lounge with focal fireplace, whilst to the rear, the kitchen and dining room have now been opened up to create a lovely bright space with views over the garden. The kitchen boasts quality worktops, island, integrated appliances and an abundance of storage, with the dining area providing French doors to garden. The original staircase leads to first floor level revealing three flexible bedrooms, the principal with lovely bay window and en-suite shower room and there is a well appointed family bathroom with modern sanitaryware and contemporary tiling. There is also a sizeable attic space which has been floored and lined, accessed by way of a drop down ladder.
The specification includes gas central heating, double glazed windows, and the property offers impressive dimensions and fresh decor. Externally the property sits in nice gardens which are of particular note to the rear, being fully enclosed and landscaped with a low maintenance approach in mind. Access available via lane to the rear and the home benefits from an electric charging point for cars.
EER Band - C
44 Muirend Road is within one mile of the Nuffield Giffnock Gym, Newlands Tennis Club and Newlands Park where the popular Dandelion Café is found. Amenities are available at the nearby Sainsburys store in Muirend or at the Silverburn shopping centre near Pollok. Reputable state schooling is available locally whilst there are a number of pick up points in the Southside for Glasgow’s independent schools. Muirend train station is approximately 500 yards from the front door served by the Neilston line into Glasgow central station.
Sat Nav:
44 Muirend Road, Muirend, Glasgow City, G44 3HG
SS5283
For the full home report visit
corumproperty.co.uk* All measurements and distances are approximate. Floorplans are for illustration purposes and may not be to scale. Buildings and/or floors may not be geographically accurate.
Sat Nav:
44 Muirend Road, Muirend, Glasgow City, G44 3HG
SS5283
For the full home report visit
corumproperty.co.uk* All measurements and distances are approximate. Floorplans are for illustration purposes and may not be to scale. Buildings and/or floors may not be geographically accurate.










