3 | BEDROOMS
1 | BATHROOM
2 | PUBLIC ROOMS
** SOLD AT CLOSING DATE ** An end terraced house set within private garden grounds, enjoying a quiet yet convenient location.
This traditional turreted end terraced villa enjoys a quiet yet convenient location within the sought after village of Eaglesham. Set within private garden grounds, the subjects could potentially suit a variety of purchasers. Distinguished by its whitewashed exterior with upgraded roof system, the property benefits from full modernisation program throughout offering a perfect example for today’s family living.
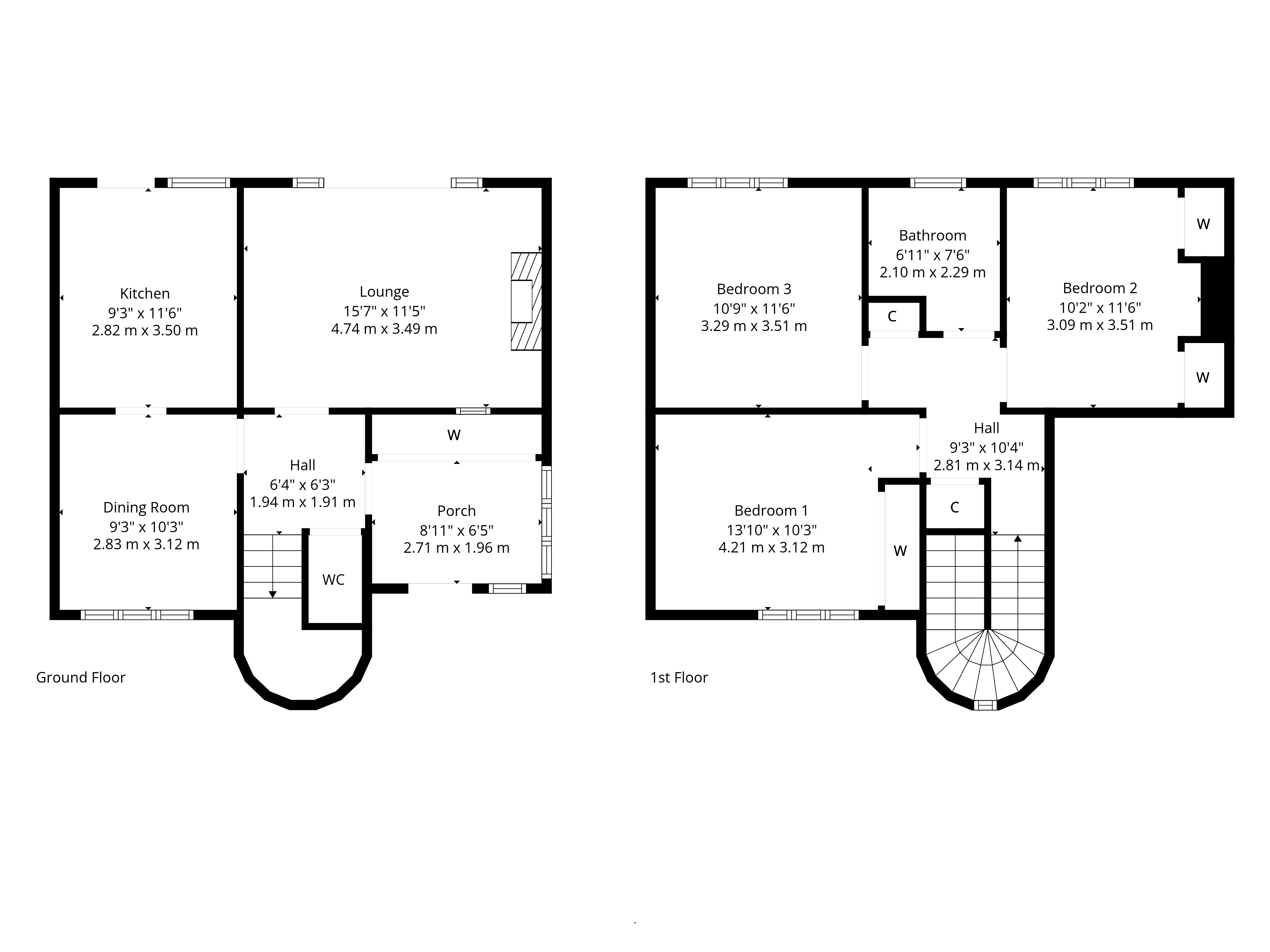
On the ground level the impressive family home features a large welcoming porch with storage, entrance hallway, bright and airy lounge with log burner and patio doors to gardens, dining room leading to stylish and sociable kitchen and dining area with doors leading into the garden. The upper-level access is gained by way of a one and a half turn stairwell with feature full height picture window. The upper landing gives access to three well-proportioned double sized bedrooms, with storage, fully floored and lined attic and family bathroom suite.
Externally the gardens are beautiful, private and well enclosed with patio areas and expansive lawn providing an ideal space for outside enjoyment.
The floor plan shall provide you with a detailed layout of this versatile and well laid out home, however, we recommend viewing to appreciate the space, condition and convenient setting that is on offer.
EER Band C.
The conservation village of Eaglesham is a fine example of late 18th Century planning and architecture, and the village was designated Scotland's first outstanding conservation area in 1960. The village provides a range of local shops, up market hotels, bars, restaurants, popular village primary school and is also within the catchment radius for nationally recognised schooling. Some of Scotland's finest independent schools are also easily accessible on the south side of Glasgow. The surrounding countryside offers quiet country lanes, fishing, and a number of highly regarded golf courses. There are regular bus services provided to the city centre and excellent motorway networks providing swift access to Glasgow and Ayrshire. Busby Station, Clarkston Station and Hairmyres Station are the local train stations. Both Glasgow and Prestwick airports are also within easy reach.
Sat Nav:
47 Park Crescent, Eaglesham, Glasgow, G76 0JD
NM4724
For the full home report visit
corumproperty.co.uk* All measurements and distances are approximate. Floorplans are for illustration purposes and may not be to scale. Buildings and/or floors may not be geographically accurate.
Sat Nav:
47 Park Crescent, Eaglesham, Glasgow, G76 0JD
NM4724
For the full home report visit
corumproperty.co.uk* All measurements and distances are approximate. Floorplans are for illustration purposes and may not be to scale. Buildings and/or floors may not be geographically accurate.













