4 | BEDROOMS
3 | BATHROOMS
2 | PUBLIC ROOMS
A fantastic three storey, six apartment townhouse, located in the highly sought after Jordanhill area, with the bonus of being within List 1 catchment for Jordanhill School.
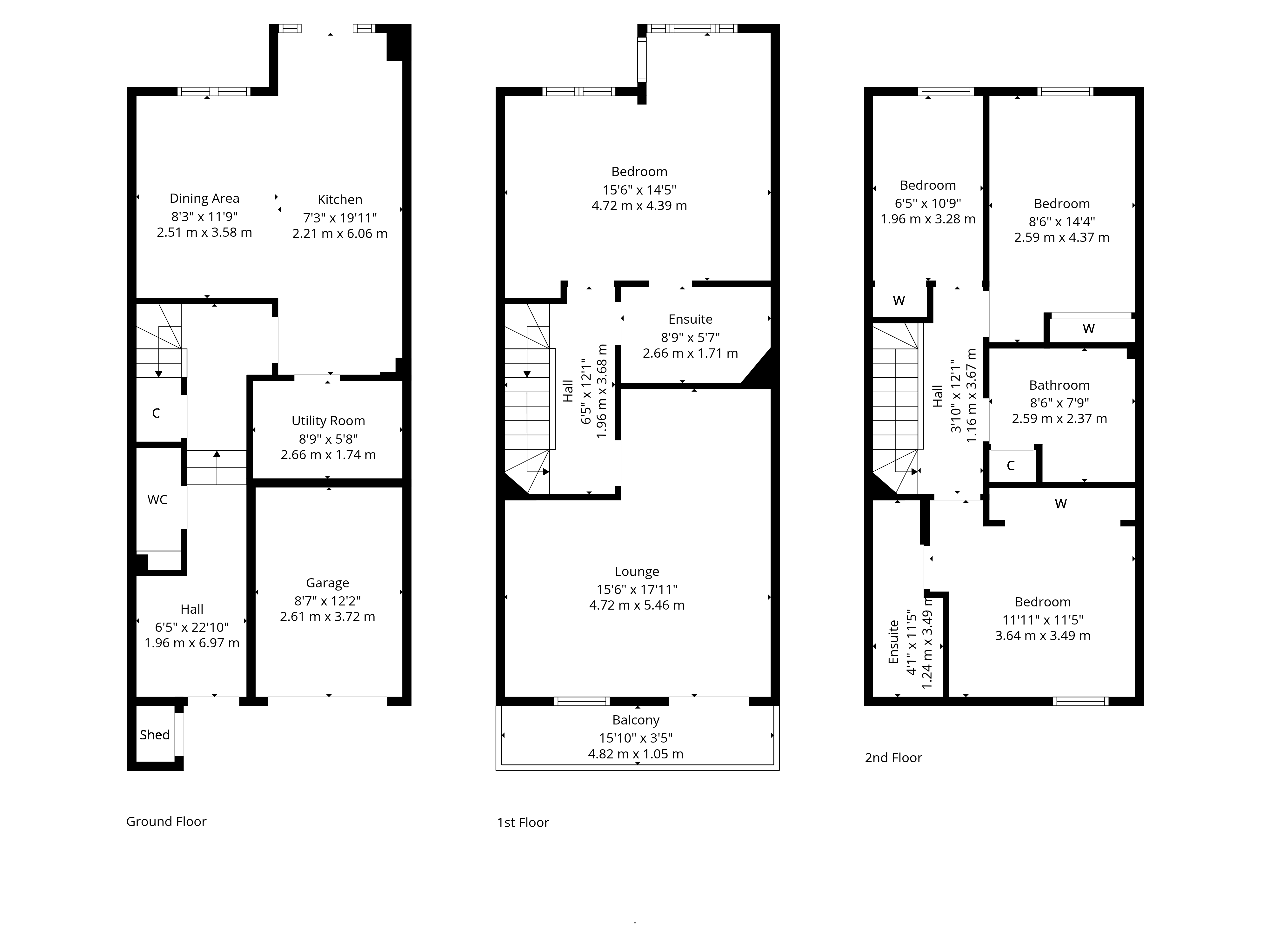
7 Skaterigg Gardens is a superb four-bedroom, modern terraced townhouse, situated in the heart of Jordanhill, with private driveway, garage and beautifully presented garden grounds. Forming part of the Burlington Gate development just off Woodend Drive, Skaterigg Gardens also has wonderful communal grounds and access to a children’s play area.
Internally, the accommodation has been meticulously upgraded and cleverly reconfigured by the current proprietors, and comprises of; welcoming reception hall with WC and under stair storage off, and a fantastic open plan dining kitchen to the rear with a range of base and wall mounted units, breakfasting bar, ample space for dining and providing direct access to the immaculate rear enclosed garden. The ground floor level is complete with a sizable utility off the kitchen.
On the first floor, there is a bright and spacious lounge to the front with private balcony and a double bedroom to the rear, currently set up as an additional living room, and further benefits from an ensuite shower room with secondary access off the landing. The top floor has three further bedrooms, all of which benefit from fitted wardrobes, with the principal also having an ensuite shower room. Finally, there is a well-appointed family bathroom on this level, which completes the accommodation on offer.
In addition, the property benefits from excellent storage with the integrated garage, gas central heating, double glazing, private front and back gardens and fantastic communal grounds. Also, as previously mentioned, the house is in the List 1 catchment for Jordanhill School.
EER Band: C
If you have any questions or would like
to arrange a viewing, don't hesistate to
contact us today using the links below
E: westendenq@corumproperty.co.uk
Jordanhill is an extremely popular West End suburb, with excellent local primary and secondary education at Jordanhill School. There are excellent sporting facilities, including Woodend Bowling & Tennis Club, where Corum are proud sponsors, and Hillhead Jordanhill Rugby Club, based at Hughenden. The area is within close proximity to Scotstoun Leisure Centre and show ground, home to the Glasgow Warriors. Jordanhill is adjacent to Victoria Park, one of the largest green spaces in Glasgow and the area also benefits from local pubs and restaurants, including The Three Craws and Little Soho.
The property is well situated for access to good public transport links, including Jordanhill Railway Station, Anniesland Railway Station and a number of bus routes. There is also easy access to Glasgow’s motorway network, via the Clyde Tunnel and Clydeside Expressway.
Sat Nav:
7 Skaterigg Gardens, Jordanhill, G13 1ST
WE5476
For the full home report visit
corumproperty.co.uk* All measurements and distances are approximate. Floorplans are for illustration purposes and may not be to scale. Buildings and/or floors may not be geographically accurate.
Sat Nav:
7 Skaterigg Gardens, Jordanhill, G13 1ST
WE5476
For the full home report visit
corumproperty.co.uk* All measurements and distances are approximate. Floorplans are for illustration purposes and may not be to scale. Buildings and/or floors may not be geographically accurate.



















