4 | BEDROOMS
3 | BATHROOMS
4 | PUBLIC ROOMS
Substantial, red sandstone, eight apartment, 1930s detached bungalow, retaining a wealth of original character and occupying a magnificent corner plot directly opposite the fairways and woodland of The Glasgow Golf Club’s Killermont course.
Property Description
Enjoying an exceptional position within one of Bearsden’s most prestigious residential pockets, this substantial red sandstone bungalow occupies a magnificent corner plot on Woodvale Avenue, directly opposite the fairways and woodland of The Glasgow Golf Club’s Killermont course. Killermont remains one of the town’s most established and desirable districts and Woodvale Avenue is particularly admired for its leafy outlooks, privacy and proximity to local amenities.
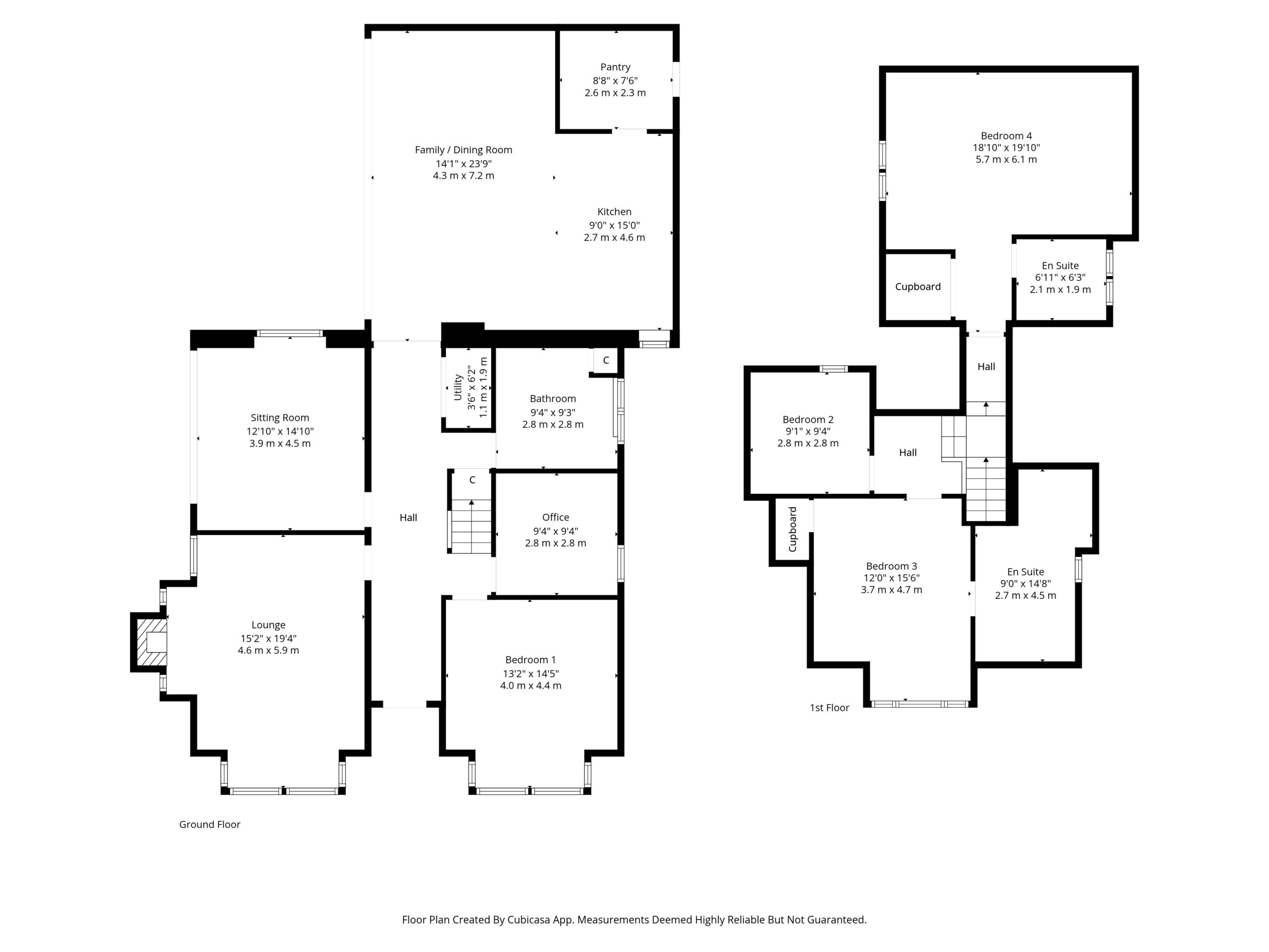
Dating from the 1930s and built by John Lawrence, the property is one of the larger bungalow styles of its era and retains a wealth of original character, including beautiful timber floors and wood-panelled detailing, most notably within the impressive reception hallway. Over time, the home has been thoughtfully and professionally extended, resulting in a highly flexible eight-apartment layout that is ideally suited to modern family living.
The accommodation begins with an attractive arched entrance, leading into a vestibule, and onward to the stunning wood-panelled reception hall. To the front, there is a bright bay-windowed lounge, featuring a classic box bay window to the front, small stained glass windows and a large picture window on the side wall, aiding the abundance of natural light. Also positioned to the front is a further bay-windowed reception room, currently used as a bedroom but equally well suited as a formal dining room.
The original footprint of the house continues to offer excellent versatility, with a large additional family room, which is incredibly light and bright on account of the dual aspect and floor to ceiling glazing, with large sliding doors opening to a large deck and the garden. There is a useful home office, study or additional bedroom and a beautifully finished ground-floor bathroom, with stylish contemporary tiling.
A standout feature of the home is the substantial modern extension to the rear, which creates a superb open-plan family hub. This impressive space incorporates a contemporary kitchen, with central island and integrated appliances, alongside generous dining and seating areas. Full-width folding doors open directly onto a timber deck and the landscaped gardens, creating a seamless connection between indoor and outdoor living. Aiding practicality, there is a useful pantry off the main kitchen and a utility room, accessed from the main hall.
The upper level provides outstanding bedroom accommodation. The principal suite enjoys elevated views across the golf course and includes a four-piece en-suite bathroom, with attractive tiling and twin Velux windows, along with a dedicated dressing room, with fitted storage. A second generously proportioned double bedroom, formed within the extension, also benefits from fitted wardrobes and a modern en-suite shower room. A further bedroom completes the upper floor, while extensive eaves storage and integrated cupboards are found throughout the property.
Externally, the home sits within beautifully landscaped gardens that provide a high degree of privacy, with manicured lawns, well-stocked flower beds and screening walls and fencing along the boundaries. A large detached double garage, of approximately 365 sq. ft. offers excellent storage and practicality, while the corner plot allows for two separate driveways, providing generous off-street parking. There is also a car charging point.
The property is further enhanced by gas central heating, double glazing and a four-kilowatt solar panel system, contributing to reduced energy costs and the potential for additional income.
All told, this is a remarkable family home of character and scale, combining period charm with modern living spaces, set within one of Bearsden’s most coveted addresses and enjoying uninterrupted views across one of the area’s finest golf courses.
EER Band - D
If you have any questions or would like
to arrange a viewing, don't hesistate to
contact us today using the links below
E: bearsdenenq@corumproperty.co.uk
The suburb of Bearsden is one of Glasgow’s most desired districts in which to reside. There are numerous highly acclaimed educational facilities at both Primary and Secondary levels and leisure facilities are plentiful with a choice of private and state gyms and clubs in abundance. Locally, there is an excellent selection of shops and services at Bearsden Cross along with restaurants, cafes and bars. There are excellent bus links nearby and train stations can be found at Hillfoot, Westerton and Bearsden providing regular services into Glasgow’s West End and City Centre, including a service to Edinburgh.
Glasgow Airport can be reached within twenty-five minutes off peak and, to the north of Bearsden is the world renowned Loch Lomond and The Trossachs National Park.
Directions
Sat Nav - 33 Woodvale Avenue, Bearsden, G61 2NY
Sat Nav:
33 Woodvale Avenue, Bearsden, East Dunbartonshire, G61 2NY
BD4033
For the full home report visit
corumproperty.co.uk* All measurements and distances are approximate. Floorplans are for illustration purposes and may not be to scale. Buildings and/or floors may not be geographically accurate.
Sat Nav:
33 Woodvale Avenue, Bearsden, East Dunbartonshire, G61 2NY
BD4033
For the full home report visit
corumproperty.co.uk* All measurements and distances are approximate. Floorplans are for illustration purposes and may not be to scale. Buildings and/or floors may not be geographically accurate.





