0/1, 19 Darnley Gardens
Offers Over £325,000
- 2
- 1
- 1
- 1044 sq. ft.
This stunning home is found in an admired Southside address and is presented to market in turnkey condition.
Occupying an elevated ground floor position in an attractive stone terrace, this magnificent home is meticulously presented to market. Considerable time and effort has been spent upgrading the property to an exacting standard combining a sympathetic blend of traditional features and modern fittings. Early internal inspection is essential.
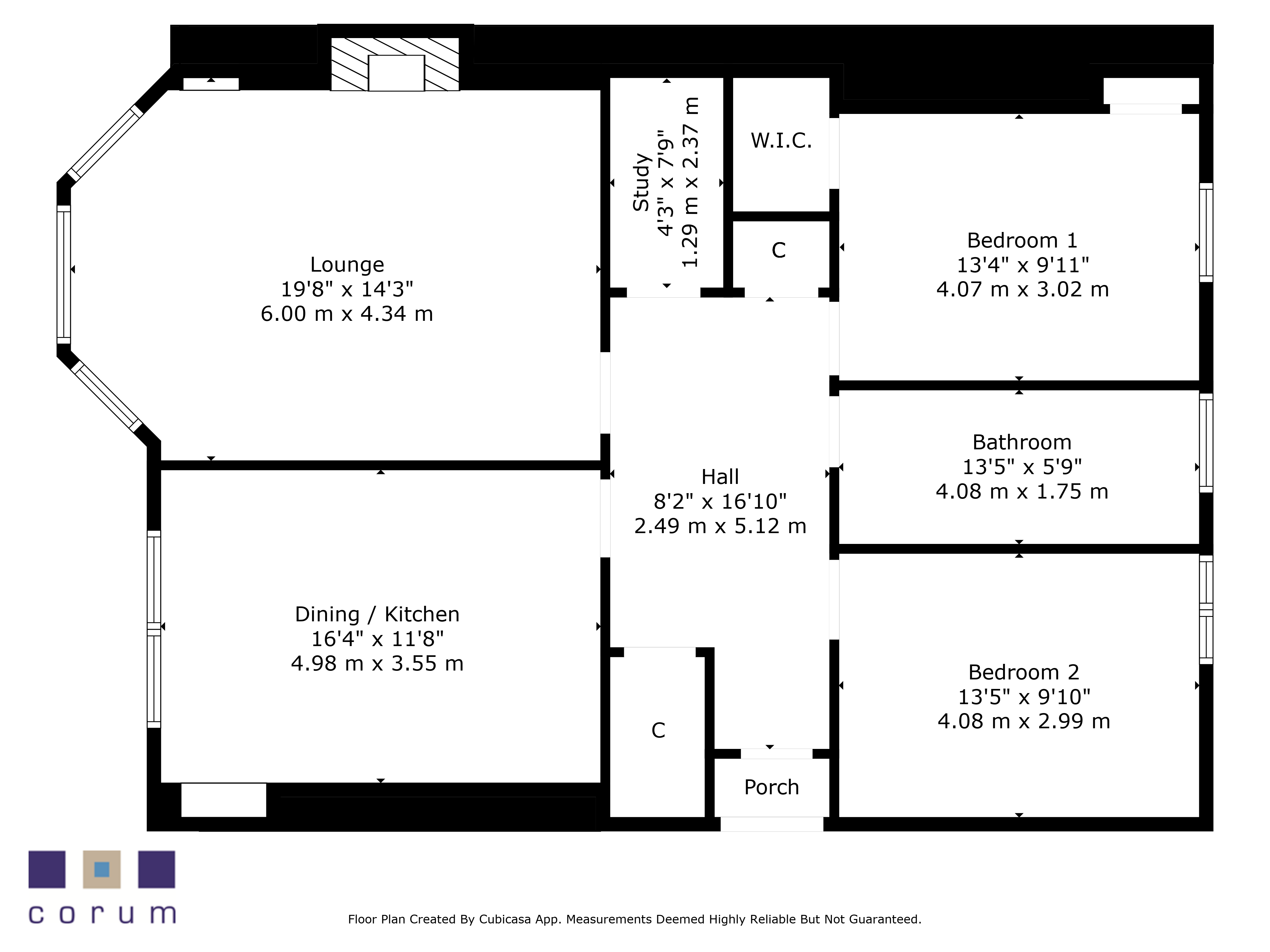
The accommodation in brief; vestibule via storm doors, broad reception hallway, storage/utility cupboard and a cleverly fitted internal home office with wall mounted desk. To the front of the property is a bay windowed lounge with decorative fireplace and a fully fitted dining kitchen including Minerva worktops, Oak hardwood shelving and integrated items. To the rear of the property are two generous double bedrooms, the principal room with its own walk-in wardrobe. The four piece bathroom suite is very sleek including a freestanding bath, mains powered shower enclosure, metro wall tiles and hexagonal mosaic floor tiles.
The property has Nest controlled gas central heating (boiler serviced Feb 2025), timber framed double glazed windows with fitted wooden shutters, bespoke décor and engineered Oak flooring except in the bathroom and hall cupboard. Our client has sole use of the garden in front of the property and the cellar space underneath the property.
A number of period style features are in situ such as detailed ceiling plasterwork, ceiling roses, moulded woodwork and Victorian door furniture/handles. Our client has landscaped the front garden with quartz gravel stones (fully lined) and border privet hedges whilst a shared garden to the rear of the terrace provides covered bin storage.
EER Band - C
Local Area
19 Darnley Gardens is on the doorstep of the coffee houses, restaurants, gastropubs and bakeries of Pollokshields and neighboring Strathbungo. More extensive facilities are available at the Crossmyloof Morrisons store or the Sainsburys Local store on Darnley Road. Recreational pursuits within the area are available at Queens Park, Maxwell Park or Pollok Country Park. Pollokshields West train station is approximately 250 yards walk, Shields Road underground station is one mile away and the M77, M74 or M8 connect the Southside of Glasgow to Scotland’s motorway network.
Directions
Sat Nav: 19 Darnley Gardens, Pollokshields, G41 4NQ – Flat 0/1
Enquire
Branch Details
Branch Address
247 Kilmarnock Road,
Shawlands,
G41 3JF
Tel: 0141 636 7588
Email: shawlandsoffice@corumproperty.co.uk
Opening Hours
Mon – 9 - 5.30pm
Tue – 9 - 5.30pm
Wed – 9 - 8pm
Thu – 9 - 8pm
Fri – 9 - 5.30pm
Sat – 9.30 - 1pm
Sun – 12 - 3pm
