2 | BEDROOMS
1 | BATHROOM
2 | PUBLIC ROOMS
Positioned within a popular Clarkston address, providing excellent accommodation with great size level garden grounds, this mid terrace villa is well presented throughout and will appeal to professional and family sector of the market.
Positioned within a popular Clarkston address, providing excellent accommodation with great size level garden grounds, this mid terrace villa is well presented throughout and will appeal to professional and family sector of the market.
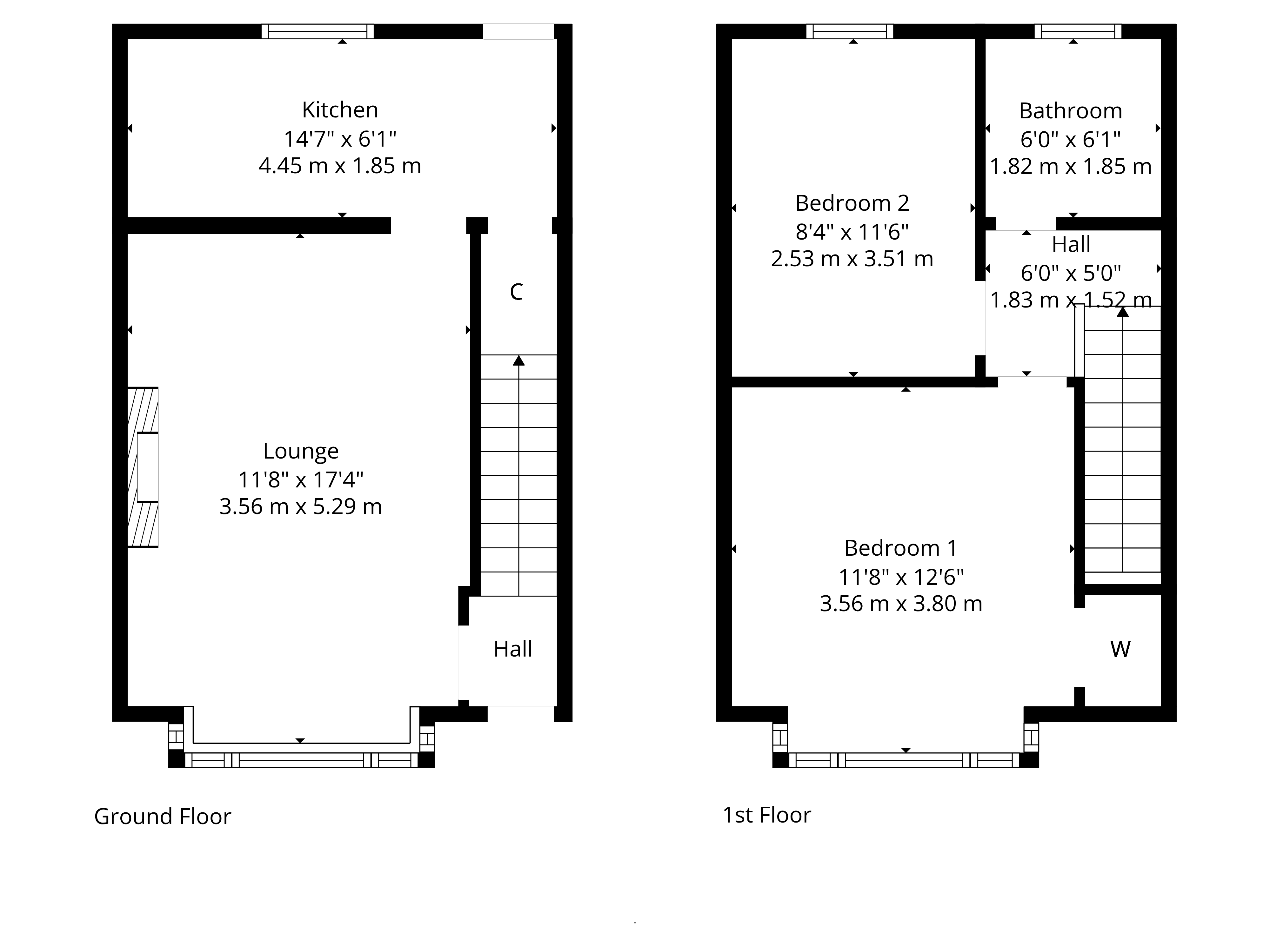
The ground floor accommodation extends to entrance hallway, generous lounge, modern fitted kitchen with a range of wall and base mounted units and garden access. Upstairs provides generous principal bedroom with lovely open aspects to front, second very good double bedroom, and main modern family bathroom. The property also benefits from attic space providing further storage and the specification includes a system of gas central heating, and double glazing.
Externally the property is set within level easily maintained level garden grounds. The gardens are beautiful, private and well enclosed with decked patio area and level lawn providing an ideal space for outside enjoyment.
Nestled in a quiet and locally admired pocket of Clarkston with great proximity to high achieving local schooling and excellent amenities.
The floor plan shall provide you with a detailed layout of this versatile and well laid out home; however, we recommend viewing to appreciate the space, versatility, and convenient setting that's on offer.
ER Band C
A haven for young growing families, the district offers an abundance of sports and recreational facilities, excellent shopping and retail outlets, the district is synonymous with some of the best schooling in the West of Scotland. The shopping suburb of Clarkston offers independent retailers with cafes, delis, restaurants and there are excellent transport provisions provided for the city centre via road and rail, from Clarkston and Williamwood train stations.
Sat Nav:
104 Stamperland Avenue, Clarkston, Glasgow, East Renfrewshire, G76 8HA
CC0927
For the full home report visit
corumproperty.co.uk* All measurements and distances are approximate. Floorplans are for illustration purposes and may not be to scale. Buildings and/or floors may not be geographically accurate.


Sat Nav:
104 Stamperland Avenue, Clarkston, Glasgow, East Renfrewshire, G76 8HA
CC0927
For the full home report visit
corumproperty.co.uk* All measurements and distances are approximate. Floorplans are for illustration purposes and may not be to scale. Buildings and/or floors may not be geographically accurate.