13 Goukscroft Park
Offers Over £195,000
- 4
- 2
- 2
- 1496 sq. ft.
***** CLOSING DATE FRIDAY 16TH JANUARY AT 11AM **** An impressive extended end-terrace chalet bungalow with a deceptively spacious and flexible layout suited to a variety of potential purchasers and set in good sized gardens close to Belleisle Park.
Description
**** CLOSING DATE FRIDAY 16TH JANUARY AT 11AM **** Number 13 is an extended end-terrace chalet bungalow comprising of 6 principal apartments arranged over two levels and offered to the market for the first time in almost 60 years having been lovingly cared for and maintained by the long term owners. The property represents an excellent opportunity to both the family market or given the provision of two downstairs bedrooms and a bathroom, those clients seeking predominantly all on the level living without compromising on space.
Features and benefits include a modern fitted kitchen, generous room proportions, gas central heating with a ‘Vaillant’ boiler, extensive cupboard space and wardrobe space in all four bedrooms, double glazing and neutral decoration.
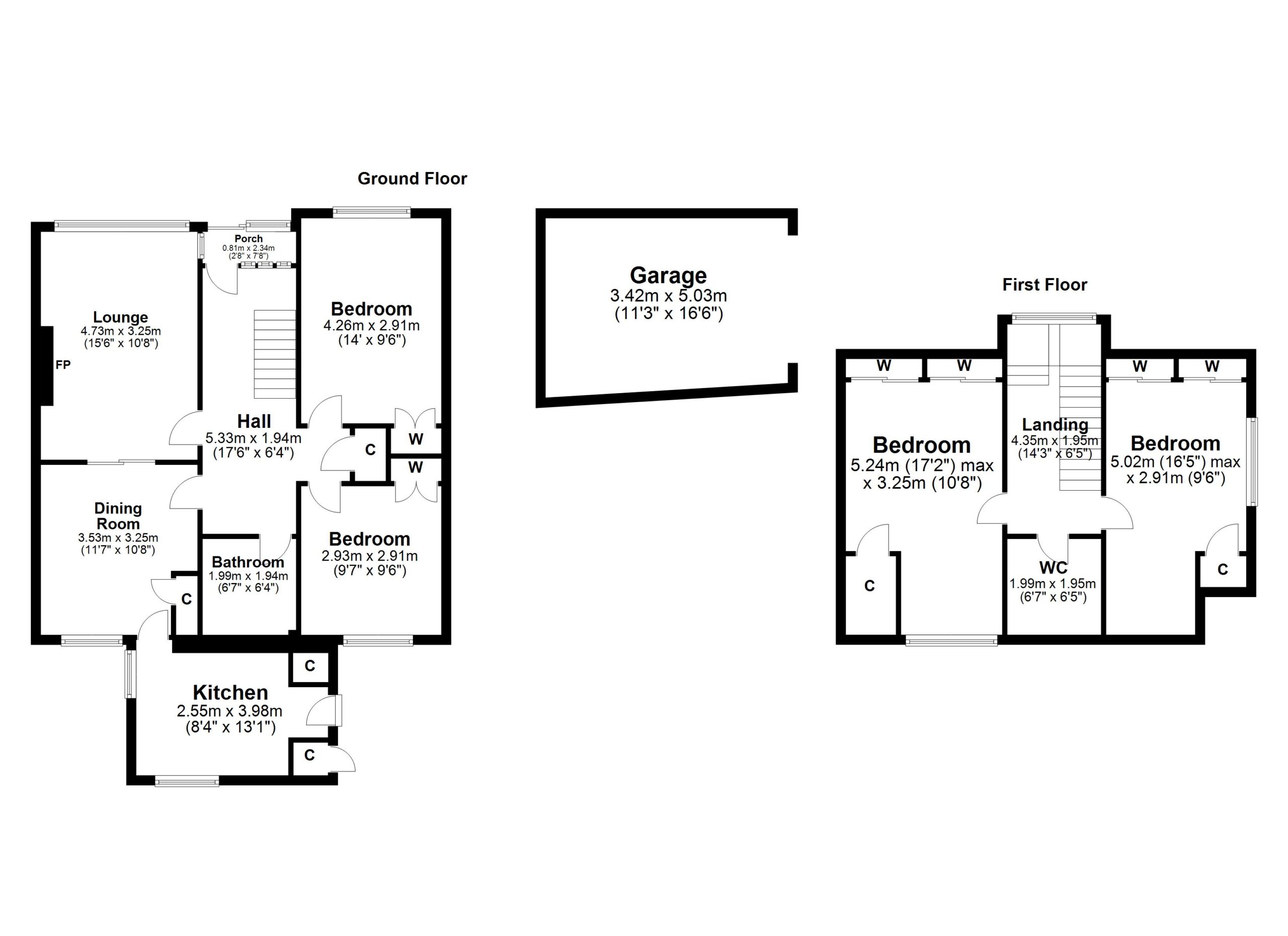
In summary the accommodation extends to, on the ground floor, an entrance porch, broad and welcoming reception hallway, front facing lounge with feature fireplace and sliding doors to the dining room, fitted kitchen with door to the rear garden, two double bedrooms and a three piece bathroom. Upstairs there are two further double bedrooms and two piece wc (space for shower cubicle if required). From the landing there is a hatch to the loft space with pull down ladder.
Externally the front garden is laid to lawn with shrubbery borders. The enclosed rear garden is predominantly lawned with well stocked shrubbery borders. In addition there is a lock up garage (automatic door), external store housing the boiler and driveway to the side. Included in the sale will be the garden shed and summerhouse.
EER - D
Local Area
Goukscroft Park is a relatively traffic free residential area address close to a wide range of amenities including Belleisle Park, the seafront, local shop and tearoom. Ayr town centre is around two miles distant and provides a more comprehensive range of amenities including supermarket and retail shopping, transport and recreational facilities. For the commuter there are excellent road and rail links to Glasgow and surrounding areas.
Directions
From the Corum office in Beresford Terrace turn left at the traffic lights onto Miller Road and proceed to the next set of traffic lights turning left onto Racecourse Road. Continue out and once past the entrance to Belleisle Park turn right onto Gearholm Road and first left onto Goukscroft Park. Number 13 is on the left hand side.
Enquire
Branch Details
Branch Address
10 Beresford Terrace,
Ayr,
KA7 2EG
Tel: 01292 880 888
Email: ayr@corumproperty.co.uk
Opening Hours
Mon – 9 - 5.30pm
Tue – 9 - 5.30pm
Wed – 9 - 8pm
Thu – 9 - 8pm
Fri – 9 - 5.30pm
Sat – 9.30 - 1pm
Sun – Closed
