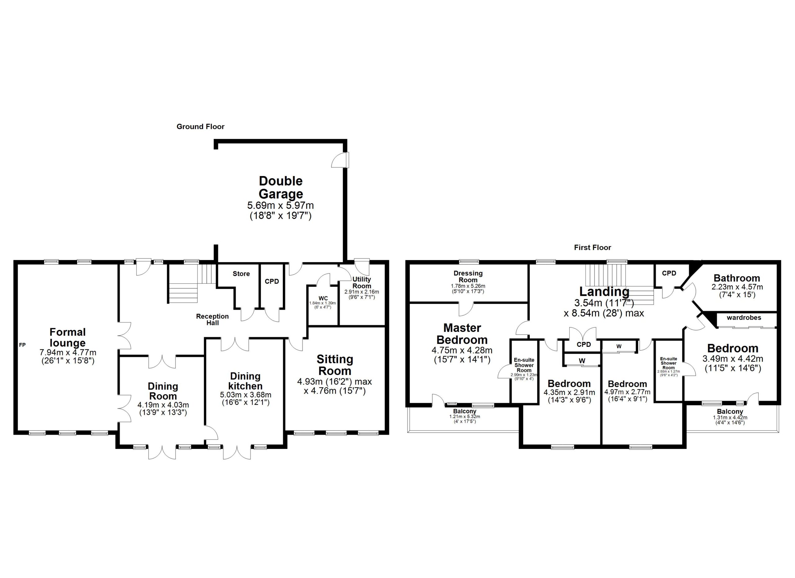
Oaklands, 36A Ottoline Drive Troon

This property is currently not on the market.