4 Trigoni Court
Offers Over £435,000
- 4
- 3
- 2
- 2121 sq. ft.
This excellent modern detached villa is located in this desirable cul-de-sac in the popular South Side of Largs. The property provides quite stunning panoramic views out over the Firth of Clyde to the Isle of Cumbrae and Isle of Arran. Largs golf club, shorefront and esplanade are just a short distance from the house and the town itself has many local amenities including a mainline train station.
Property Description
4 Trigoni Court is an excellent modern detached villa with beautiful views over and along the Firth of Clyde to North Ayrshires islands including Arran & Cumbrae. Set within this desirable private cul-de-sac and not only this located in the popular South Side of Largs.
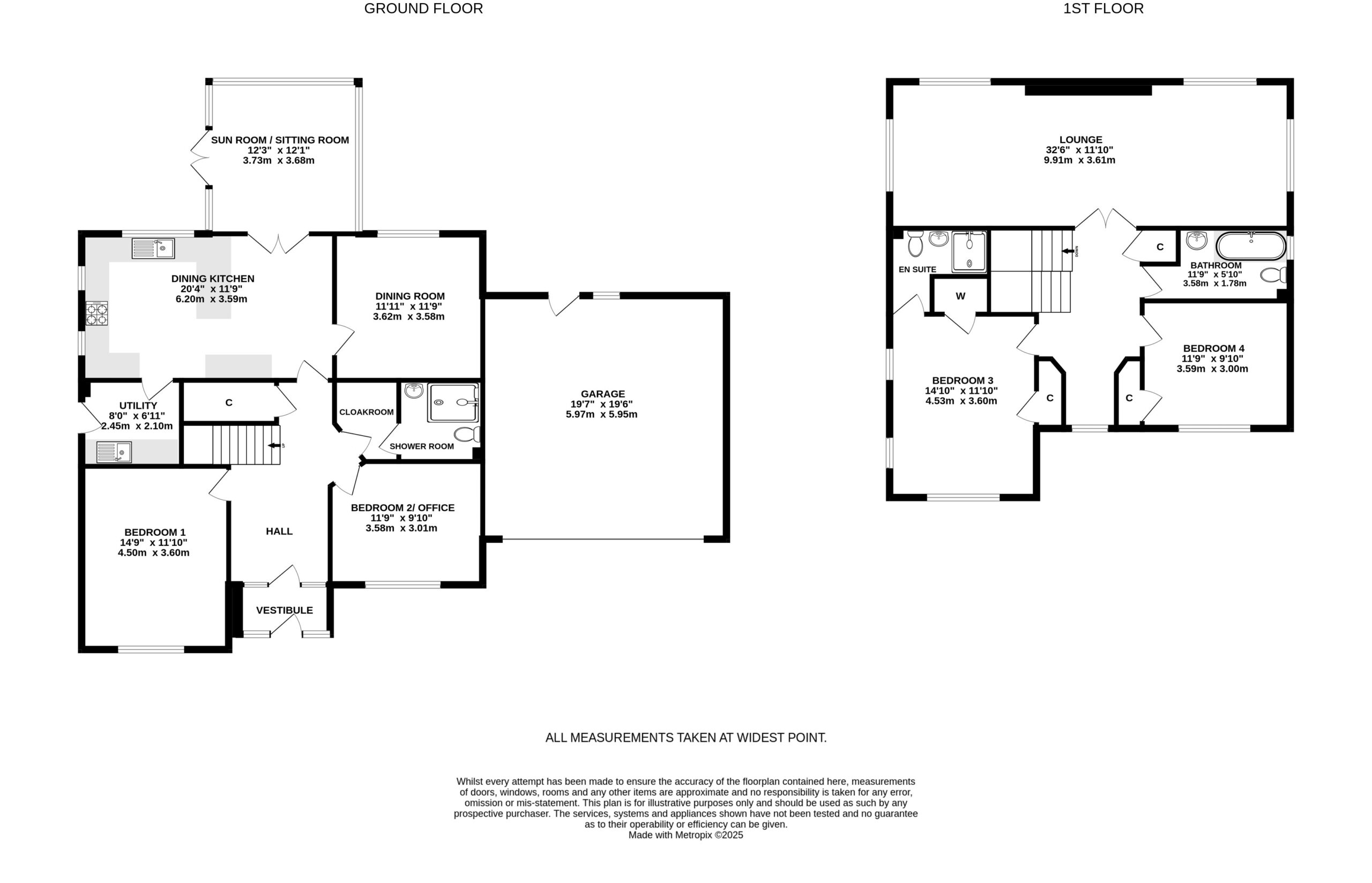
The lovely flexible accommodation is formed over two levels which extends to a welcoming reception hallway, sunroom/sitting room to the rear, formal dining room, modern breakfasting kitchen, utility, two bedrooms of which one could easily be utilised as an office and wet room. On the upper level of the property there can be found the formal lounge which is a substantial room with beautiful views over & along the estuary, two bedrooms, master bedroom with stunning views and en-suite. To further complement this floor of the house there is the family bathroom. The property has gas central heating and double glazing. To the front of the house there are garden grounds with a driveway for several vehicles leading to the double garage. There are extensive private gardens to the rear of the property affording views over and along the estuary. Early viewing is highly recommended to appreciate the accommodation and location offer.
Local Area
Largs is a popular holiday destination and is becoming increasingly popular for those looking for a seaside home in a town with a good range of amenities and recreational facilities. The new Largs Academy Campus (built 2018) incorporates Early Years Learning, Largs Primary and St Mary’s Primary as well as the highly regarded Largs Academy. Inverclyde, Scotland’s National Sport’s centre has also recently been refurbished. The area has excellent travel links including Largs railway station, bus routes and easy access to the major road networks. There are many restaurants and hotels in the area, with the yacht marina and seafront being an attraction for many. Prestwick and Glasgow Airport offer regular flights throughout Britain, Ireland and Europe.
Enquire
Branch Details
Branch Address
66 Main Street,
Largs,
KA30 8AL
Tel: 01475 675 001
Email: largs@corumproperty.co.uk
Opening Hours
Mon – 9 - 5:30pm
Tue – 9 - 5.30pm
Wed – 9 - 5:30pm
Thu – 9 - 5:30pm
Fri – 9 - 5:30pm
Sat – 9:30 - 1pm
Sun – Closed
