6 Loch Park
Offers Over £325,000
- 3
- 2
- 3
- 1787 sq. ft.
*** CLOSING DATE FRIDAY 1st MAY AT 12pm *** A substantial traditional detached villa with single garage that includes extensive gardens and is set in a large level plot within the highly desirable area of Doonfoot.
*** CLOSING DATE FRIDAY 1st MAY AT 12pm *** Perfectly located within a quiet cul de sac the property lies just a short distance from the spectacular beach and sea front at Greenan Shore. From here there is pedestrian access all the way to Ayr town centre along the famous esplanade.
‘Tiffany ‘ is an utterly charming detached property set in fabulous gardens that offers significant potential to create a bespoke family home. The subjects are offered to the market for the first time in a generation and have been meticulously maintained over the years.
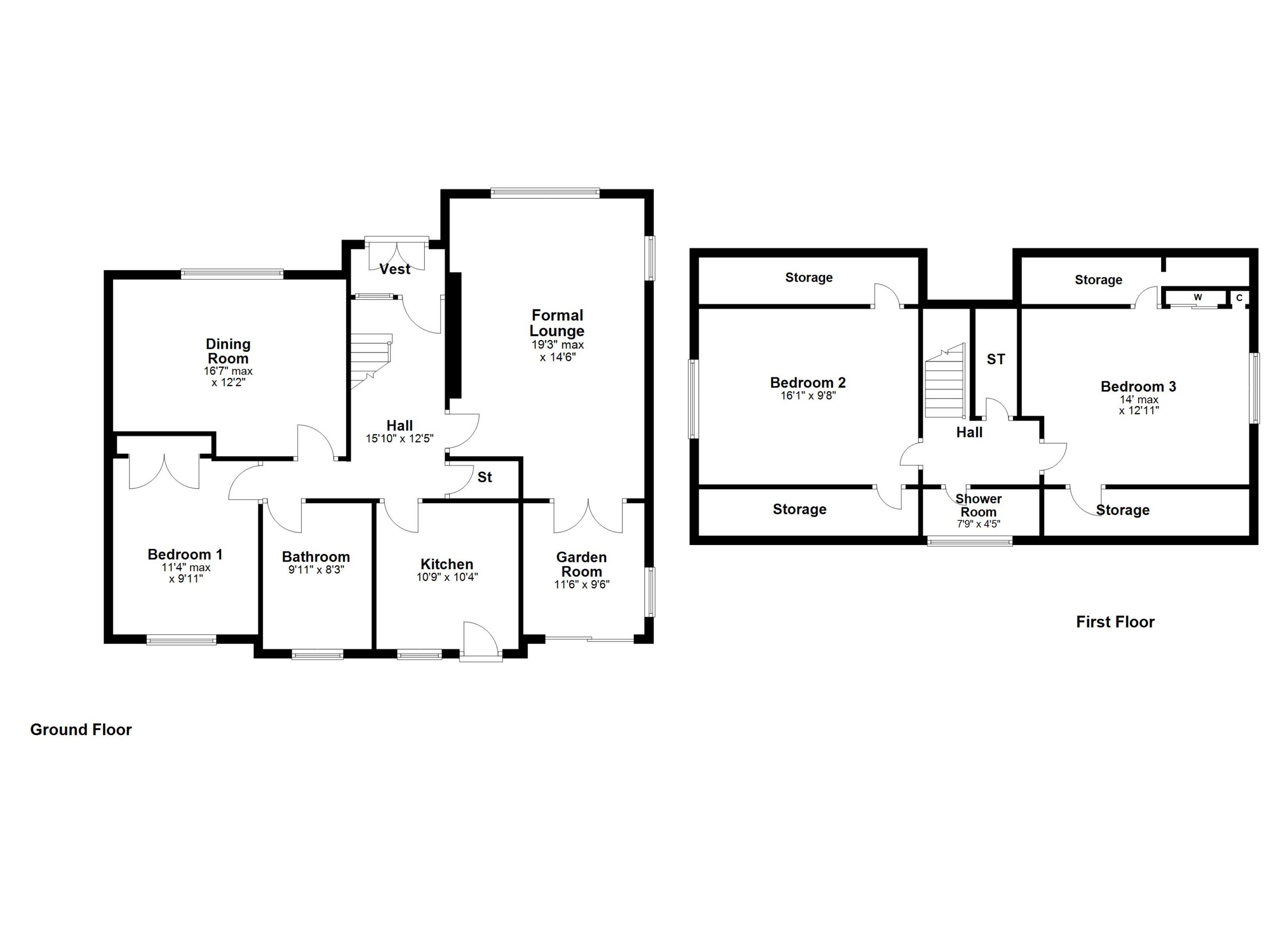
The accommodation comprises entrance vestibule, broad reception hall with walk in storage cupboard, 19’ formal lounge, separate dining room, charming garden room with patio doors to garden, modern fitted kitchen, three double bedrooms, modern bathroom, upstairs shower room, extensive eaves storage.
Outside there are superb gardens. The front is garden has a good size lawn and tar macadam driveway that provides off street parking for multiple vehicles and access to a single garage.
The westerly facing rear garden retains a high degree of privacy and has paved patio, extensive lawn and a range of specimen shrubs and herbaceous borders. There is a single garage.
EER - D
Local Area
Lochpark is considered a highly desirable location given its proximity to the sea front and tucked away in a quiet cul de sac is without doubt a rare opportunity.
Doonfoot has excellent primary school and local amenities as well as being a short distance to Alloway Village which retains a real sense of charm and character being the birth place of Rabbie Burns.
Ayr is less than two miles and retains a comprehensive range of retail shopping, transport and recreational facilities. The A77/M77 road network provides swift commuting to Glasgow and the Central belt.
Enquire
Branch Details
Branch Address
10 Beresford Terrace,
Ayr,
KA7 2EG
Tel: 01292 880 888
Email: ayr@corumproperty.co.uk
Opening Hours
Mon – 9 - 5.30pm
Tue – 9 - 5.30pm
Wed – 9 - 8pm
Thu – 9 - 8pm
Fri – 9 - 5.30pm
Sat – 9.30 - 1pm
Sun – Closed
