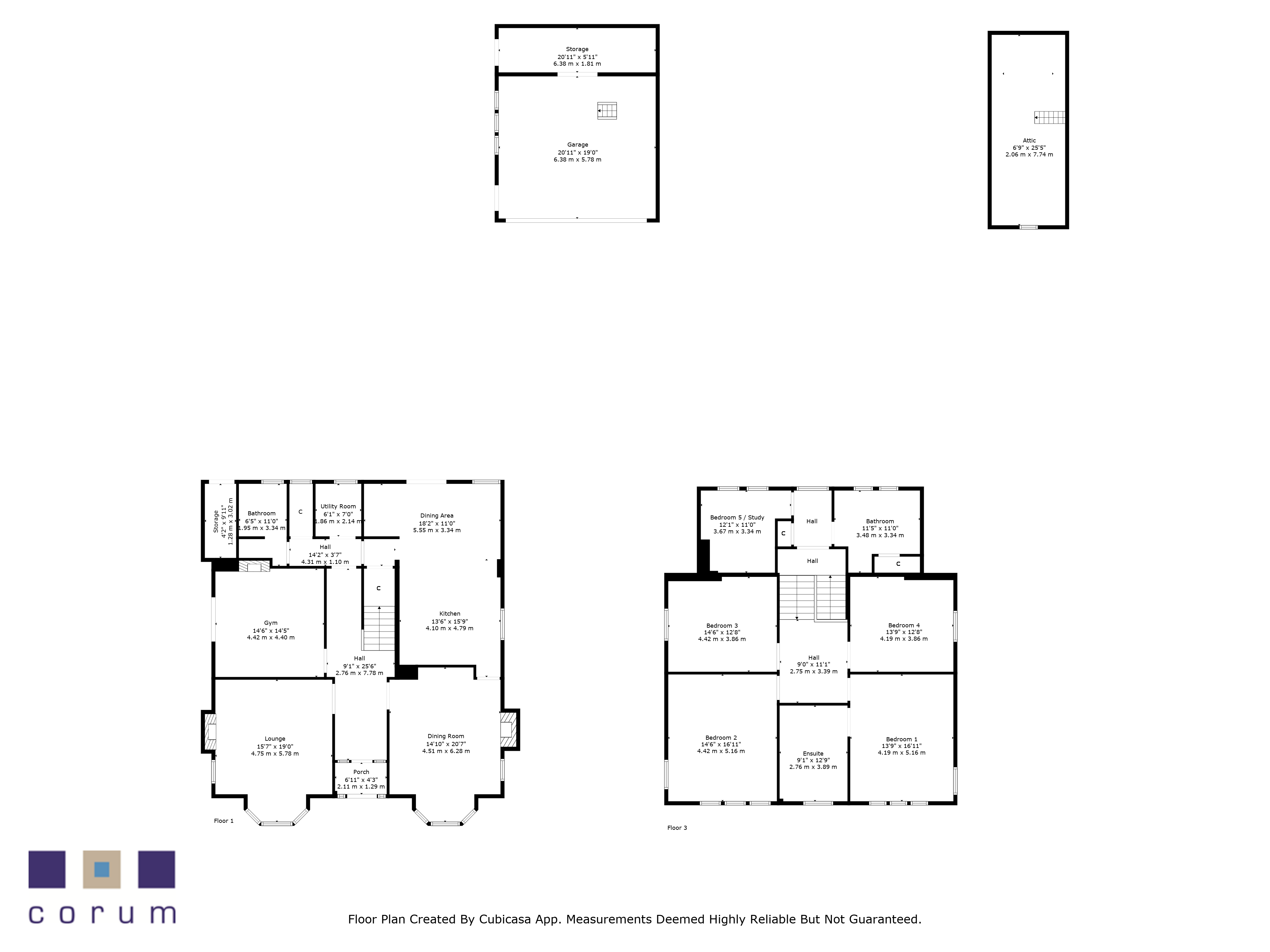
Belton House, 12 Ayr Road Giffnock

This property is currently not on the market.