150 D Barrangary Road
Offers Over £205,000
- 3
- 2
- 1
- 904 sq. ft.
Beautifully presented, with landscaped garden, and parking to the rear this Brodick style home by Persimmon provides an exciting three level layout.
Property Description
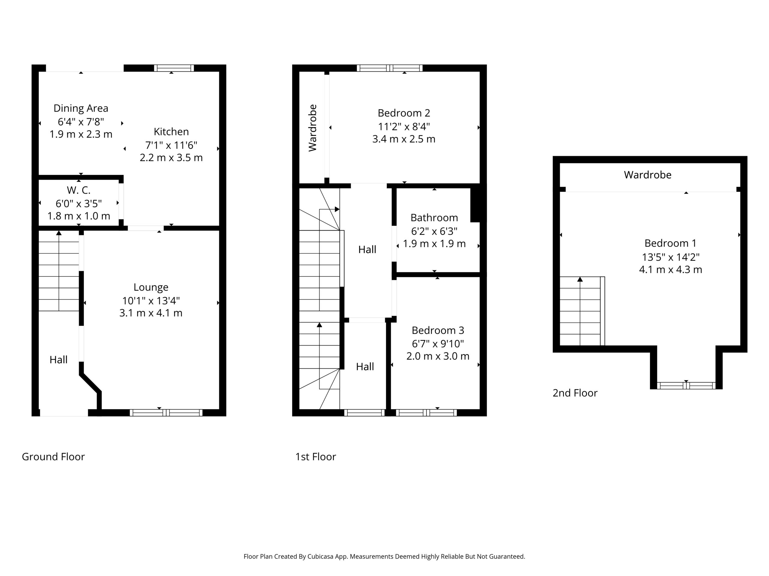
Built by Persimmon Homes the Brodick is a spacious three-bedroom family home with accommodation spread over three levels. This example in particular has been superbly well maintained by the current owner; the home is presented in walk-in condition.
Accommodation comprises entrance hall with staircase to the mid-level, front facing lounge with under stair closet storage, open plan kitchen diner to the rear with W.C just off. The kitchen provides a range of base and wall mounted units with integrated appliances, the dining area provides direct access to the rear garden via French doors.
The mid-level comprises two bedrooms and the family bathroom, bedroom two is a generous double room with large, fitted sliding door wardrobes, bedroom three a sizable single room. The family bathroom is fitted with a three-piece white suite including an over bath shower.
The principal bedroom is on the top floor, it is a superbly generous room with extensive sliding door wardrobes, dormer window formation allows light to flood in, a lower landing and separate door allows it to be closed off to the rest of the home.
Externally, there is resident parking to the rear where this home has two allocated spaces directly at the back on the home. The rear garden has been wonderfully landscaped providing multiple points of interest, laid with Astro turf, a patio area for al fresco dining, and enclosed by timber fencing for privacy.
EER Band: B
Council Tax Band: D
Local Area
Bishopton is a popular village in West Renfrewshire with ongoing extensive development at Dargavel Village with the modern Dargavel primary school and local shops. The original village contains Bishopton primary school and secondary schooling can be found in nearby Erskine. Bishopton is also well placed for accessing Glasgow International Airport with direct access to the M8 motorway which allows for travel to neighbouring towns as well as INTU Retail Park, Glasgow city centre and the A737 Howwood bypass which allows for travel to North Ayrshire. There are several local shops, Bishopton rugby club, and Erskine Golf Club.
Travel Directions
150D Barrangary Road, Bishopton, PA7 5FR
Enquire
Branch Details
Branch Address
2 Windsor Place,
Main Street,
PA11 3AF
Tel: 01505 691 400
Email: bridgeofweir@corumproperty.co.uk
Opening Hours
Mon – 9 - 5.30pm
Tue – 9 - 5.30pm
Wed – 9 - 8pm
Thu – 9 - 8pm
Fri – 9 - 5.30pm
Sat – 9.30 - 1pm
Sun – 12 - 3pm
