8 Briarlea Drive
Offers Over £375,000
- 4
- 2
- 1
- 1119 sq. ft.
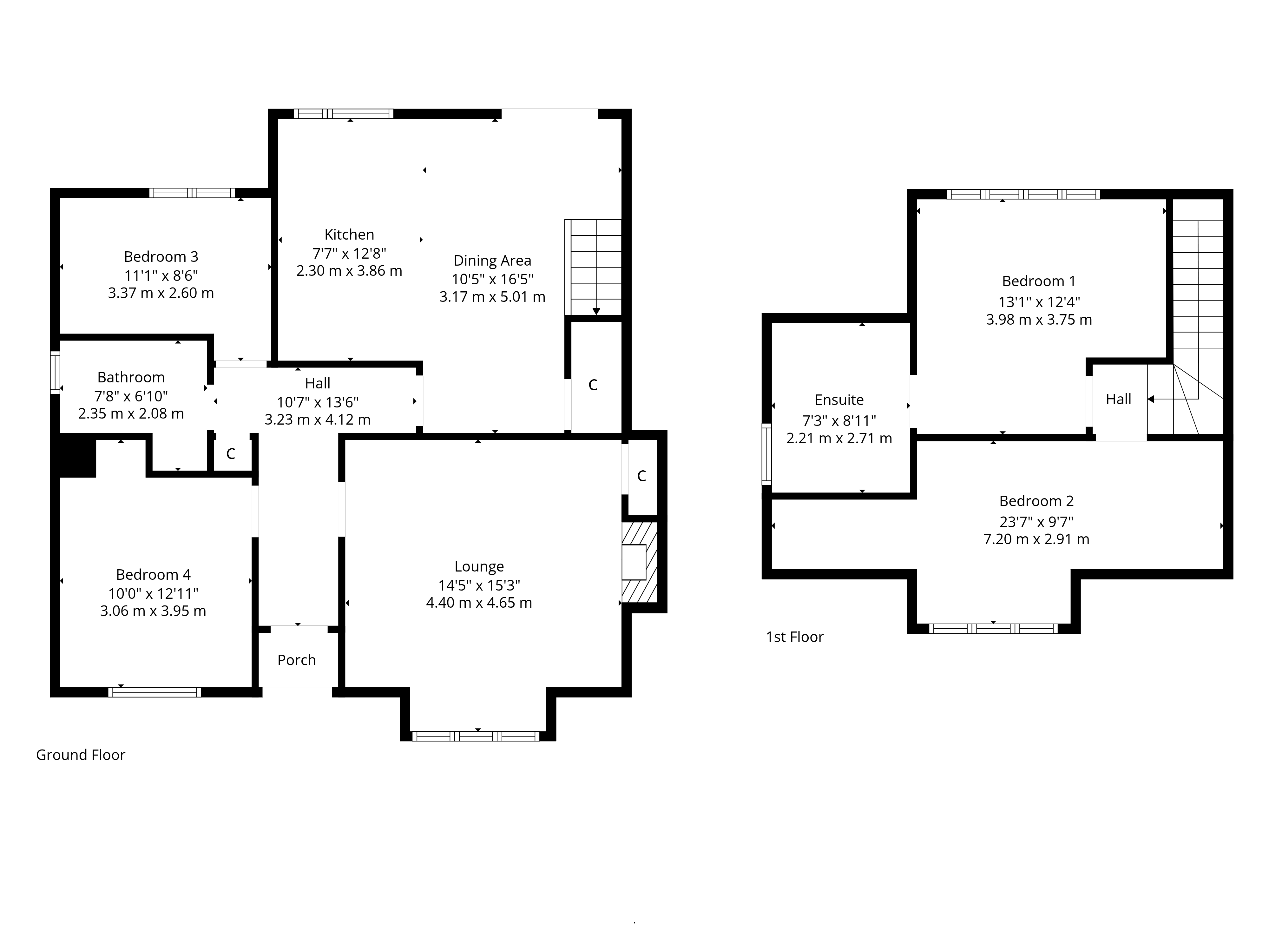
** SOLD AT CLOSING DATE ** A wonderful extended and reconfigured 4 bedroom semi detached family house set within generous level garden grounds.
This traditional semi detached bungalow has been improved, extended and upgraded throughout creating an excellent family home with an abundance of living space and accommodation. Giffnock continues to be one of the most sought after suburbs of Glasgow with Briarlea Drive sitting in one of its most popular pockets.
The ground floor accommodation extends to vestibule, traditional style reception hallway with storage adjacent, generous bay windowed lounge to front with excellent views, two well proportioned bedrooms with storage and modern family bathroom. The rear of the home flows beautifully as an open plan kitchen/living dining area with exceptional natural light and strong connections to the rear gardens. The upstairs provides a fantastic principal bedroom with modern storage and aspects to rear gardens and en-suite shower room. Further full double bedroom with storage options. The specification of the property includes a system of gas central heating, double glazing, and the subjects are presented beautifully to the market.
Externally the property is set within fantastic and generous level landscaped garden grounds. The gardens are easily maintained, mature and private offering large patio area and large level lawn. The driveway to the front provides expansive vehicular parking further benefiting from carport to side.
EER Band D.
Local Area
Giffnock continues to be one of the most desirable residential suburbs on Glasgow's south side. A haven for young growing families, the district is synonymous with some of the best schooling in the West of Scotland. Moreover, there are excellent transport links via bus and train close at hand, in addition to local motorway links (M77/M8) providing swift access to the city centre and Ayrshire. There are two train stations within close proximity, Giffnock Train Station and Muirend Train Station. There are numerous independent shops, restaurants and delicatessens only a short walk away. An abundance of sports and leisure facilities are available within East Renfrewshire including David Lloyd Sports Club, Whitecraigs Golf Club, Giffnock and Whitecraigs Tennis Clubs and Rouken Glen Park.
Enquire
Branch Details
Branch Address
134 Ayr Road,
Newton Mearns,
G77 6EG
Tel: 0141 639 5888
Email: n.mearns@corumproperty.co.uk
Opening Hours
Mon – 9 - 5.30pm
Tue – 9 - 8pm
Wed – 9 - 8pm
Thu – 9 - 8pm
Fri – 9 - 5.30pm
Sat – 9.30 - 1pm
Sun – 12 - 3pm
