1C Brisbane Court
Offers Over £250,000
- 3
- 2
- 1
- 1012 sq. ft.
** SOLD AT CLOSING DATE ** A lovely first floor Dickie flat with balcony and garage.
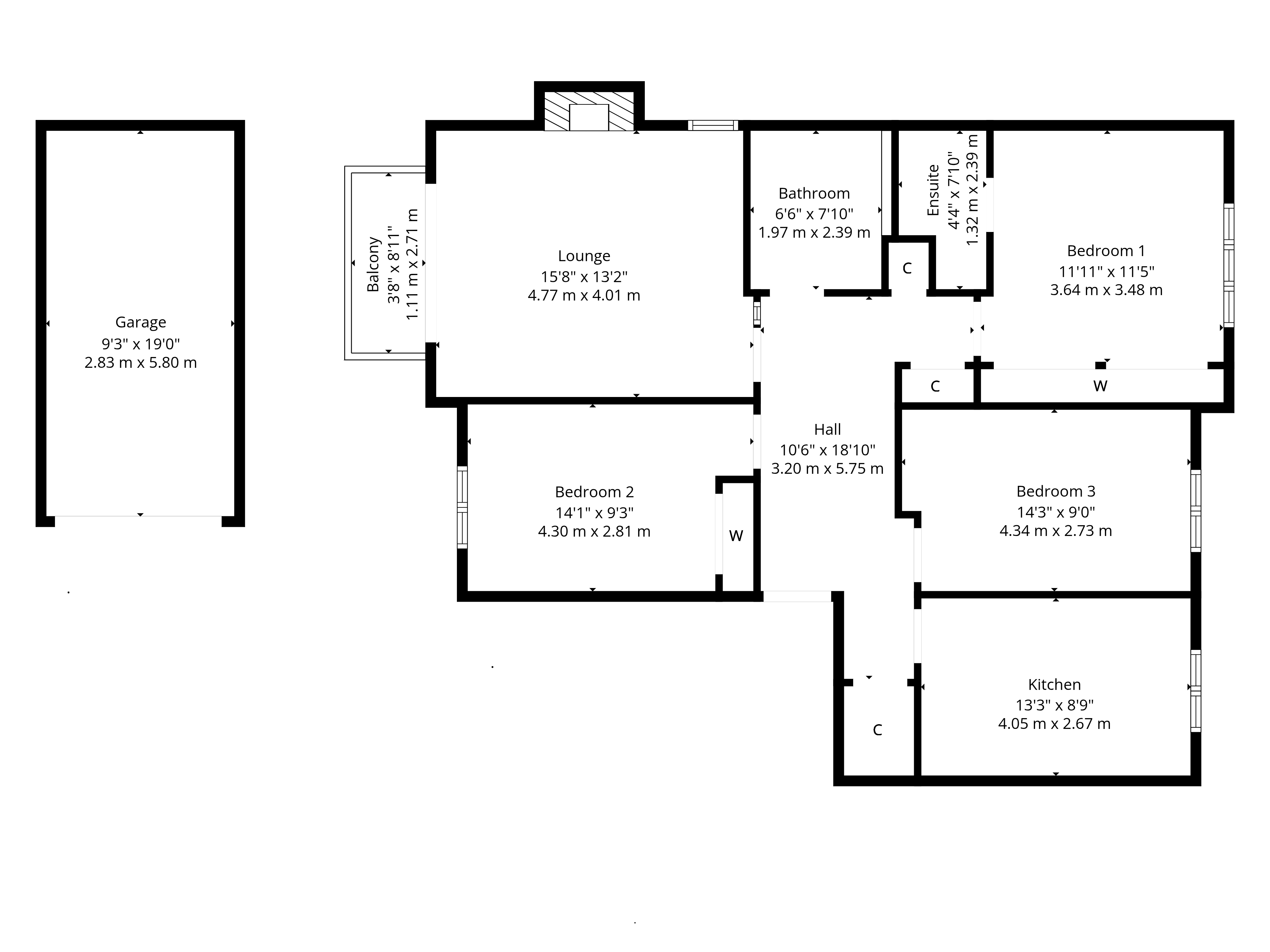
This lovely first floor apartment enjoys a popular location within this sought after pocket of Giffnock. Constructed by respected builders, Dickie, the subjects have the added benefit of balcony and private garage.
Entered via secure buzzer entry system, the well maintained and carpeted residents’ hallway gives access to the first floor whereby the accommodation comprises of: traditional reception hallway with good storage adjacent, fantastic formal lounge with access to balcony, lovely principal bedroom with fitted wardrobes and en-suite shower room, second good double bedroom, third bedroom/dining room, main family bathroom and upgraded dining kitchen with a range of wall and base mounted units. The specification of the property includes a system of electric heating, double glazing, secure entry system and the property is well presented and decorated throughout.
Externally the property is set within well maintained residents garden grounds with private garage fitted with power and light. It is worthy of note that the development is well factored by Hacking & Paterson.
EER Band D.
Local Area
Giffnock continues to be one of the most desirable residential suburbs on Glasgow’s south side. A haven for young growing families, the district is synonymous with some of the best schooling in the West of Scotland. Moreover, there are excellent transport links via bus and train close at hand, in addition to local motorway links (M77/M8) providing swift access to the city centre and Ayrshire. There are two train stations within close proximity, Giffnock Train Station and Muirend Train Station. There are numerous independent shops, restaurants and delicatessens only a short walk away. An abundance of sports and leisure facilities are available within East Renfrewshire including David Lloyd Sports Club, Pure Gym, Nuffield Gym, Whitecraigs Golf Club, Giffnock and Whitecraigs Tennis Clubs and Rouken Glen Park which was voted UK’s Best Park of 2016.
Enquire
Branch Details
Branch Address
134 Ayr Road,
Newton Mearns,
G77 6EG
Tel: 0141 639 5888
Email: n.mearns@corumproperty.co.uk
Opening Hours
Mon – 9 - 5.30pm
Tue – 9 - 8pm
Wed – 9 - 8pm
Thu – 9 - 8pm
Fri – 9 - 5.30pm
Sat – 9.30 - 1pm
Sun – 12 - 3pm
