40 Broom Road East
Offers Over £235,000
- 3
- 1
- 1
- 786 sq. ft.
An upgraded end terraced three-bedroom home set within large corner plot.
This traditional end terraced villa enjoys a quiet yet highly convenient location within this popular pocket of Newton Mearns. Recently refurbished and upgraded this fantastic home will appeal to broad sector of the market. The subjects are set within large level corner plot with beautiful southernly, garden grounds.
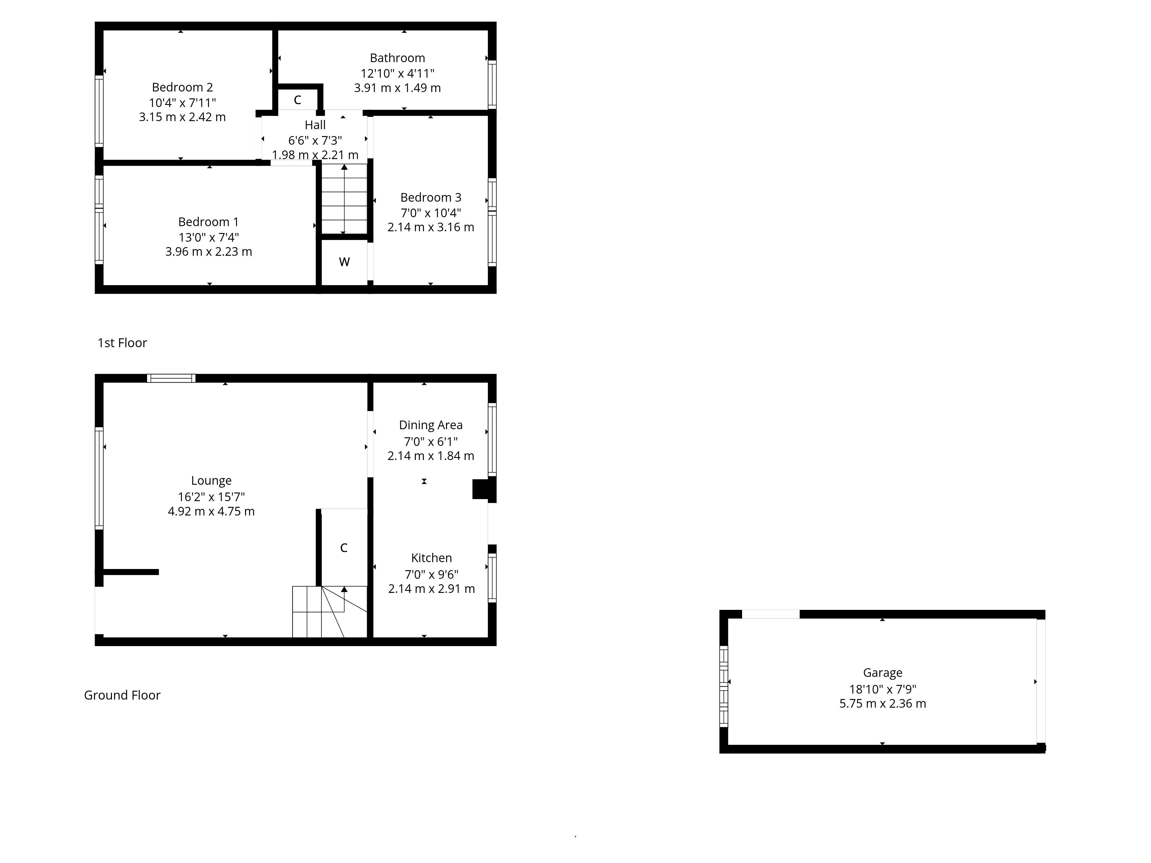
The ground floor accommodation extends to entrance hallway, a fantastic lounge to front with semi open plan access to modern fitted breakfasting kitchen with a range of integrated appliances and access to level rear garden grounds. Upstairs provides generous principal bedroom, lovely second double bedroom with aspects to rear and wardrobe, good third bedroom and modern main family bathroom with contemporary tiling. Additional storage provided by way of attic space. The specification includes a modern system of gas central heating, double glazing and the subjects are nicely presented in modern neutral tones throughout.
Externally private gardens to the front, side and rear mainly laid lawn and patio areas offering excellent space for young families. The rear has lock up garage and residents' parking.
Local Area
Newton Mearns is one of the most sought after suburbs within the south side of Glasgow. The property is superbly placed for a wide range of amenities and indeed nationally recognised schooling. The property is a short distance away from excellent shopping at The Avenue at Mearns Cross and Greenlaw Village. There are an abundance of sports and recreational facilities found within the district which include excellent golf courses, parks, tennis clubs and there are a variety of country pursuits found nearby. Local train stations include Whitecraigs Station and Patterton Station.
Recently Sold Properties
Enquire
Branch Details
Branch Address
134 Ayr Road,
Newton Mearns,
G77 6EG
Tel: 0141 639 5888
Email: n.mearns@corumproperty.co.uk
Opening Hours
Mon – 9 - 5.30pm
Tue – 9 - 8pm
Wed – 9 - 8pm
Thu – 9 - 8pm
Fri – 9 - 5.30pm
Sat – 9.30 - 1pm
Sun – 12 - 3pm
