46 Brownmuir Avenue
Offers Over £180,000
- 2
- 1
- 1
- 818 sq. ft.
** SOLD AT CLOSING DATE ** A contemporary styled end terraced house within a quiet setting in the conservation village of Eaglesham.
Enjoying a quiet, peaceful setting towards the end of this residential cul-de-sac, Corum are delighted to present to the market this superbly refurbished, contemporary designed two bedroom end terraced villa set within generous sized, recently landscaped garden grounds.
The house is elevated by a beautifully refurbished interior, and notable features include high performance gas central heating system, double glazed windows, refurbished dining kitchen, upgraded contemporary styled bathroom and modern/stylish decoration throughout.
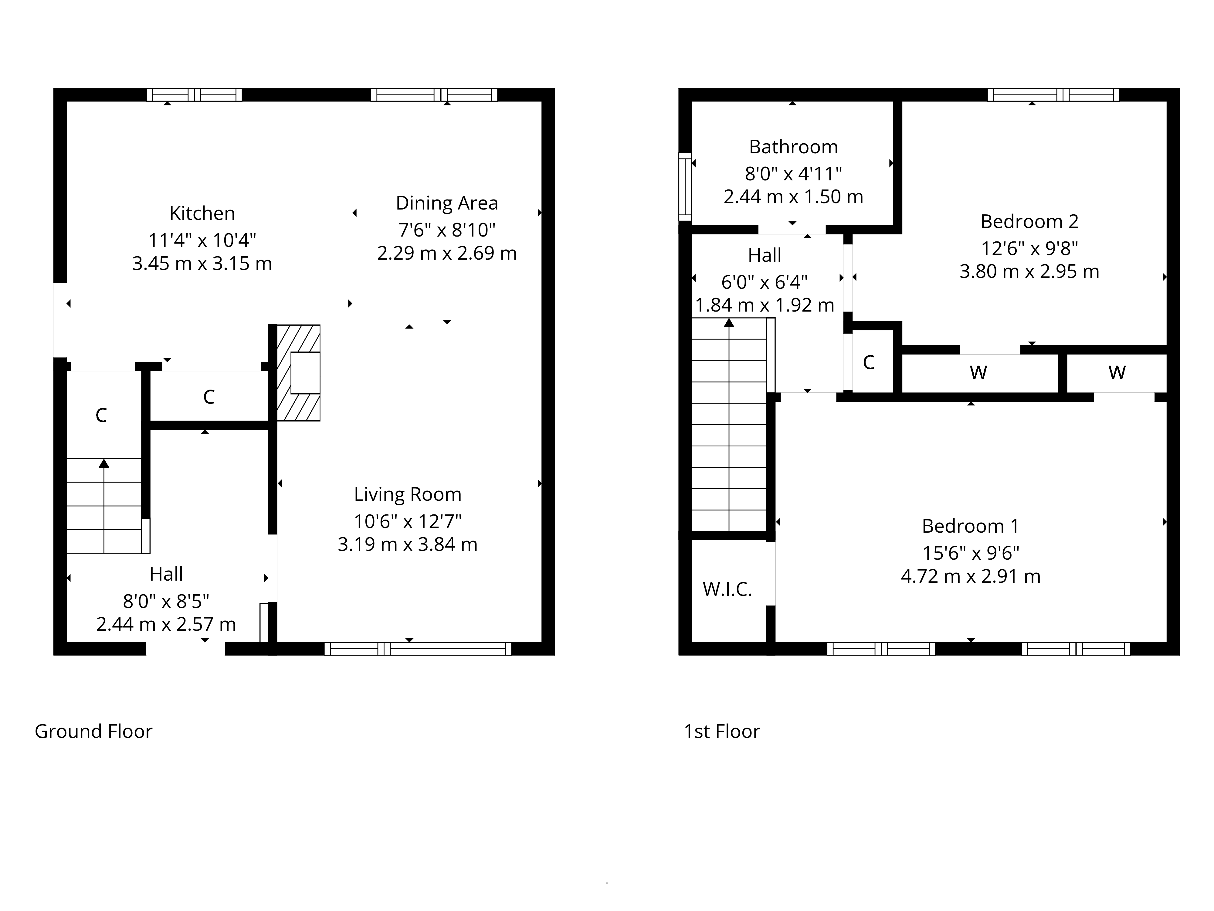
Great sized traditional reception hallway, principal lounge area with focal point log burning stove with open access to dining area and modern contemporary styled kitchen with granite worktops, incorporating breakfasting bar, Belfast sink and beautifully appointed range of units with appliances, under stair storage and double glazed door to gardens. The upper accommodation provides two double sized bedrooms and superbly upgraded family bathroom. Partially floored attic.
The garden grounds are a real feature that wrap round the front and side elevation of the property and have recently created a canopied external dining area. Lawns to side and rear.
EER Band D.
Local Area
The conservation village of Eaglesham is a fine example of late 18th Century planning and architecture, and the village was designated Scotland’s first outstanding conservation area in 1960. The village provides a range of local shops, up-market hotel, bars, restaurants, popular village primary school and is also within the catchment radius for nationally recognised first class schooling. Some of Scotland’s finest independent schools are also easily accessible on the south side of Glasgow. The surrounding countryside offers quiet country lanes, fishing and a number of highly regarded golf courses. There are regular bus services provided to the city centre and excellent motorway networks providing swift access to Glasgow and Ayrshire. Busby Station and Clarkston Station are the local train stations. Both Glasgow and Prestwick airports are also within easy reach.
Enquire
Branch Details
Branch Address
134 Ayr Road,
Newton Mearns,
G77 6EG
Tel: 0141 639 5888
Email: n.mearns@corumproperty.co.uk
Opening Hours
Mon – 9 - 5.30pm
Tue – 9 - 8pm
Wed – 9 - 8pm
Thu – 9 - 8pm
Fri – 9 - 5.30pm
Sat – 9.30 - 1pm
Sun – 12 - 3pm
