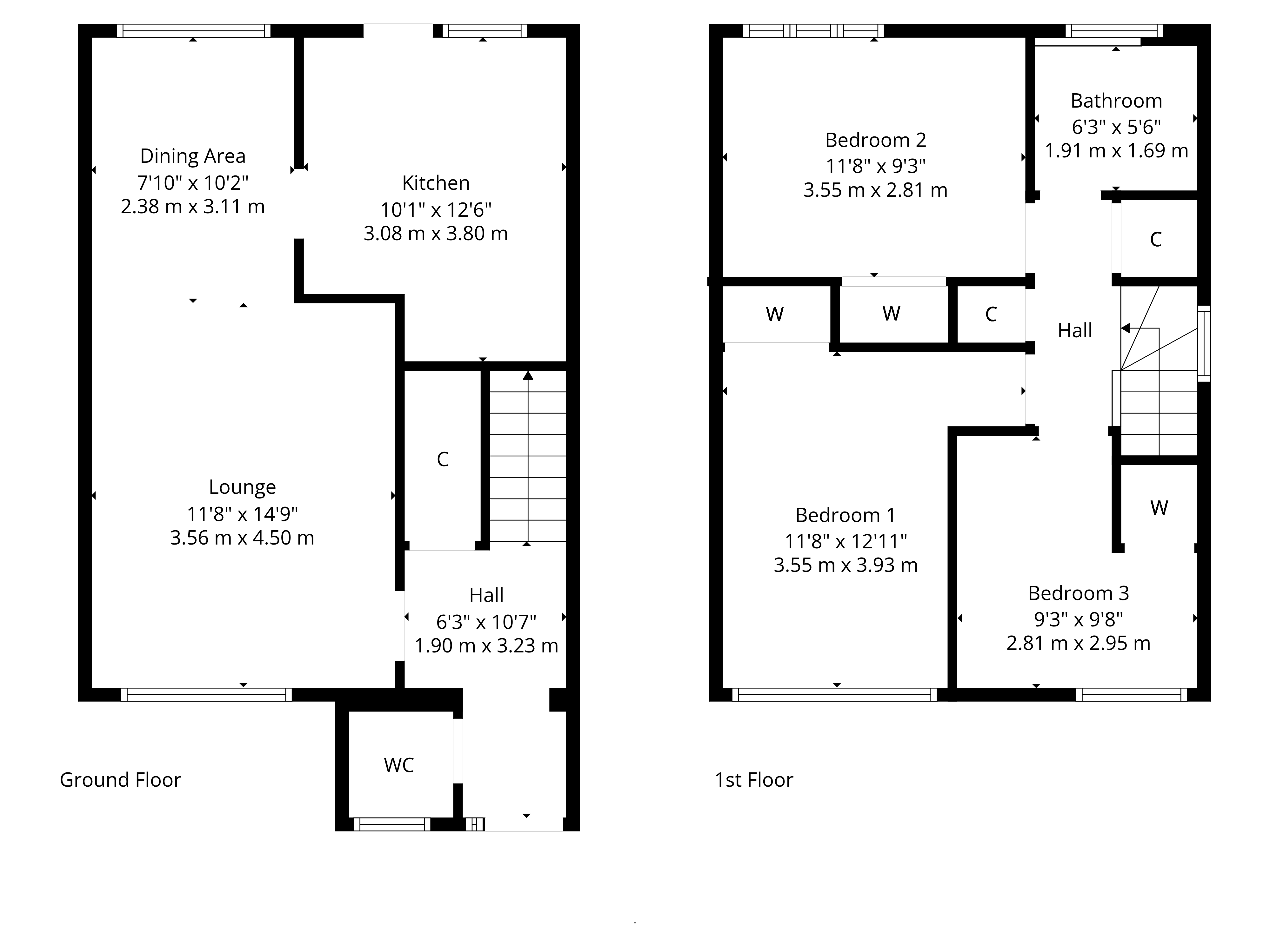
9 Cairnsmore Drive Bearsden

This property is currently not on the market.