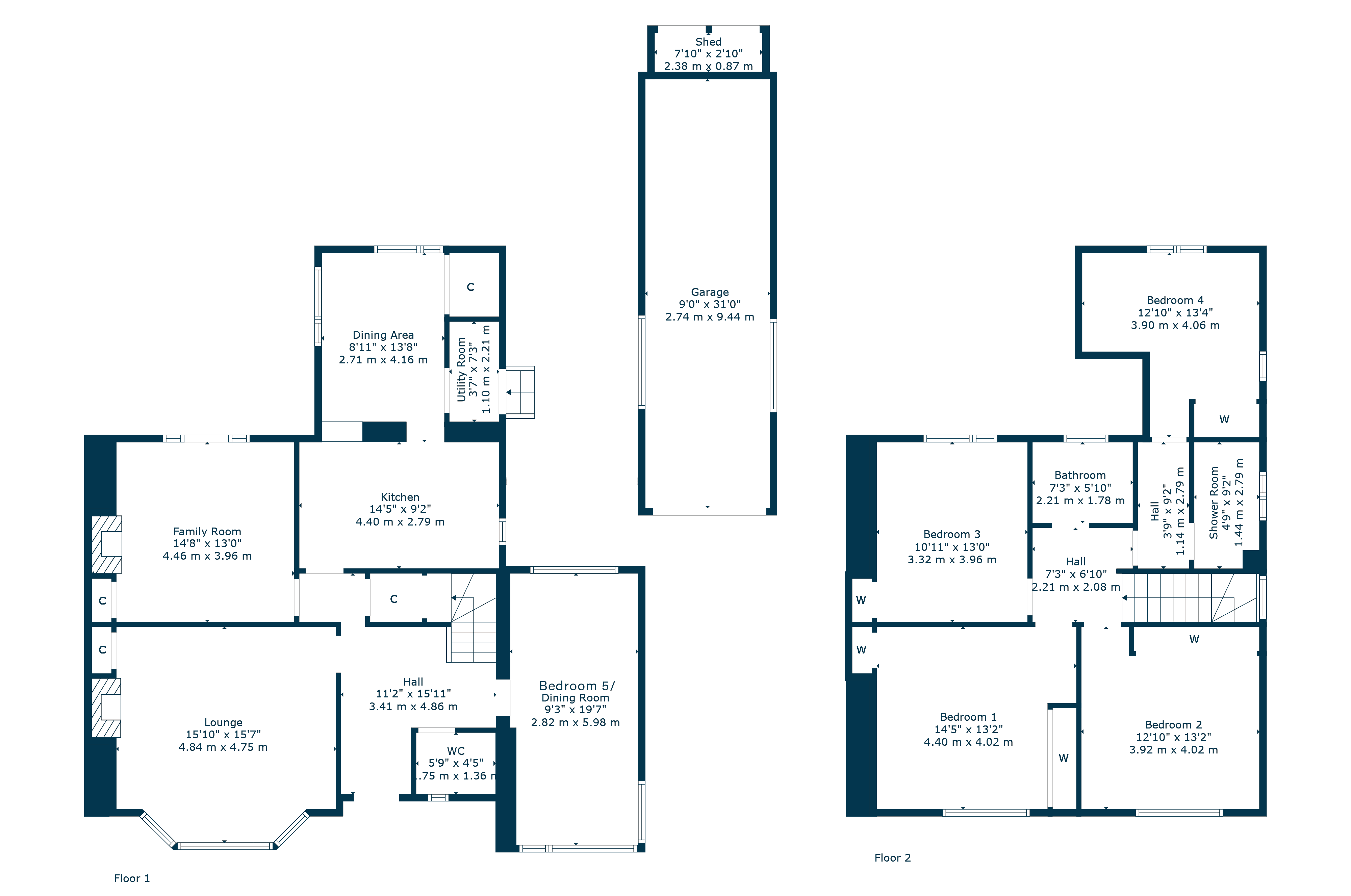
12 Cavendish Drive Newton Mearns

This property is currently not on the market.