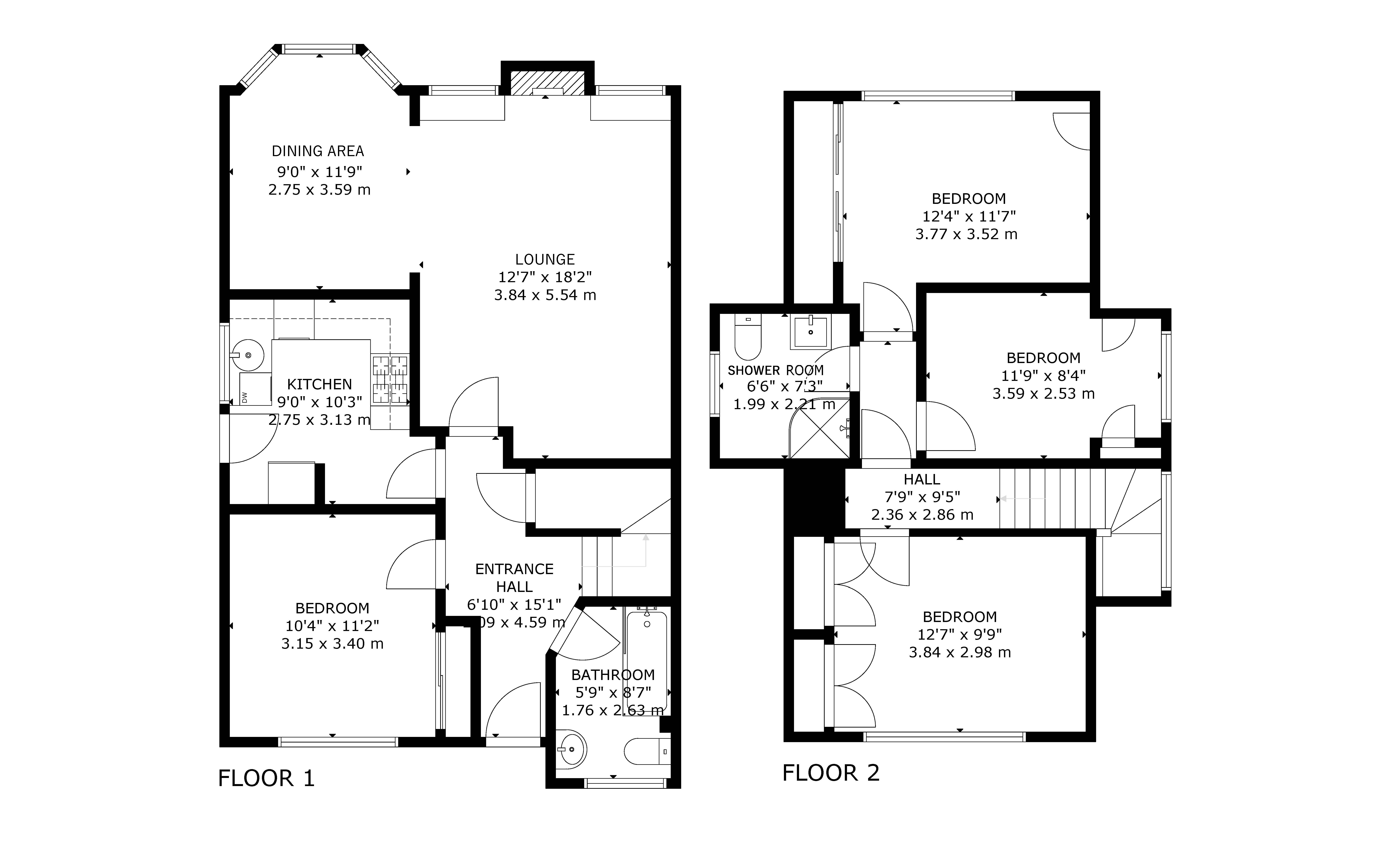
20 Durness Avenue Bearsden

This property is currently not on the market.