42 Killermont Road
Offers Over £630,000
- 5
- 3
- 2
- 2207 sq. ft.
Exceptional seven apartment detached villa, on a substantial corner plot, comprehensively refurbished to a high standard throughout, with large, mature garden, detached garage and double driveway access from either side of the plot.
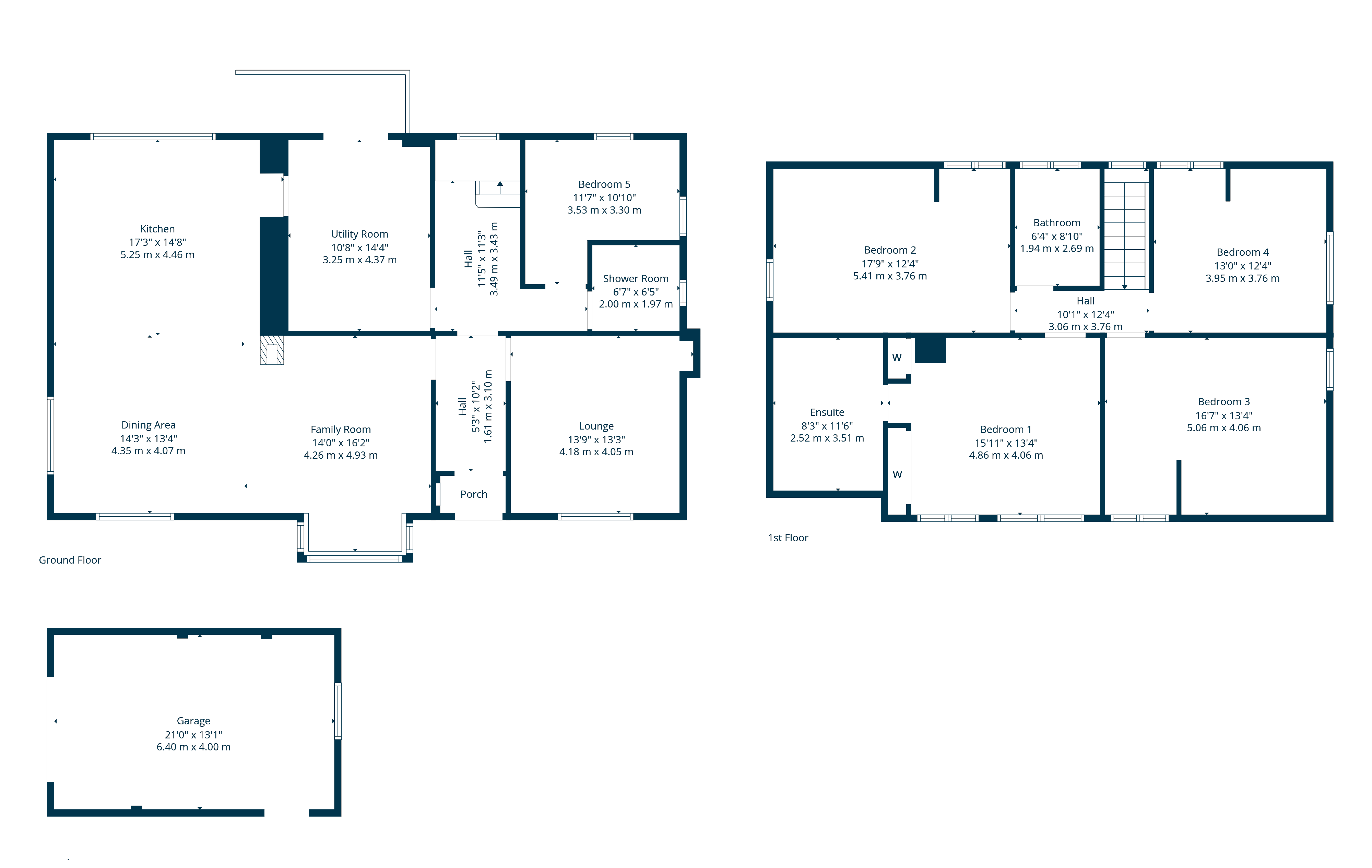
Set on an enviable and substantial corner plot, in the ever-popular Killermont district of Bearsden, this exceptional seven-apartment detached villa offers a superb family home that has been comprehensively refurbished to a high standard throughout.
The property now provides generously proportioned accommodation extending to approximately 2,300 sq. ft. while still retaining a large, mature garden, incorporating areas of lawn and patio, ideal for both family life and outdoor entertaining. The corner position allows for excellent privacy and versatility and incorporates a detached garage and double driveway access from either side of the plot.
Internally, the accommodation is bright, flexible and thoughtfully arranged. A welcoming entrance vestibule leads through to an impressive reception hallway, giving access to all lower apartments. There is a quite superb and extremely generous open plan living space, which forms the heart of the home, comprising a generous bay-windowed lounge, with a stylish, built-in wood burning fire, an open-plan, dual-aspect, dining area, providing an ideal setting for entertaining, and a high-quality modern fitted kitchen, featuring a statement range cooker and large breakfast bar. A particular large separate utility room lies off the kitchen, offering excellent additional storage and benefitting from French doors, opening directly to the garden.
The ground floor also provides a convenient bedroom or home office, with dual aspects, a front-facing family room, with alcove storage, and a contemporary shower room, allowing the layout to adapt easily to modern family requirements.
Upstairs, the principal bedroom is a generous room, with built-in wardrobes and a striking four-piece en-suite bathroom. Three further well-proportioned, light-filled, double bedrooms are served by a stylish family bathroom, with over bath shower.
The specification is completed by gas central heating and double glazing throughout.
Bearsden remains one of Glasgow’s most desirable suburbs, renowned for its excellent schooling at both primary and secondary levels, wide range of leisure facilities and outstanding local amenities. Bearsden Cross offers a varied selection of shops, cafés, bars and restaurants, while regular bus services and nearby train stations at Hillfoot, Westerton and Bearsden provide frequent links to Glasgow’s West End, City Centre and Edinburgh. Glasgow Airport is readily accessible within around twenty-five minutes off-peak, and to the north lies the outstanding natural scenery of Loch Lomond and The Trossachs National Park.
EER Band - C
Local Area
The suburb of Bearsden is one of Glasgow’s most desired districts in which to reside. There are numerous highly acclaimed educational facilities at both Primary and Secondary levels and leisure facilities are plentiful with a choice of private and state gyms and clubs in abundance. Locally, there is an excellent selection of shops and services at Bearsden Cross along with restaurants, cafes and bars. There are excellent bus links nearby and train stations can be found at Hillfoot, Westerton and Bearsden providing regular services into Glasgow’s West End and City Centre, including a service to Edinburgh.
Glasgow Airport can be reached within twenty-five minutes off peak and, to the north of Bearsden is the world renowned Loch Lomond and The Trossachs National Park.
Enquire
Branch Details
Branch Address
1 Canniesburn Toll,
Bearsden,
G61 2QU
Tel: 0141 942 5888
Email: bearsdenenq@corumproperty.co.uk
Opening Hours
Mon – 9 - 5.30pm
Tue – 9 - 8pm
Wed – 9 - 8pm
Thu – 9 - 8pm
Fri – 9 - 5.30pm
Sat – 9.30 - 1pm
Sun – 12 - 3pm
