1 Newbery Road
Offers Over £375,000
- 4
- 4
- 2
- 1560 sq. ft.
*** Closing Date *** Thursday 16th April at 12pm
Property Description
*** Closing Date *** Thursday 16th April at 12pm
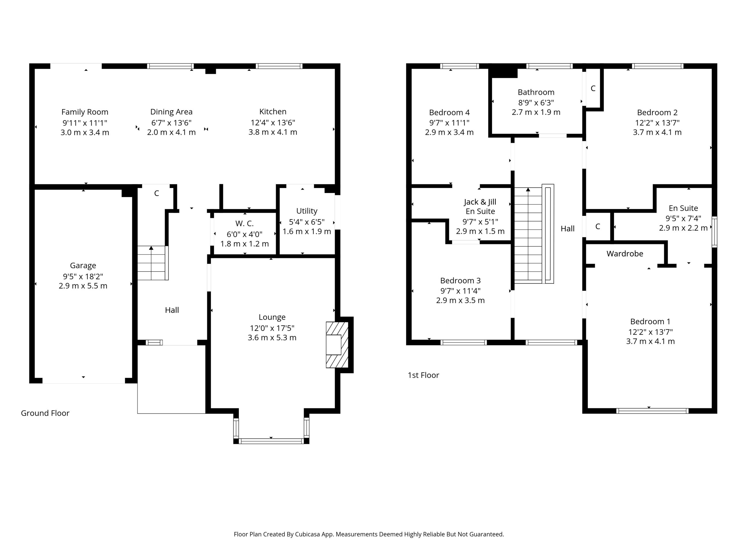
Stunning four-bedroom detached Mackie style family home by Miller Homes in the popular new Hawkhead estate, Paisley.
Situated in the sought-after new Hawkhead estate in Paisley, this impressive ‘Mackie’ style four-bedroom detached home by Miller Homes offers generous family living with contemporary design and excellent specification throughout.
Entry is via a canopied entrance into a bright reception hallway with a convenient guest W.C. The lounge, positioned to the front of the home, is generous in proportion and features a striking box bay window formation that floods the room with natural light, complemented by a focal point electric fireplace. To the rear, the property boasts a vast open-plan kitchen, dining and living space that spans almost 29 feet in length. The kitchen is beautifully appointed with a comprehensive range of base and wall-mounted units, integrated appliances throughout, and a practical peninsula island with breakfasting bar. This expansive rear space is highly spacious and exceptionally well lit, thanks to a dual window formation and French doors that open directly onto the rear garden. A handy utility suite sits just off the kitchen, providing additional storage and dedicated washing facilities.
The upper level landing leads to four excellent bedrooms and a useful storage closet. The principal bedroom is superbly large and benefits from fitted wardrobe space along with a generous three-piece ensuite shower room. Bedroom two enjoys pleasant views over the rear garden, while bedrooms three and four share a spacious Jack & Jill ensuite shower room. The main family bathroom completes the accommodation, offering a three-piece bath suite and additional storage.
This Miller Homes Mackie Style property has been finished to a high standard with modern fixtures and fittings throughout, including integrated appliances in the kitchen and quality sanitaryware in all bathrooms and ensuites. The thoughtful layout ensures excellent flow between living areas while providing practical everyday spaces such as the utility room and generous storage solutions.
Externally, the home benefits from a double monobloc driveway leading to an integral single garage, ideal for additional storage, with a neatly laid front lawn positioned alongside the driveway. To the rear, the enclosed garden enjoys a desirable west-facing aspect, capturing the afternoon and evening sun. The garden is predominantly laid to lawn with a small patio area, creating a perfect space for relaxation and play, while remaining fully enclosed for privacy and security.
EER Band: B
Council Tax Band: G
Local Area
The new Hawkhead estate enjoys a highly convenient location in Paisley, just a short stroll from Hawkhead Railway Station and less than 1.5 miles from the vibrant town centre. Residents benefit from excellent local amenities including nearby schools, shops, parks such as Barshaw Park, and everyday conveniences, while the peaceful setting is bounded by the scenic White Cart Water. Transport links are outstanding, with regular trains from Hawkhead Station reaching Glasgow Central in around 17 minutes, easy access to Paisley Gilmour Street, frequent local bus services, and Glasgow Airport just a 10-minute drive away, making the area ideal for commuters and families alike.
Travel Directions
1 Newbery Road, Paisley, PA2 7FY
Enquire
Branch Details
Branch Address
2 Windsor Place,
Main Street,
PA11 3AF
Tel: 01505 691 400
Email: bridgeofweir@corumproperty.co.uk
Opening Hours
Mon – 9 - 5.30pm
Tue – 9 - 5.30pm
Wed – 9 - 8pm
Thu – 9 - 8pm
Fri – 9 - 5.30pm
Sat – 9.30 - 1pm
Sun – 12 - 3pm
