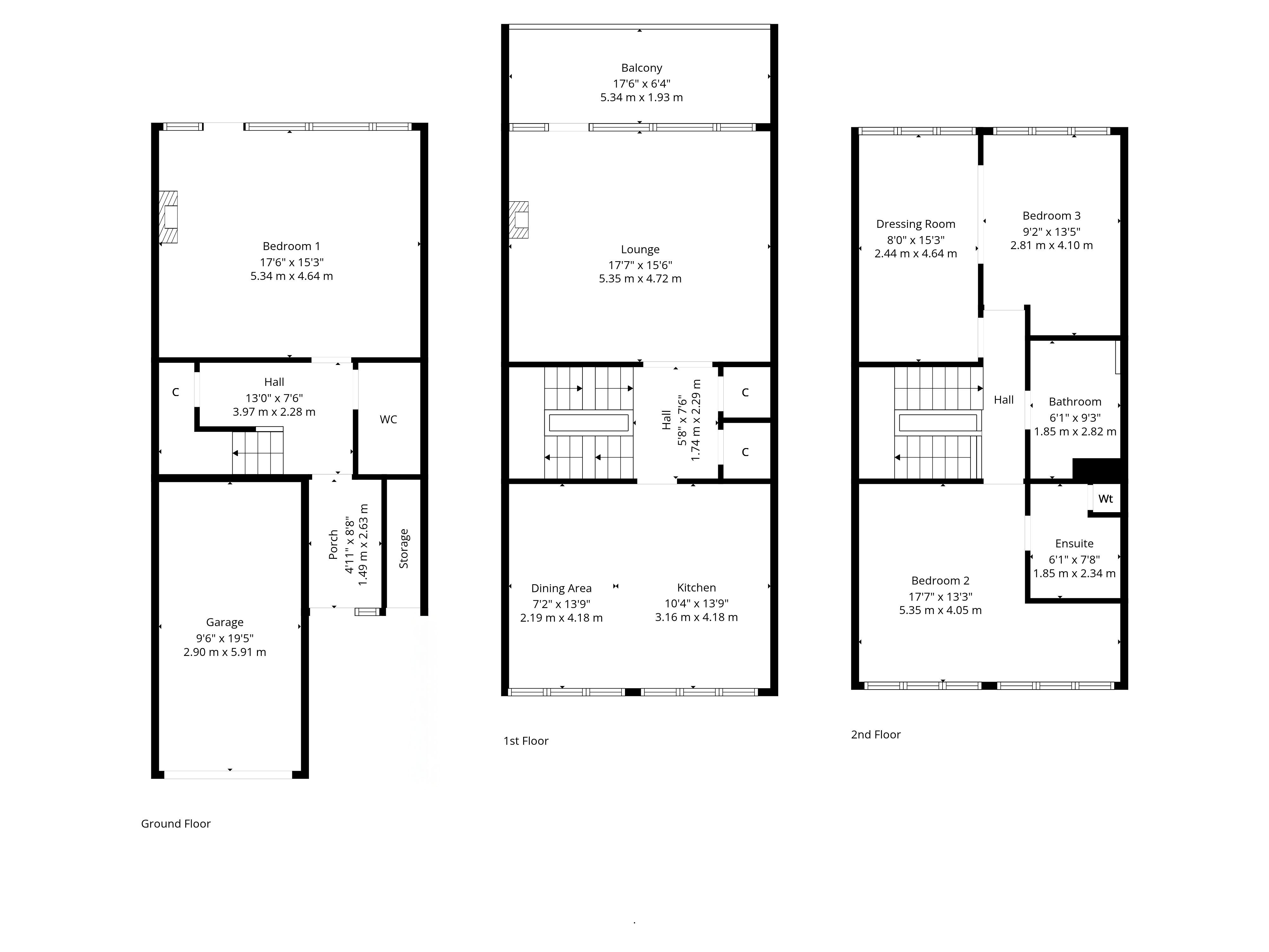
6 Seyton Court, Seyton Avenue Giffnock

This property is currently not on the market.