14 Southburn Road
Offers Over £240,000
- 3
- 1
- 1
- 861 sq. ft.
Attractive three bedroom semi detached villa, enjoying fantastic views to the front towards the Campsie Fells, and benefitting from a driveway to the side and beautifully landscaped gardens to the front and rear.
Enjoying a peaceful setting, with wonderful open aspects toward the Campsie Fells, this attractive three-bedroom semi-detached villa is set within the charming Stirlingshire village of Blanefield and offers bright, well-balanced accommodation, particularly generous gardens, and a great degree of privacy.
Tucked away in a quiet residential pocket, the property occupies an enviable position, backing onto mature woodland, with beautifully landscaped gardens to the front and rear. The rear garden, which is fully enclosed, enjoys excellent sun exposure throughout the day and is a superb space for families and outdoor entertaining, with a well-tended lawn, patio seating area, established planting and a large shed. A private driveway, to the side, provides off-street parking.
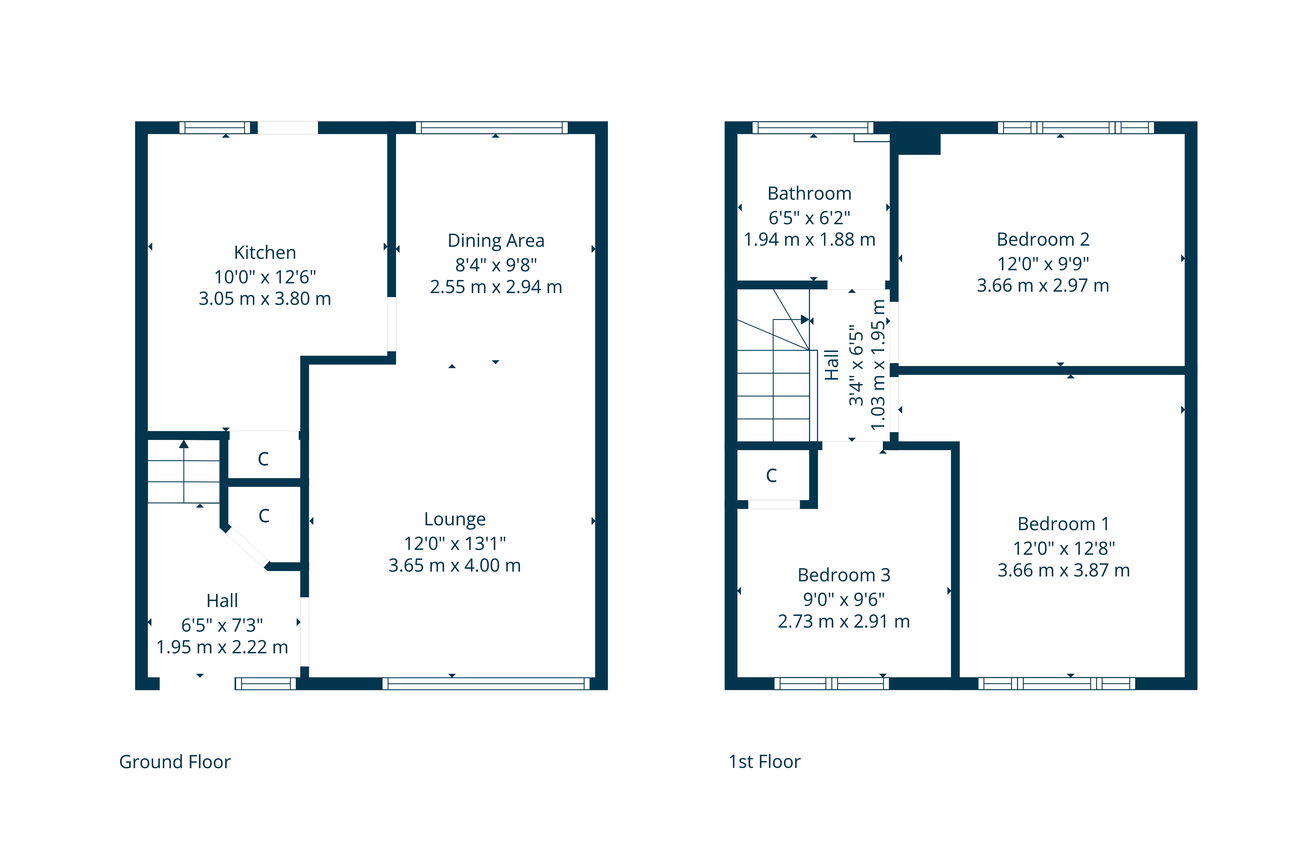
Internally, the home is presented in fresh, neutral décor and benefits from double glazing, gas central heating and new carpeting throughout. The accommodation begins with a welcoming entrance hallway, leading to a bright, dual-aspect, lounge and dining area - a lovely, open-plan, living space, enjoying outstanding views to the front, over the hills, and attractive garden views, to the rear, via a large window. The modern fitted kitchen offers a practical and well-planned layout, with a range of base and wall-mounted cabinetry and access out to the rear garden.
Upstairs, the property offers three well-proportioned bedrooms, all enjoying pleasant aspects, along with a modern family bathroom, fitted with a white three-piece suite and over bath shower.
Externally, the gardens are a true highlight – mature and beautifully maintained, offering both privacy and tranquillity.
Blanefield is a picturesque and friendly village surrounded by stunning countryside, offering a Greens general store, local shops, and a well-regarded primary school, with secondary education available at the highly respected Balfron High School. For outdoor enthusiasts, the area offers countless scenic walks and cycle routes, with nearby Mugdock Country Park providing a wealth of recreational opportunities.
A delightful, well-presented family home, with private, sunny gardens and a peaceful backdrop, all within one of Stirlingshire’s most sought-after semi-rural communities.
EER Band - C
Local Area
The villages of Strathblane and Blanefield are well served by local amenities. The village itself offers an excellent range of amenities including a GP practice / health centre, restaurants, hotels and village pub. There is a Spar, Greens and a number of other independent stores. For clients who enjoy the outdoors, the villages are located in the foot hills of the Campsie Fells and there are many pleasant walks to be enjoyed, especially at nearby Mugdock Country Park. There is also excellent access to The West Highland Way.
Enquire
Branch Details
Branch Address
1 Canniesburn Toll,
Bearsden,
G61 2QU
Tel: 0141 942 5888
Email: bearsdenenq@corumproperty.co.uk
Opening Hours
Mon – 9 - 5.30pm
Tue – 9 - 8pm
Wed – 9 - 8pm
Thu – 9 - 8pm
Fri – 9 - 5.30pm
Sat – 9.30 - 1pm
Sun – 12 - 3pm
