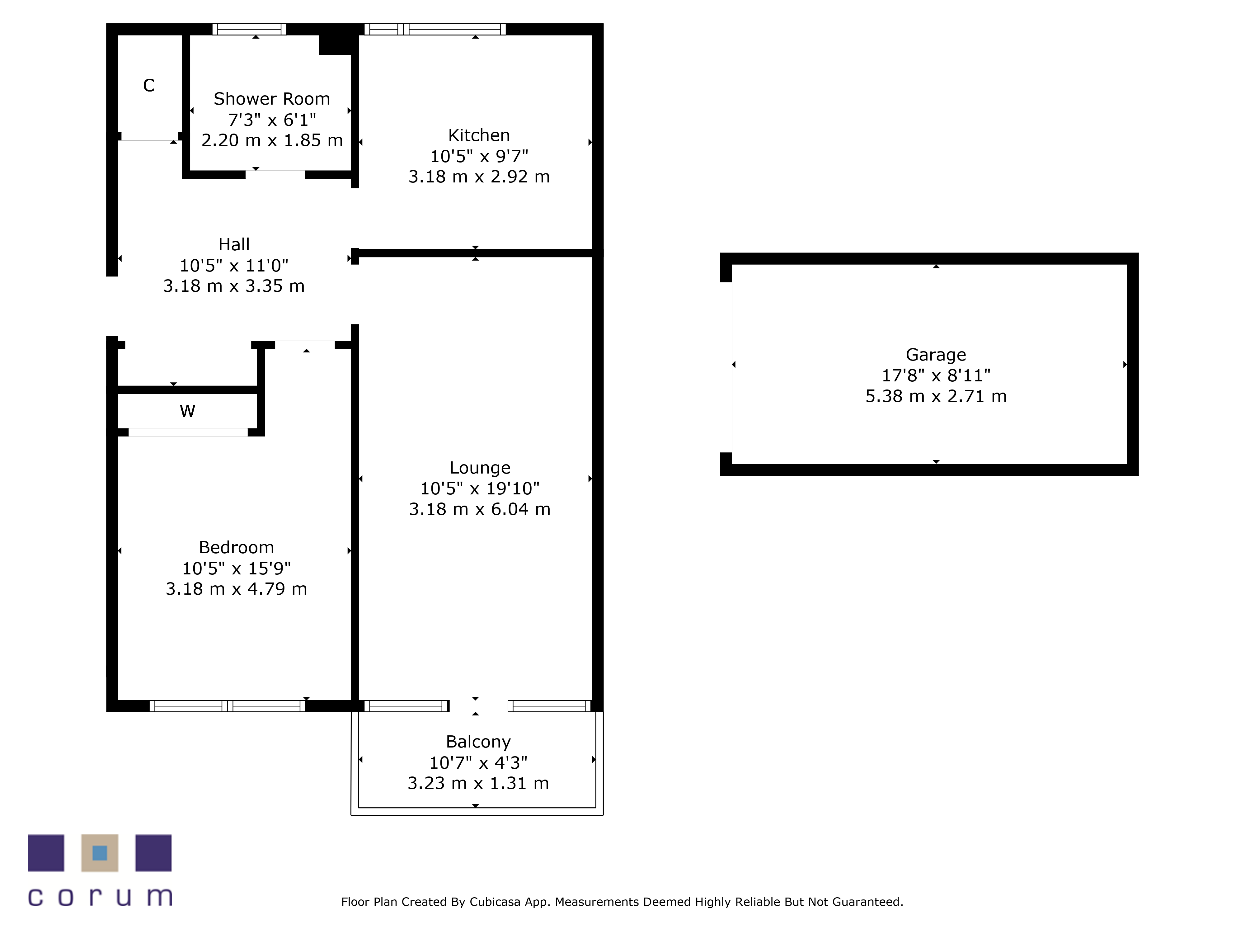
89A Speirs Road Bearsden

This property is currently not on the market.