4 Sunnybank Grove
Offers Over £289,000
- 2
- 2
- 2
- 1163 sq. ft.
An extended semi detached villa enjoying a lovely cul-de-sac location.
Property Description
This lovely semi-villa enjoys a quiet yet convenient location within this popular pocket of Clarkston. Extended and upgraded to deliver an easy move to the local market place, the property is set within private rear gardens and could potentially suit a variety of purchasers.
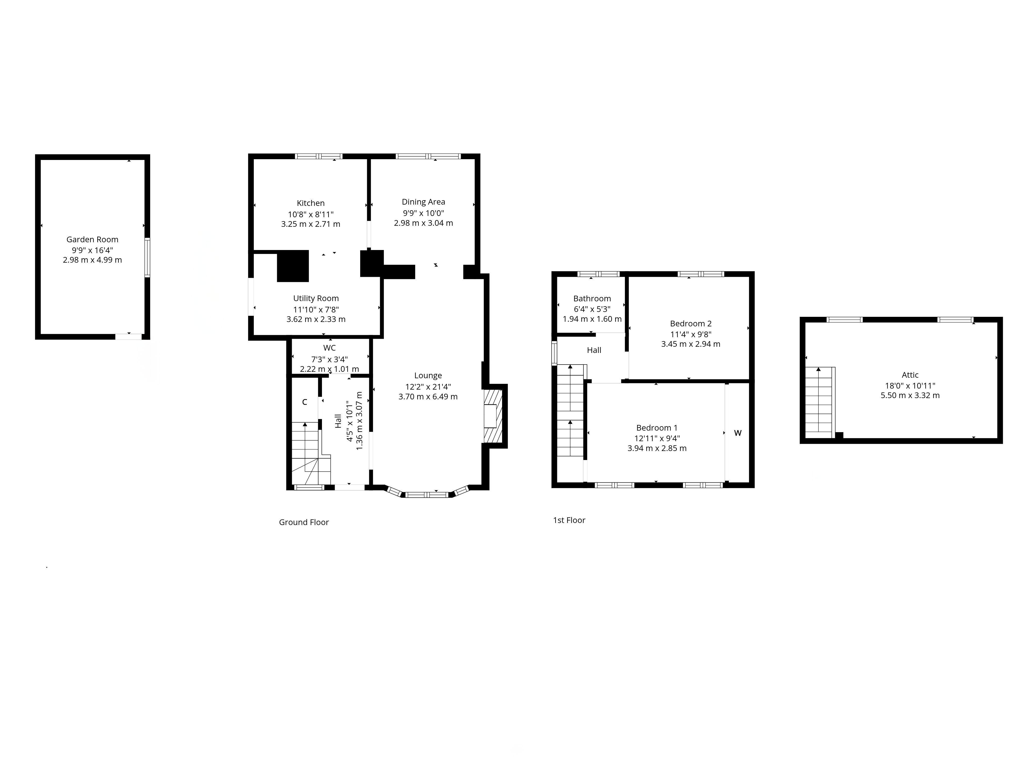
The ground floor accommodation extends to entrance hallway with WC adjacent, lovely formal lounge with feature fireplace, open plan to extended dining/family area with pitched roof and velux window. A modern fitted kitchen with a range of integrated appliances and complimentary work tops and separate utility area with access to rear gardens. Upstairs gives access to contemporary main family bathroom, lovely rear facing bedroom and spacious principal bedroom with fitted wardrobes. Further storage provided by way of attic space. The specification includes a system of gas central heating, double glazing, hard wood flooring, stylish tiling, and overall the property is well presented and decorated throughout.
Externally the property is set within easily maintained private rear gardens with decking and astro turf areas. Additional outbuilding. Driveway to front providing vehicular parking.
EER Band D
Local Area
A haven for young growing families, the district offers an abundance of sports and recreational facilities, excellent shopping and retail outlets and of course some of the best schooling within the East Renfrewshire district. The shopping suburb of Clarkston offers independent retailers with cafes, delis, restaurants and there are excellent transport provisions provided for the city centre via road and rail, from Clarkston or Williamwood train stations.
Enquire
Branch Details
Branch Address
5 Helena Place,
Clarkston,
G76 7RB
Tel: 0141 648 6000
Email: clarkston@corumproperty.co.uk
Opening Hours
Mon – 9 - 5.30pm
Tue – 9 - 5.30pm
Wed – 9 - 8pm
Thu – 9 - 8pm
Fri – 9 - 5.30pm
Sat – 9.30 - 1pm
Sun – By Appointment
