27 The Fells
Offers Over £250,000
- 4
- 2
- 1
- 1249 sq. ft.
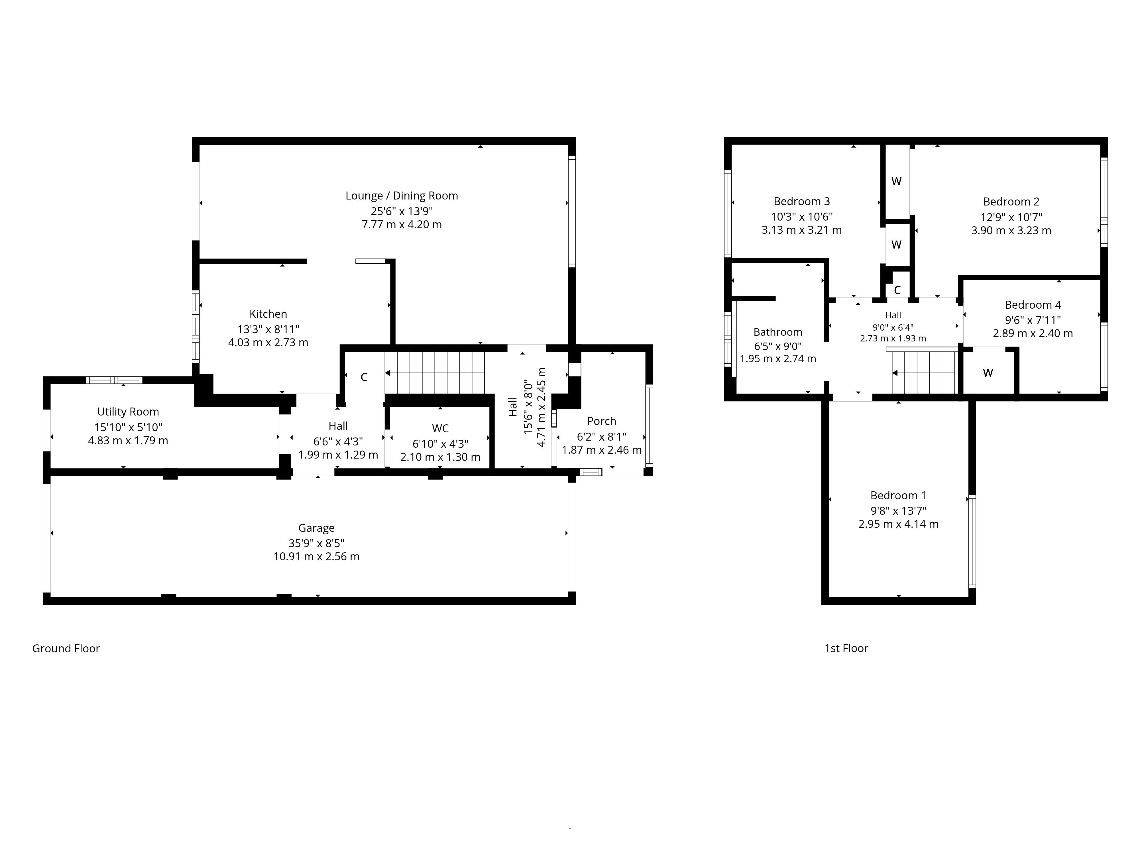
Substantial four bedroom detached villa, enjoying superb open views, private, low maintenance gardens, to both front and rear, driveway to the front, extended, double length garage, covered car port, useful rear parking or workshop area and a timber summerhouse.
This substantial detached villa is peacefully positioned within a well-established residential street at the foot of the Campsie Hills, enjoying superb open views across the surrounding countryside. Offering generous accommodation over two levels, the property represents an excellent opportunity for buyers seeking a spacious family home, with scope to upgrade and personalise to their own taste.
Set on a level plot, the house is surrounded by private, low-maintenance gardens to the front and rear. Its size, layout and enviable setting combine to create an ideal family home, with significant future potential.
Externally, the property is of traditional construction, finished in a mix of render and brick beneath a pitched tiled roof. To the front, a driveway leads to an internally accessed, extended, single-width garage, of double length. This, in turn, provides access to a covered carport and a useful rear parking or workshop area. The enclosed rear garden features a blend of patio and lawn, complemented by established planting and a timber summerhouse - an ideal space for both relaxing and entertaining while taking full advantage of the impressive views towards the Campsies.
Internally, the accommodation is well laid out across two levels. The ground floor comprises a welcoming reception hallway, a bright front-facing lounge and a separate dining room. The kitchen is well-proportioned and fitted with a good range of storage units. An inner hallway leads to a convenient WC and utility room, and provides direct access to the garage.
Upstairs, the landing leads to four generously sized bedrooms and a family bathroom, complete with a three-piece suite. The bedrooms are bright and airy, with several enjoying open outlooks over the surrounding countryside.
Further features include gas central heating and double glazing. The integral garage offers excellent storage and, subject to the appropriate consents, could be converted into additional living space, as demonstrated in neighbouring properties.
Lennoxtown is a sought-after semi-rural village situated at the foot of the Campsie Fells, offering an attractive setting for family life. The village provides a range of local amenities including shops, cafés, healthcare facilities and schooling, while more extensive services can be found in nearby Kirkintilloch. Glasgow city centre is easily accessible by road, making this location ideal for those looking to enjoy a balance of countryside living and convenient city access.
EER Band - D
Local Area
Nestled at the foot of the Campsie Fells, Lennoxtown has a number of local shops and amenities. There are two local primary schools, with a further one in nearby Milton of Campsie. Secondary schooling can be found in Lenzie, Kirkintilloch and Kilsyth.
Lennoxtown is located approximately equidistant between the villages of Torrance and Strathblane and is surrounded by some beautiful countryside, offering a wealth of opportunity to explore and enjoy a generous choice of outdoor facilities and amenities, including walking, family cycling on the Strathkelvin railway path and other popular road cycling routes, horse riding, golf. There is also easy access to the Campsie Fells, Mugdock Country Park and Loch Lomond and The Trossachs National Park. Access to Glasgow’s excellent motorway network is only a short drive away.
Enquire
Branch Details
Branch Address
1 Canniesburn Toll,
Bearsden,
G61 2QU
Tel: 0141 942 5888
Email: bearsdenenq@corumproperty.co.uk
Opening Hours
Mon – 9 - 5.30pm
Tue – 9 - 8pm
Wed – 9 - 8pm
Thu – 9 - 8pm
Fri – 9 - 5.30pm
Sat – 9.30 - 1pm
Sun – 12 - 3pm
