20 Birch Avenue
Offers Over £225,000
- 3
- 1
- 1
- 1044 sq. ft.
Beautifully presented end terraced three bedroom family home situated in a sought after pocket
Located within a favourable address in a quiet location and convenient for preferred primary and high schools, this three-bedroom end terrace villa provides spacious accommodation across two levels and enjoys private enclosed gardens. The home has been significantly improved and reconfigured with a running theme of natural light and modern finishes to create a wonderful, homely feel.
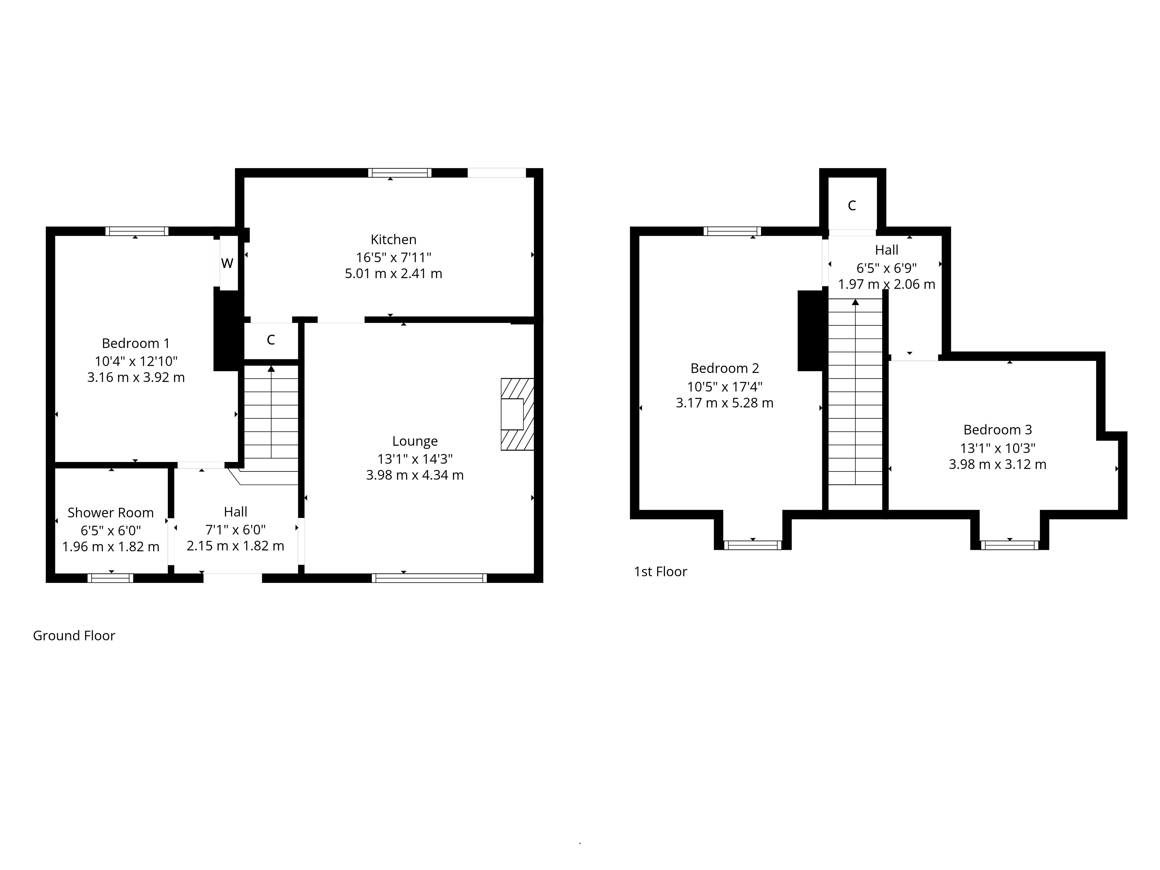
The light and airy accommodation in brief extends to on the ground floor reception hallway with double bedroom and shower room adjacent, lounge with large picture window, modern fitted kitchen with a range of wall and base mounted units and integrated appliances and access to rear gardens. Upstairs the landing gives access to two further spacious double bedrooms and storage. Additional storage provided by way attic space. The specification includes a system of gas central heating and double glazing.
Externally the property is set within private and easily maintained garden grounds with patio areas. Offering fantastic open aspects which provide an ideal space for outside enjoyment
The floorplan shall provide you with a detailed layout of this great home, however, we recommend viewing to appreciate the size and convenient location on offer.
Local Area
Busby and its neighbouring suburbs of Clarkston, Newton Mearns and Giffnock are acknowledged for its standard of local amenities and provide a selection of local shops, supermarkets, restaurants, regular bus and rail services to Glasgow City Centre, banks, library and health care facilities. The property is perfectly located within the catchment for highly regarded local East Renfrewshire schooling.
Enquire
Branch Details
Branch Address
5 Helena Place,
Clarkston,
G76 7RB
Tel: 0141 648 6000
Email: clarkston@corumproperty.co.uk
Opening Hours
Mon – 9 - 5.30pm
Tue – 9 - 5.30pm
Wed – 9 - 8pm
Thu – 9 - 8pm
Fri – 9 - 5.30pm
Sat – 9.30 - 1pm
Sun – By Appointment
