42 Bolerno Circle
Offers Over £350,000
- 4
- 3
- 2
- 1420 sq. ft.
*** Closing Date *** Friday 17th April at 12pm
Property Description
*** Closing Date *** Friday 17th April at 12pm
This flexible, upgraded Taylor Wimpey gem combines modern family living with tremendous potential.
Nestled on the popular Bolerno Circle, this beautifully presented four-bedroom detached family home by Taylor Wimpey offers exceptional space, modern upgrades, and outstanding versatility for growing households.
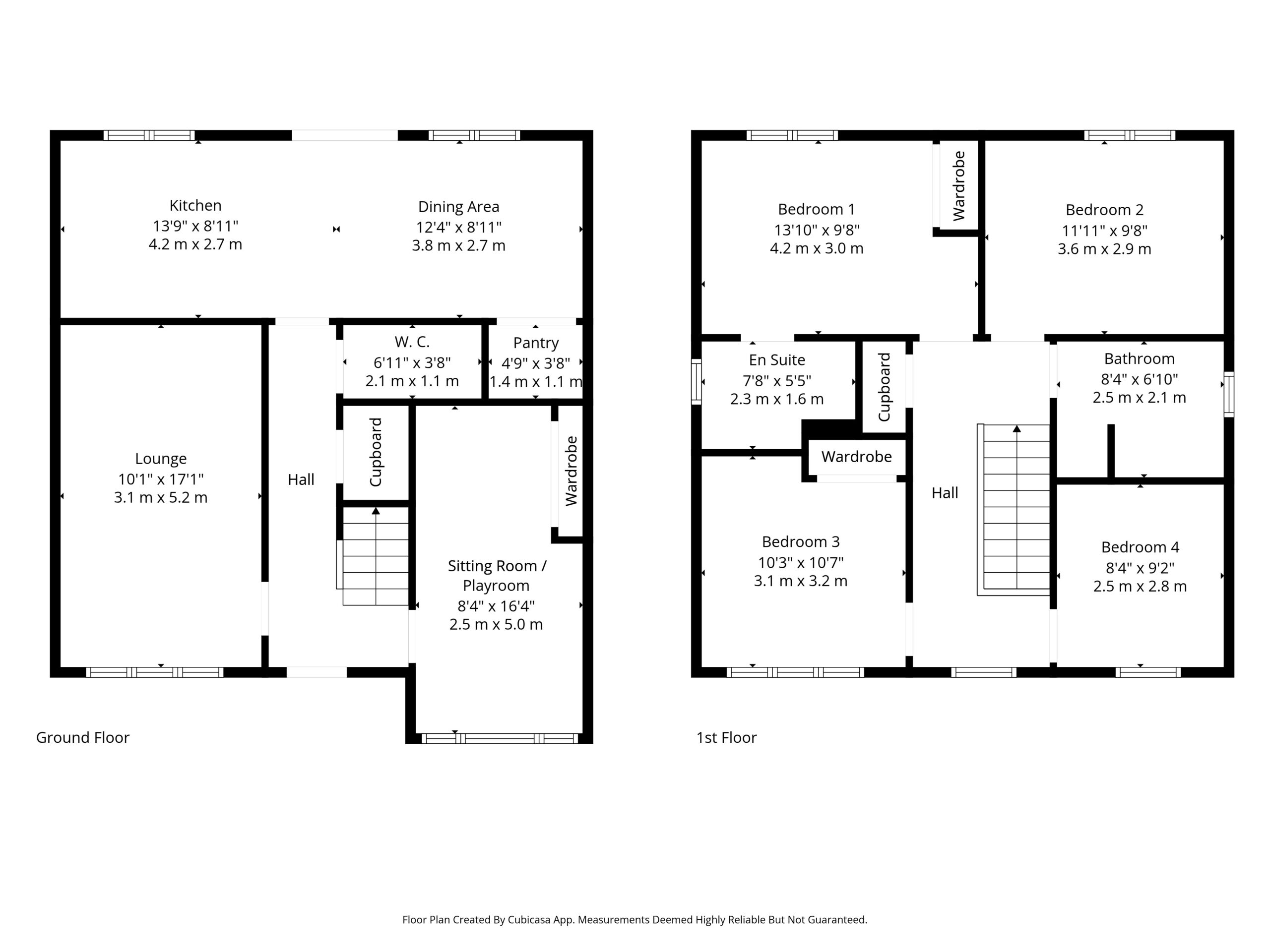
Entry into a welcoming reception hallway with handy storage closet and guest WC. To the front lies a lovely formal lounge, adjacent is the cleverly converted garage, currently enjoyed as a versatile sitting room/toy room, ideal for family downtime or play, but offering superb potential to create a fifth bedroom, home office, or guest suite.
At the rear of the home is a fabulous open-plan kitchen diner, flooded with natural light thanks to a dual window arrangement and French doors opening directly onto the garden. This bright, spacious living space is the perfect space for family meals and entertaining. The kitchen has been thoughtfully upgraded with luxurious touches, including a generous range of base and wall-mounted units and complementary quarts worktops and splashbacks, there is also a sizable corner pantry off the dining area for ample storage.
On the upper level of the property, there are four excellent bedrooms. The principal bedroom boasts a luxurious three-piece en-suite shower room and fitted wardrobes, while bedroom two also benefits from fitted wardrobes. Bedrooms three and four are two further well-proportioned doubles. A stylish four-piece family bathroom suite completes the accommodation.
Externally, the rear garden is a true standout, expertly landscaped with a large patio ideal for alfresco dining, low maintenance laid AstroTurf, and attractive flower beds to the sides. To the front, a double monobloc driveway provides excellent off-street parking, flanked by a neatly laid lawn bordered by mature shrubs and planting.
EER Band: B
Council Tax Band: F
Local Area
Bishopton is a popular village in West Renfrewshire with direct access to the M8 motorway allowing commuting to Glasgow in approximately 28 minutes. The location is only four miles from the Erskine Bridge allowing access to the northwest of Glasgow and the stunning Loch Lomond and Trossachs National Park. The rail station has park and ride facilities and regular services to both Inverclyde and Glasgow city centre. Dargavel Village features a modern shopping outlet and Dargavel primary school. The original village amenities include Bishopton primary school, community centre, library, and leisure centre. There are local rugby, tennis, football and golf clubs, local shops, a village pub, and several food outlets. Secondary schooling can be found in nearby Erskine.
Travel Directions
42 Bolerno Circle, Bishopton, PA7 5FF
Enquire
Branch Details
Branch Address
2 Windsor Place,
Main Street,
PA11 3AF
Tel: 01505 691 400
Email: bridgeofweir@corumproperty.co.uk
Opening Hours
Mon – 9 - 5.30pm
Tue – 9 - 5.30pm
Wed – 9 - 8pm
Thu – 9 - 8pm
Fri – 9 - 5.30pm
Sat – 9.30 - 1pm
Sun – 12 - 3pm
