9 Cross Road
Offers Over £390,000
- 4
- 2
- 3
- 2249 sq. ft.
A truly stunning, extended sandstone home with a breath-taking open-plan rear extension.
Property Description
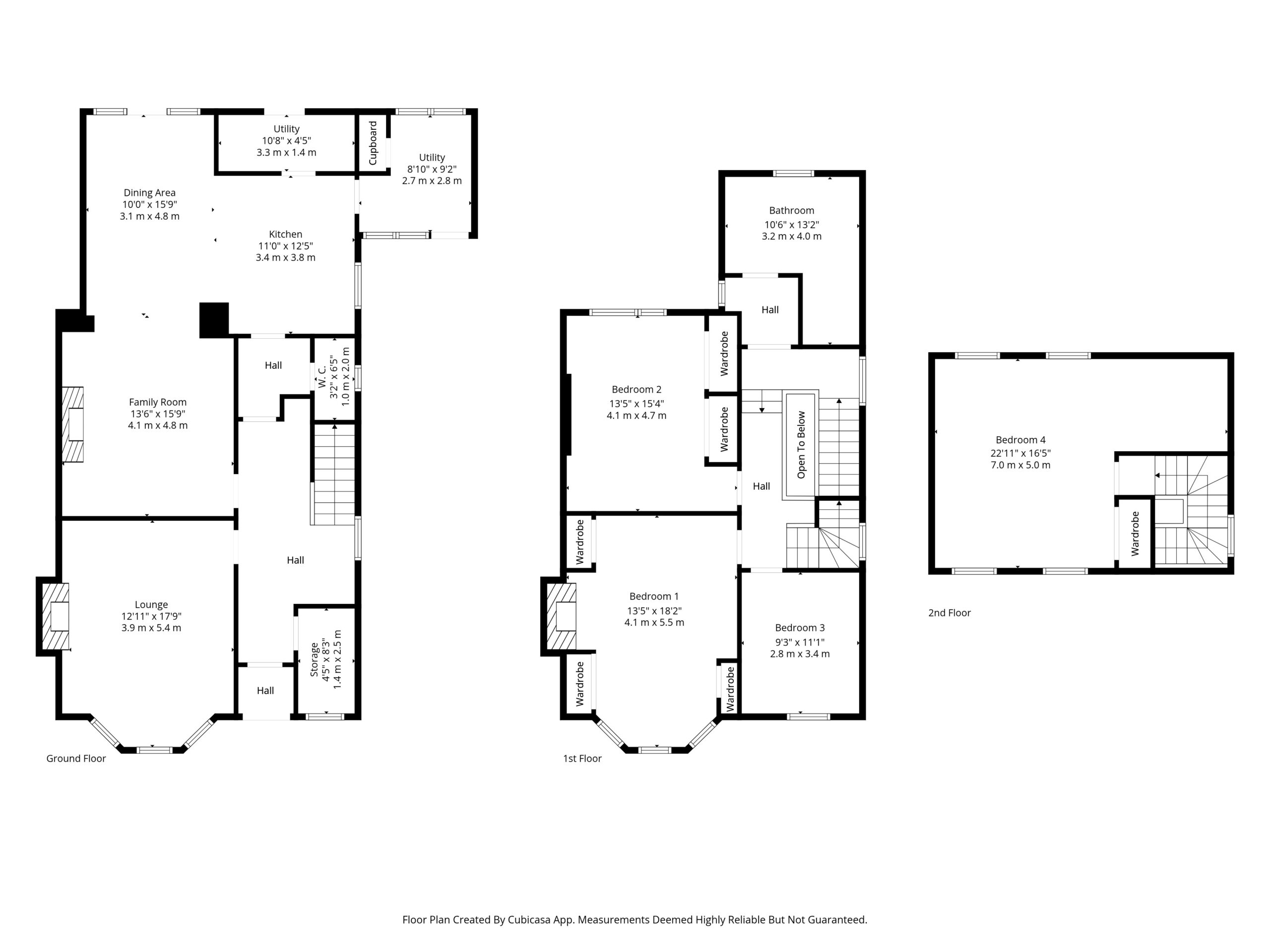
This stunning 4-bedroom semi-detached red sandstone home has been professionally extended, offering spacious accommodation arranged over three levels with a perfect blend of period charm with modern fixtures and fittings
The properties entrance vestibule opens into a bright and welcoming reception hall. This gorgeous space features a sweeping staircase rising to the upper level and includes a generous boot/cloakroom conveniently positioned just inside the front door.
To the front of the home lies the elegant formal lounge, complete with a desirable traditional bay window that floods the room with natural light and a striking woodburning stove as a cosy focal point.
At the rear, an impressive vast open-plan living area seamlessly combines the sitting room, dining room, and kitchen, the result of a thoughtful extension that maximises space and flow. The sitting area is anchored by a gorgeous ornate coal fireplace, a beautiful stained glass lit window, and distinctive skimmed stone lighting pillars that subtly divide the space from the dining area. The rear dining room benefits from a magnificent skylight and bi-folding patio doors, creating an exceptionally light and airy atmosphere that effortlessly connects indoors with the garden.
The kitchen boasts an extensive range of units, fully integrated appliances, and a stylish peninsula island enhanced by feature lighting, ideal for both everyday living and entertaining.
Practical additions include a rear utility room for added convenience and a side porch/storeroom providing secure side access to the garden.
Ascending to the first floor, a split landing leads to three generous bedrooms on the upper level and the luxurious family bathroom on the lower. Bedrooms one and two are superb doubles, each with fitted wardrobe space, while the remaining bedroom offers ample room and comfort. The four-piece family bathroom features a elegant roll-top bath and a separate walk-in shower unit.
The top floor, accessed via its own staircase from the landing, comprises one large bedroom bathed in light thanks to four Velux windows. This superbly bright space includes excellent wardrobe storage and provides a peaceful retreat.
Externally, the home enjoys lovely garden grounds. Immediately outside the bi-folding doors is a canopied patio area, perfect for al fresco dining and year-round enjoyment. The remainder of the rear garden has been thoughtfully landscaped with low maintenance in mind. A detached garage sits to the rear, complemented by a private driveway accessed off Craigfaulds Avenue.
EER Band: D
Council Tax Band: F
Local Area
Situated on Cross Road, the property offers fantastic convenience for everyday living. Local amenities are well within reach, with the Royal Alexandra Hospital approximately a 10-minute walk away. Commuters and travelers are exceptionally well-catered for; Paisley Gilmour Street train station is easily accessible, providing regular services to Glasgow Central in around 15 minutes, while the M8 motorway and nearby Glasgow Airport ensure road and air links are equally convenient. The surrounding area also boasts a variety of local shops, dining options, and attractions, with Paisley town center just a short distance away.
Travel Directions
9 Cross Road, Paisley, PA2 9QG
Enquire
Branch Details
Branch Address
2 Windsor Place,
Main Street,
PA11 3AF
Tel: 01505 691 400
Email: bridgeofweir@corumproperty.co.uk
Opening Hours
Mon – 9 - 5.30pm
Tue – 9 - 5.30pm
Wed – 9 - 8pm
Thu – 9 - 8pm
Fri – 9 - 5.30pm
Sat – 9.30 - 1pm
Sun – 12 - 3pm
